



Book your tour. Save an average of $18,473. We'll handle the rest.
- Confirmed tours
- Get matched & compare top deals
- Expert help, no pressure
- No added fees
Estimated value based on Jome data, T&C apply
- 3 bd
- 2.5 ba
- 1,645 sqft
954 Jerry Price Dr, Knoxville, TN 37920
Why tour with Jome?
- No pressure toursTour at your own pace with no sales pressure
- Expert guidanceGet insights from our home buying experts
- Exclusive accessSee homes and deals not available elsewhere
Jome is featured in
- Single-Family
- Quick move-in
- $204.8/sqft
- 83 days on Jome
Home description
About this home
This home is move-in ready and available for immediate sale!
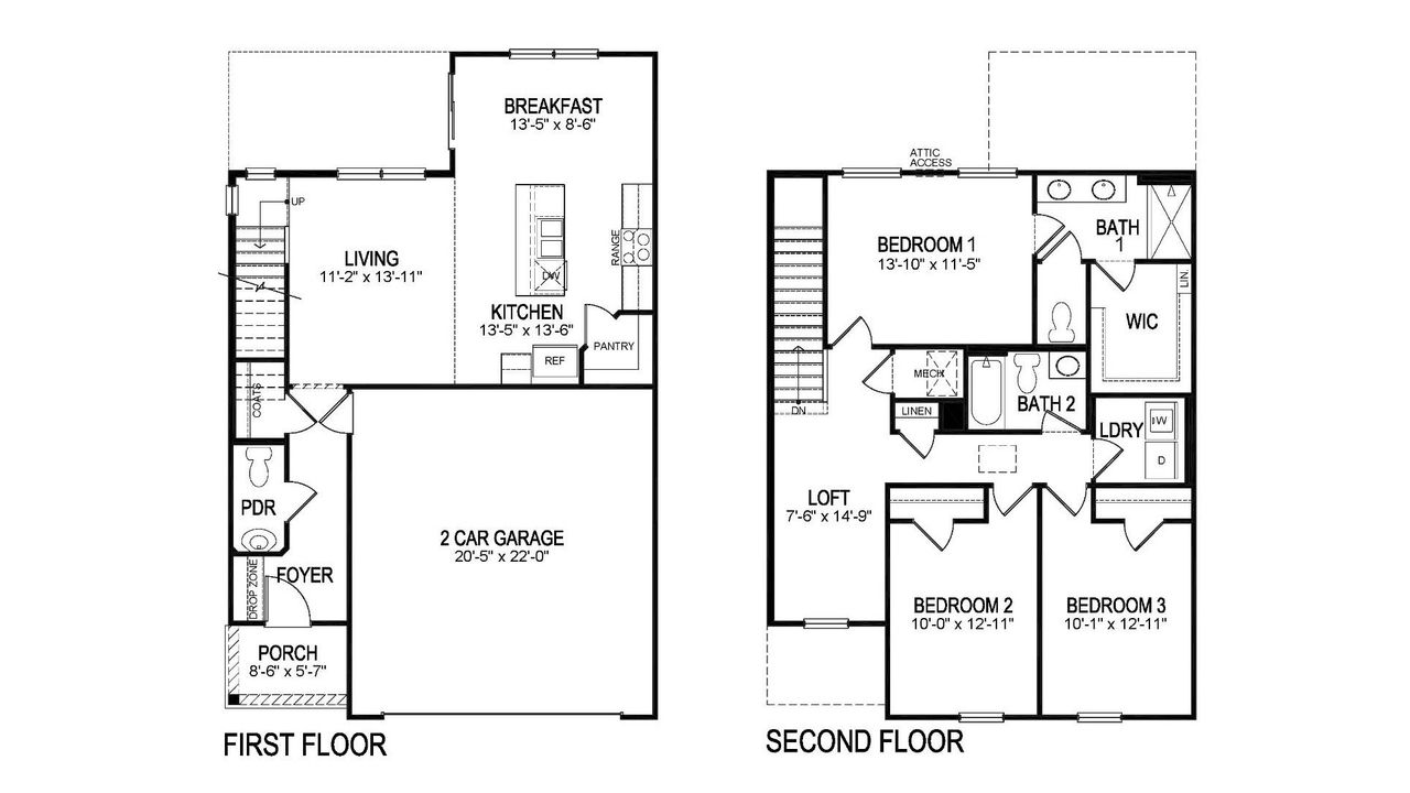
Make yourself at home at 954 Jerry Price Drive. This two-story home offers 1,645 square feet of well-designed living space with 3 bedrooms and 2.5 bathrooms, blending open-concept comfort with modern functionality. This home features a blue and gray exterior palette and classic brick accents.
On the main level, the spacious kitchen opens to the living and dining areas, creating a welcoming setting for gatherings and everyday life. This kitchen is especially attractive with white cabinetry, granite countertops and stainless-steel appliances. The open layout allows for easy flow between spaces, making the Craig ideal for entertaining or relaxing at home.
Upstairs, a versatile loft offers space for a home office, playroom, or cozy retreat. The primary suite provides a private escape with a large walk-in closet and a beautiful en-suite bathroom. Two additional bedrooms share a full bath, giving everyone their own space to unwind.
With its balance of flexibility, style, and comfort, the Craig is thoughtfully designed to make every day feel like home.
May also be listed on the D.R. Horton website
Information last verified by Jome: Today at 2:29 AM (January 19, 2026)
Book your tour. Save an average of $18,473. We'll handle the rest.
We collect exclusive builder offers, book your tours, and support you from start to housewarming.
- Confirmed tours
- Get matched & compare top deals
- Expert help, no pressure
- No added fees
Estimated value based on Jome data, T&C apply
Home details
- Property status:
- Move-in ready
- Size:
- 1,645 sqft
- Stories:
- 2
- Beds:
- 3
- Baths:
- 2.5
- Garage spaces:
- 2
Construction details
- Builder Name:
- D.R. Horton
Home features & finishes
- Garage/Parking:
- GarageAttached Garage
- Interior Features:
- Walk-In ClosetFoyerPantryLoft
- Kitchen:
- Stainless Steel AppliancesGranite countertop
- Laundry facilities:
- Utility/Laundry Room
- Property amenities:
- Porch
- Rooms:
- KitchenPowder RoomLiving RoomBreakfast AreaPrimary Bedroom Upstairs

Get a consultation with our New Homes Expert
- See how your home builds wealth
- Plan your home-buying roadmap
- Discover hidden gems

Community details
Price's Point
by D.R. Horton, Knoxville, TN
- 15 homes
- 7 plans
- 1,618 - 2,618 sqft
View Price's Point details
More homes in Price's Point
- Home at address 965 Jerry Price Dr, Knoxville, TN 37920

Aria
$336,830
- 3 bd
- 2 ba
- 1,618 sqft
965 Jerry Price Dr, Knoxville, TN 37920
- Home at address 5716 Painted Shoals Ln, Knoxville, TN 37920

Craig
$336,900
- 3 bd
- 2.5 ba
- 1,645 sqft
5716 Painted Shoals Ln, Knoxville, TN 37920
- Home at address 953 Jerry Price Dr, Knoxville, TN 37920

Craig
$336,900
- 3 bd
- 2.5 ba
- 1,645 sqft
953 Jerry Price Dr, Knoxville, TN 37920
- Home at address 5712 Painted Shoals Ln, Knoxville, TN 37920

Craig
$336,900
- 3 bd
- 2.5 ba
- 1,645 sqft
5712 Painted Shoals Ln, Knoxville, TN 37920
- Home at address 945 Jerry Price Dr, Knoxville, TN 37920

Aria
$339,830
- 3 bd
- 2 ba
- 1,618 sqft
945 Jerry Price Dr, Knoxville, TN 37920
- Home at address 958 Jerry Price Dr, Knoxville, TN 37920

Aisle
$345,365
- 4 bd
- 2.5 ba
- 1,927 sqft
958 Jerry Price Dr, Knoxville, TN 37920
Floor plans in Price's Point
About the builder - D.R. Horton

- 1,201communities on Jome
- 9,103homes on Jome
Neighborhood
Home address
Schools in Knox County School District
GreatSchools’ Summary Rating calculation is based on 4 of the school’s themed ratings, including test scores, student/academic progress, college readiness, and equity. This information should only be used as a reference. Jome is not affiliated with GreatSchools and does not endorse or guarantee this information. Please reach out to schools directly to verify all information and enrollment eligibility. Data provided by GreatSchools.org © 2025
Places of interest
Getting around
Air quality

Considering this home?
Our expert will guide your tour, in-person or virtual
Need more information?
Text or call (888) 486-2818
Financials
Estimated monthly payment
Let us help you find your dream home
How many bedrooms are you looking for?
Similar homes nearby
Recently added communities in this area
Nearby communities in Knoxville
New homes in nearby cities
More New Homes in Knoxville, TN
- Jome
- New homes search
- Tennessee
- Chattanooga-Knoxville Area
- Knox County
- Knoxville
- Price's Point
- 954 Jerry Price Dr, Knoxville, TN 37920





























