







Book your tour. Save an average of $18,473. We'll handle the rest.
We collect exclusive builder offers, book your tours, and support you from start to housewarming.
- Confirmed tours
- Get matched & compare top deals
- Expert help, no pressure
- No added fees
Estimated value based on Jome data, T&C apply





















- 3 bd
- 2.5 ba
- 2,164 sqft
4327 Juliette Elise St, Knoxville, TN 37920
Why tour with Jome?
- No pressure toursTour at your own pace with no sales pressure
- Expert guidanceGet insights from our home buying experts
- Exclusive accessSee homes and deals not available elsewhere
Jome is featured in
- Single-Family
- Quick move-in
- $168.53/sqft
- 2 days on Jome
Home description
About this home
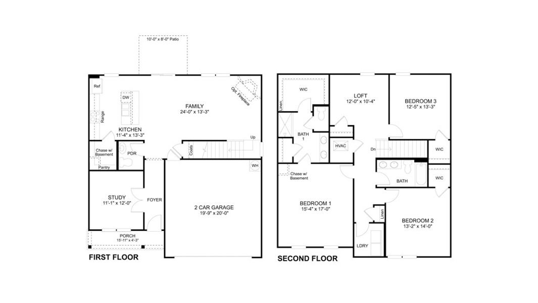
Explore 4327 Juliette Elise Street at Price's Point in Knoxville, TN. The exterior of the home features a cool brown color palette with warm brown ledge stone accents. This beautifully designed two-story home offers 2,164 square feet of modern living space with 3 bedrooms and 2.5 bathrooms crafted to suit every stage of life with comfort and style.
The open-concept main level welcomes you with a spacious foyer that leads into the bright eat-in kitchen and living area. The kitchen features a large island with countertop seating, a generous pantry, and abundant cabinet space, perfect for both everyday living and entertaining. A convenient powder room and a versatile flex room, ideal for a home office or formal dining space, complete the first floor.
Upstairs, a roomy loft provides additional space for work, play, or relaxation. The primary suite offers a private retreat with a large walk-in closet and bathroom. Two additional bedrooms share a full bath, and a conveniently located upstairs laundry room adds ease to daily routines.
May also be listed on the D.R. Horton website
Information last verified by Jome: Today at 1:25 AM (April 16, 2026)
Book your tour. Save an average of $18,473. We'll handle the rest.
We collect exclusive builder offers, book your tours, and support you from start to housewarming.
- Confirmed tours
- Get matched & compare top deals
- Expert help, no pressure
- No added fees
Estimated value based on Jome data, T&C apply
Home details
- Property status:
- Move-in ready
- Size:
- 2,164 sqft
- Stories:
- 2
- Beds:
- 3
- Baths:
- 2.5
- Garage spaces:
- 2
Construction details
- Builder Name:
- D.R. Horton
Home features & finishes
- Garage/Parking:
- GarageAttached Garage
- Interior Features:
- Walk-In ClosetFoyerPantryLoft
- Kitchen:
- Stainless Steel AppliancesGranite countertop
- Laundry facilities:
- Utility/Laundry Room
- Property amenities:
- Porch
- Rooms:
- KitchenPowder RoomOffice/StudyFamily RoomPrimary Bedroom Upstairs

Get a consultation with our New Homes Expert
- See how your home builds wealth
- Plan your home-buying roadmap
- Discover hidden gems

Community details
Price's Point
by D.R. Horton, Knoxville, TN
- 12 homes
- 7 plans
- 1,618 - 2,618 sqft
View Price's Point details
More homes in Price's Point
- Home at address 4343 Juliette Elise St, Knoxville, TN 37920

Craig
Savings$340,900
- 3 bd
- 2.5 ba
- 1,645 sqft
4343 Juliette Elise St, Knoxville, TN 37920
- Home at address 5740 Painted Shoals Ln, Knoxville, TN 37920

Craig
Savings$340,900
- 3 bd
- 2.5 ba
- 1,645 sqft
5740 Painted Shoals Ln, Knoxville, TN 37920
- Home at address 4331 Juliette Elise St, Knoxville, TN 37920

Craig
Savings$340,900
- 3 bd
- 2.5 ba
- 1,645 sqft
4331 Juliette Elise St, Knoxville, TN 37920
- Home at address 5736 Painted Shoals Ln, Knoxville, TN 37920

Craig
Savings$340,900
- 3 bd
- 2.5 ba
- 1,645 sqft
5736 Painted Shoals Ln, Knoxville, TN 37920
- Home at address 918 Jerry Price Dr, Knoxville, TN 37920

Aria
Savings$345,830
- 3 bd
- 2 ba
- 1,618 sqft
918 Jerry Price Dr, Knoxville, TN 37920
- Home at address 4355 Juliette Elise St, Knoxville, TN 37920

Aria
Savings$345,830
- 3 bd
- 2 ba
- 1,618 sqft
4355 Juliette Elise St, Knoxville, TN 37920
Floor plans in Price's Point
About the builder - D.R. Horton

- 1,154communities on Jome
- 10,579homes on Jome
Neighborhood
Home address
Schools in Knox County School District
GreatSchools’ Summary Rating calculation is based on 4 of the school’s themed ratings, including test scores, student/academic progress, college readiness, and equity. This information should only be used as a reference. Jome is not affiliated with GreatSchools and does not endorse or guarantee this information. Please reach out to schools directly to verify all information and enrollment eligibility. Data provided by GreatSchools.org © 2025
Places of interest
Getting around
Air quality

Considering this home?
Our expert will guide your tour, in-person or virtual
Need more information?
Text or call (888) 545-5198
Financials
Estimated monthly payment
Let us help you find your dream home
How many bedrooms are you looking for?
Similar homes nearby
Recently added communities in this area
Nearby communities in Knoxville
New homes in nearby cities
More New Homes in Knoxville, TN
- Jome
- New homes search
- Tennessee
- Chattanooga-Knoxville Area
- Knox County
- Knoxville
- Price's Point
- 4327 Juliette Elise St, Knoxville, TN 37920





























