




Book your tour. Save an average of $18,473. We'll handle the rest.
We collect exclusive builder offers, book your tours, and support you from start to housewarming.
- Confirmed tours
- Get matched & compare top deals
- Expert help, no pressure
- No added fees
Estimated value based on Jome data, T&C apply
Why tour with Jome?
- No pressure toursTour at your own pace with no sales pressure
- Expert guidanceGet insights from our home buying experts
- Exclusive accessSee homes and deals not available elsewhere
Jome is featured in
- Single-Family
- Ready by May 2026
- $122.51/sqft
- 46 days on Jome
Home description
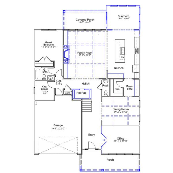
The Yates II is a spacious two-story home with five bedrooms and four-and-a-half bathrooms. The foyer opens to a home office and a formal dining room with a coffered ceiling, leading to a gourmet kitchen with a large island, built-in appliances, gas cooktop, and walk-in pantry. The great room includes a decorative ceiling and fireplace and pet pad, and a guest bedroom with full bath completes the main floor. Upstairs, three secondary bedrooms with walk-in closets share two full baths, along with a bonus room and laundry room. The primary suite features dual walk-in closets and a luxurious bath with a freestanding soaking tub, oversized shower, and dual vanities. Additional highlights include a sunroom, boxed wood stairs with metal spindles, and durable luxury vinyl plank flooring throughout main living areas. Outside, the expanded covered porch offers the perfect space to relax and enjoy your home.
May also be listed on the Mungo Homes website
Information last verified by Jome: Today at 5:56 AM (March 2, 2026)
Book your tour. Save an average of $18,473. We'll handle the rest.
We collect exclusive builder offers, book your tours, and support you from start to housewarming.
- Confirmed tours
- Get matched & compare top deals
- Expert help, no pressure
- No added fees
Estimated value based on Jome data, T&C apply
Home details
- Property status:
- Under construction
- Size:
- 4,163 sqft
- Stories:
- 2
- Beds:
- 5
- Baths:
- 4
- Half baths:
- 1
- Garage spaces:
- 2
Construction details
- Builder Name:
- Mungo Homes
- Completion Date:
- May, 2026
Home features & finishes
- Garage/Parking:
- Garage
- Rooms:
- Primary Bedroom Upstairs

Get a consultation with our New Homes Expert
- See how your home builds wealth
- Plan your home-buying roadmap
- Discover hidden gems

Community details
Gates at Windermere
by Mungo Homes, Blythewood, SC
- 7 homes
- 9 plans
- 1,671 - 4,180 sqft
View Gates at Windermere details
More homes in Gates at Windermere
- Home at address 517 Dutton Wy, Blythewood, SC 29016

Saluda II
$450,000
- 5 bd
- 4 ba
- 3,180 sqft
517 Dutton Wy, Blythewood, SC 29016
- Home at address 120 Cambria Ln, Blythewood, SC 29016

Peachtree
$454,957
- 5 bd
- 4.5 ba
- 3,128 sqft
120 Cambria Ln, Blythewood, SC 29016
- Home at address 513 Dutton Wy, Blythewood, SC 29016

Webster II
$488,222
- 5 bd
- 4.5 ba
- 3,578 sqft
513 Dutton Wy, Blythewood, SC 29016
- Home at address 523 Dutton Wy, Blythewood, SC 29016

Yates II
$524,321
- 5 bd
- 4.5 ba
- 4,180 sqft
523 Dutton Wy, Blythewood, SC 29016
Floor plans in Gates at Windermere
- View details for Yates II - Vanguard Collection

Yates II - Vanguard Collection
$409,000+- 5 bd
- 4.5 ba
- 4,009 sqft
About the builder - Mungo Homes
Neighborhood
Home address
- City:
- Blythewood
- County:
- Richland
- Zip Code:
- 29016
Schools in Richland School District 2
GreatSchools’ Summary Rating calculation is based on 4 of the school’s themed ratings, including test scores, student/academic progress, college readiness, and equity. This information should only be used as a reference. Jome is not affiliated with GreatSchools and does not endorse or guarantee this information. Please reach out to schools directly to verify all information and enrollment eligibility. Data provided by GreatSchools.org © 2025
Places of interest
Getting around
Air quality
Noise level
A Soundscore™ rating is a number between 50 (very loud) and 100 (very quiet) that tells you how loud a location is due to environmental noise.

Considering this home?
Our expert will guide your tour, in-person or virtual
Need more information?
Text or call (888) 488-9243
Financials
Estimated monthly payment
Let us help you find your dream home
How many bedrooms are you looking for?
Similar homes nearby
Recently added communities in this area
Nearby communities in Blythewood
New homes in nearby cities
More New Homes in Blythewood, SC
- Jome
- New homes search
- South Carolina
- Richland County
- Blythewood
- Gates at Windermere
- 126 Cambria Ln, Blythewood, SC 29016






















