














Book your tour. Save an average of $18,473. We'll handle the rest.
We collect exclusive builder offers, book your tours, and support you from start to housewarming.
- Confirmed tours
- Get matched & compare top deals
- Expert help, no pressure
- No added fees
Estimated value based on Jome data, T&C apply














- 4 bd
- 3.5 ba
- 1,978 sqft
247 Sunny Hill Dr, Blythewood, SC 29016
Why tour with Jome?
- No pressure toursTour at your own pace with no sales pressure
- Expert guidanceGet insights from our home buying experts
- Exclusive accessSee homes and deals not available elsewhere
Jome is featured in
- Single-Family
- Quick move-in
- $134.43/sqft
- 248 days on Jome
Home description
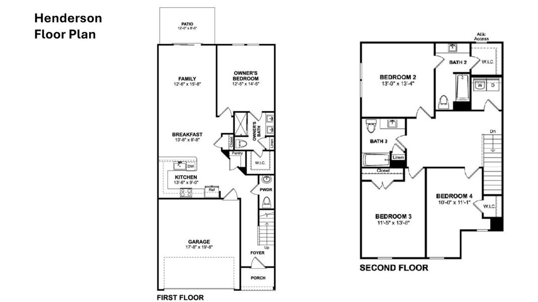
The Henderson floor plan offers the perfect balance of open living and private comfort across two thoughtfully designed levels. The first floor features an inviting layout with a spacious family room, bright breakfast area, and modern kitchen complete with a large island and walk-in pantry—ideal for everyday living or entertaining. The owner’s suite is conveniently located on the main level, providing a private retreat with a luxurious bath and walk-in closet. Upstairs, three additional bedrooms offer plenty of space for family or guests, complemented by two full baths and generous closet storage throughout. With a charming front porch, two-car garage, and inviting back patio, the Henderson combines style, practicality, and comfort to create a home that truly fits your lifestyle.
May also be listed on the Veranda Homes website
Information last verified by Jome: Today at 6:42 AM (March 6, 2026)
Book your tour. Save an average of $18,473. We'll handle the rest.
We collect exclusive builder offers, book your tours, and support you from start to housewarming.
- Confirmed tours
- Get matched & compare top deals
- Expert help, no pressure
- No added fees
Estimated value based on Jome data, T&C apply
Home details
- Property status:
- Move-in ready
- Size:
- 1,978 sqft
- Stories:
- 2
- Beds:
- 4
- Baths:
- 3
- Half baths:
- 1
- Garage spaces:
- 2
Construction details
- Builder Name:
- Veranda Homes
- Completion Date:
- November, 2025
Home features & finishes
- Garage/Parking:
- Garage

Get a consultation with our New Homes Expert
- See how your home builds wealth
- Plan your home-buying roadmap
- Discover hidden gems

Community details
The Falls
by Veranda Homes, Blythewood, SC
- 5 homes
- 3 plans
- 1,562 - 1,978 sqft
View The Falls details
More homes in The Falls
- Home at address 255 Sunny Hill Dr, Blythewood, SC 29016

Lawson
$244,900
- 4 bd
- 3.5 ba
- 1,892 sqft
255 Sunny Hill Dr, Blythewood, SC 29016
- Home at address 244 Sunny Hill Dr, Blythewood, SC 29016

Lawson
$244,900
- 4 bd
- 3.5 ba
- 1,892 sqft
244 Sunny Hill Dr, Blythewood, SC 29016
Floor plans in The Falls
About the builder - Veranda Homes
Neighborhood
Home address
- City:
- Blythewood
- County:
- Richland
- Zip Code:
- 29016
Schools in Richland School District 2
GreatSchools’ Summary Rating calculation is based on 4 of the school’s themed ratings, including test scores, student/academic progress, college readiness, and equity. This information should only be used as a reference. Jome is not affiliated with GreatSchools and does not endorse or guarantee this information. Please reach out to schools directly to verify all information and enrollment eligibility. Data provided by GreatSchools.org © 2025
Places of interest
Getting around
Air quality
Noise level
A Soundscore™ rating is a number between 50 (very loud) and 100 (very quiet) that tells you how loud a location is due to environmental noise.

Considering this home?
Our expert will guide your tour, in-person or virtual
Need more information?
Text or call (888) 488-9243
Financials
Estimated monthly payment
Let us help you find your dream home
How many bedrooms are you looking for?
Similar homes nearby
Recently added communities in this area
Nearby communities in Blythewood
New homes in nearby cities
More New Homes in Blythewood, SC
- Jome
- New homes search
- South Carolina
- Richland County
- Blythewood
- The Falls
- 247 Sunny Hill Dr, Blythewood, SC 29016






























