



Book your tour. Save an average of $18,473. We'll handle the rest.
We collect exclusive builder offers, book your tours, and support you from start to housewarming.
- Confirmed tours
- Get matched & compare top deals
- Expert help, no pressure
- No added fees
Estimated value based on Jome data, T&C apply

- 3 bd
- 2.5 ba
- 1,817 sqft
607 Wetherbrooke Wy, Columbia, SC 29229
Why tour with Jome?
- No pressure toursTour at your own pace with no sales pressure
- Expert guidanceGet insights from our home buying experts
- Exclusive accessSee homes and deals not available elsewhere
Jome is featured in
- Single-Family
- Quick move-in
- $155.2/sqft
- 3 days on Jome
Home description
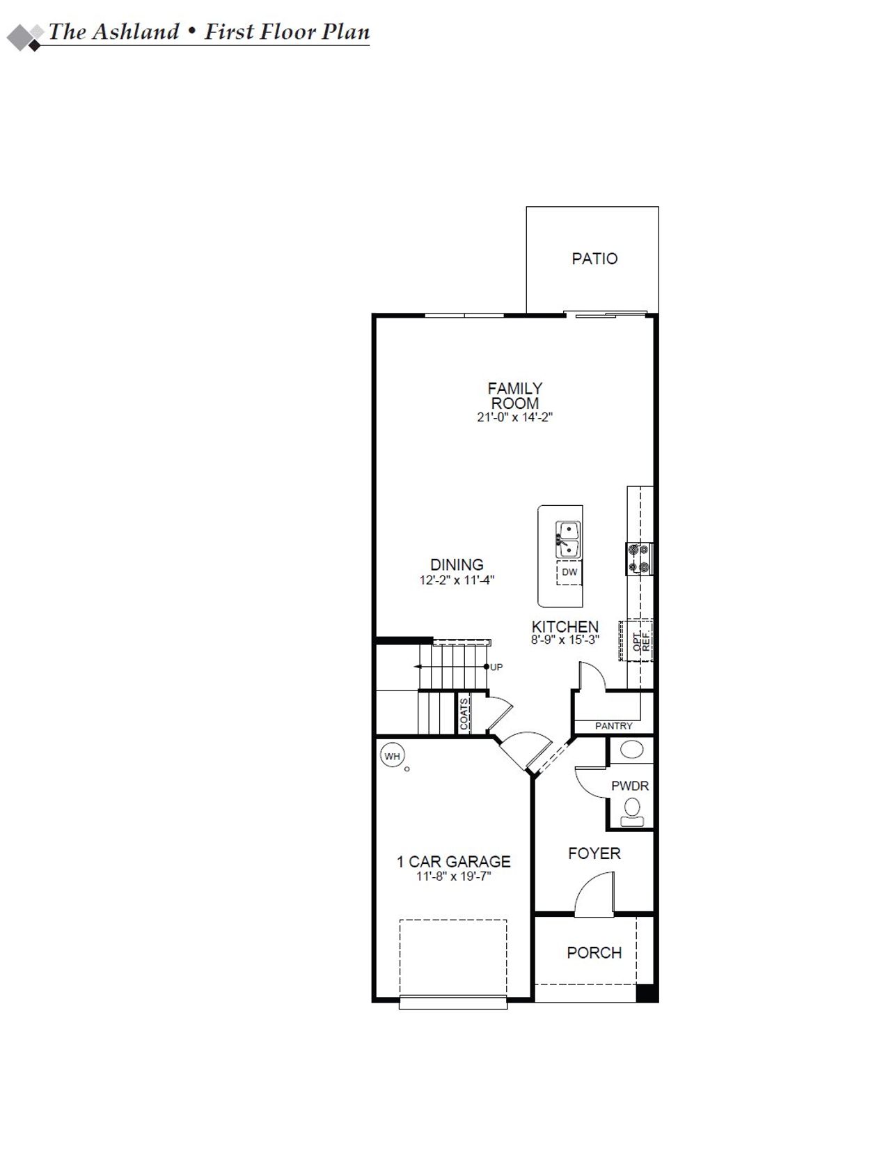
The Ashland is a three-bedroom, two-and-a-half-bath townhome with a one-car garage, spacious family room, and kitchen with island and large pantry. All bedrooms are located on the second level, including the primary bedroom, a loft, and a laundry room.
May also be listed on the Eastwood Homes website
Information last verified by Jome: Today at 6:27 AM (March 23, 2026)
Book your tour. Save an average of $18,473. We'll handle the rest.
We collect exclusive builder offers, book your tours, and support you from start to housewarming.
- Confirmed tours
- Get matched & compare top deals
- Expert help, no pressure
- No added fees
Estimated value based on Jome data, T&C apply
Home details
- Property status:
- Move-in ready
- Size:
- 1,817 sqft
- Stories:
- 2
- Beds:
- 3
- Baths:
- 2
- Half baths:
- 1
- Garage spaces:
- 1
Construction details
- Builder Name:
- Eastwood Homes
Home features & finishes
- Garage/Parking:
- GarageAttached Garage
- Interior Features:
- FoyerPantryTray CeilingLoft
- Kitchen:
- Kitchen Island
- Rooms:
- Kitchen

Get a consultation with our New Homes Expert
- See how your home builds wealth
- Plan your home-buying roadmap
- Discover hidden gems

Community details
Lake Carolina Townhomes
by Eastwood Homes, Columbia, SC
- 8 homes
- 1,474 - 1,817 sqft
View Lake Carolina Townhomes details
More homes in Lake Carolina Townhomes
- Home at address 509 Adelaide Ct, Columbia, SC 29229

Burlington
$274,990
- 3 bd
- 2.5 ba
- 1,474 sqft
509 Adelaide Ct, Columbia, SC 29229
- Home at address 511 Adelaide Ct, Columbia, SC 29229

Burlington
$274,990
- 3 bd
- 2.5 ba
- 1,474 sqft
511 Adelaide Ct, Columbia, SC 29229
- Home at address 500 Adelaide Ct, Columbia, SC 29229

Edenton
$284,990
- 3 bd
- 2.5 ba
- 1,763 sqft
500 Adelaide Ct, Columbia, SC 29229
- Home at address 606 Wetherbrooke Wy, Columbia, SC 29229

Ashland
$289,990
- 3 bd
- 2.5 ba
- 1,817 sqft
606 Wetherbrooke Wy, Columbia, SC 29229
- Home at address 608 Wetherbrooke Wy, Columbia, SC 29229

Ashland
$289,990
- 3 bd
- 2.5 ba
- 1,817 sqft
608 Wetherbrooke Wy, Columbia, SC 29229
- Home at address 502 Adelaide Ct, Columbia, SC 29229

Burlington
Contact for price
- 3 bd
- 2.5 ba
- 1,474 sqft
502 Adelaide Ct, Columbia, SC 29229
About the builder - Eastwood Homes
Neighborhood
Home address
Schools in Richland School District 2
GreatSchools’ Summary Rating calculation is based on 4 of the school’s themed ratings, including test scores, student/academic progress, college readiness, and equity. This information should only be used as a reference. Jome is not affiliated with GreatSchools and does not endorse or guarantee this information. Please reach out to schools directly to verify all information and enrollment eligibility. Data provided by GreatSchools.org © 2025
Places of interest
Getting around
Air quality
Noise level
A Soundscore™ rating is a number between 50 (very loud) and 100 (very quiet) that tells you how loud a location is due to environmental noise.

Considering this home?
Our expert will guide your tour, in-person or virtual
Need more information?
Text or call (888) 545-5198
Financials
Estimated monthly payment
Let us help you find your dream home
How many bedrooms are you looking for?
Similar homes nearby
Recently added communities in this area
Nearby communities in Columbia
New homes in nearby cities
More New Homes in Columbia, SC
- Jome
- New homes search
- South Carolina
- Richland County
- Columbia
- Lake Carolina Townhomes
- 607 Wetherbrooke Wy, Columbia, SC 29229



























