



Book your tour. Save an average of $18,473. We'll handle the rest.
We collect exclusive builder offers, book your tours, and support you from start to housewarming.
- Confirmed tours
- Get matched & compare top deals
- Expert help, no pressure
- No added fees
Estimated value based on Jome data, T&C apply

Why tour with Jome?
- No pressure toursTour at your own pace with no sales pressure
- Expert guidanceGet insights from our home buying experts
- Exclusive accessSee homes and deals not available elsewhere
Jome is featured in
- Single-Family
- Ready by June 2026
- $177.21/sqft
- 91 days on Jome
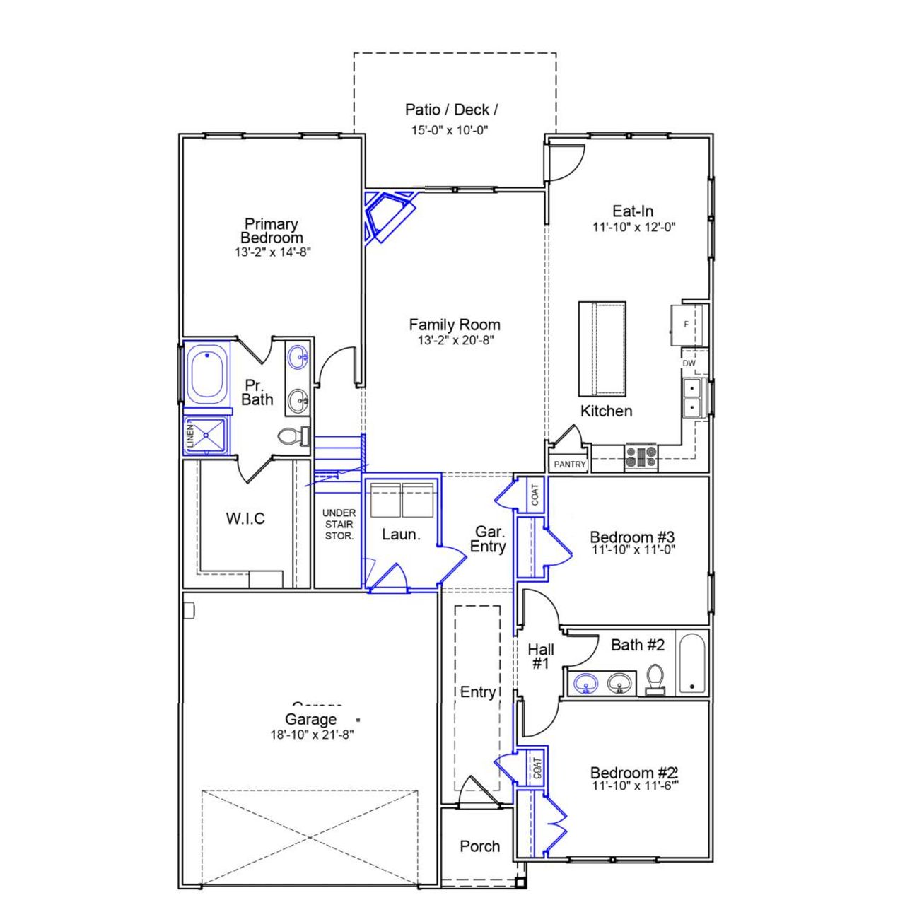
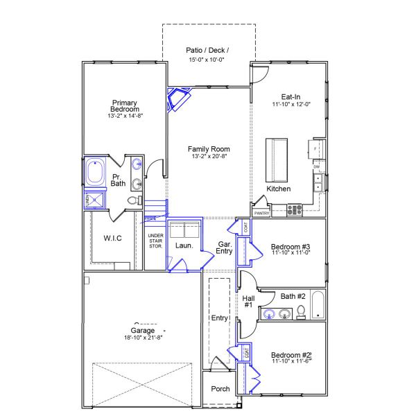
Home description
The Bates II is a four‑bedroom, three‑bath, one-and-a-half‑story home with an open main-level layout that includes a spacious kitchen, eat-in area, and great room with a gas fireplace. Upgraded flooring, quartz countertops, and designer cabinetry give the home a modern, finished look. Three bedrooms, including the primary suite, are located on the first floor. The primary suite features a garden tub, separate tile shower, dual sinks, and a walk-in closet. A private upstairs guest suite with a full bath adds valuable flexibility for visitors or work-from-home needs. The exterior includes fiber‑cement siding with board-and-batten accents, architectural shingles, a glass-panel front door, and a rear patio. Full-yard irrigation and a decorative garage door complete the home’s curb appeal. Overall, the Bates II offers comfortable main-level living, upgraded finishes, and a versatile second-floor suite in a well-designed, modern home.ile second‑floor suite in a well‑designed, modern home
May also be listed on the Mungo Homes website
Information last verified by Jome: Today at 6:04 AM (April 16, 2026)
Book your tour. Save an average of $18,473. We'll handle the rest.
We collect exclusive builder offers, book your tours, and support you from start to housewarming.
- Confirmed tours
- Get matched & compare top deals
- Expert help, no pressure
- No added fees
Estimated value based on Jome data, T&C apply
Home details
- Property status:
- Under construction
- Size:
- 2,059 sqft
- Stories:
- 1
- Beds:
- 4
- Baths:
- 3
- Garage spaces:
- 2
Construction details
- Builder Name:
- Mungo Homes
- Completion Date:
- June, 2026
Home features & finishes
- Garage/Parking:
- Garage
- Rooms:
- Primary Bedroom On MainPrimary Bedroom Downstairs

Get a consultation with our New Homes Expert
- See how your home builds wealth
- Plan your home-buying roadmap
- Discover hidden gems

Community details
Gates at Windermere
by Mungo Homes, Blythewood, SC
- 9 homes
- 9 plans
- 1,671 - 4,180 sqft
View Gates at Windermere details
More homes in Gates at Windermere
- Home at address 454 Persimmon Hill Rd, Blythewood, SC 29016

Edisto
$381,368
- 4 bd
- 3 ba
- 2,339 sqft
454 Persimmon Hill Rd, Blythewood, SC 29016
- Home at address 442 Persimmon Hill Rd, Blythewood, SC 29016

Nottely
$413,291
- 5 bd
- 3.5 ba
- 2,626 sqft
442 Persimmon Hill Rd, Blythewood, SC 29016
- Home at address 517 Dutton Wy, Blythewood, SC 29016

Saluda II
$450,000
- 5 bd
- 4 ba
- 3,180 sqft
517 Dutton Wy, Blythewood, SC 29016
- Home at address 120 Cambria Ln, Blythewood, SC 29016

Peachtree
$454,957
- 5 bd
- 4.5 ba
- 3,128 sqft
120 Cambria Ln, Blythewood, SC 29016
- Home at address 458 Persimmon Hill Rd, Blythewood, SC 29016

Webster II
$489,770
- 5 bd
- 4.5 ba
- 3,578 sqft
458 Persimmon Hill Rd, Blythewood, SC 29016
- Home at address 523 Dutton Wy, Blythewood, SC 29016

Yates II
$520,000
- 5 bd
- 4.5 ba
- 4,180 sqft
523 Dutton Wy, Blythewood, SC 29016
Floor plans in Gates at Windermere
- View details for Edisto - Vanguard Collection

Edisto - Vanguard Collection
$313,000+- 4 bd
- 2.5 ba
- 2,285 sqft
- View details for Nantahala II - Vanguard Collection

Nantahala II - Vanguard Collection
$323,000+- 4 bd
- 2.5 ba
- 2,450 sqft
About the builder - Mungo Homes
Neighborhood
Home address
- City:
- Blythewood
- County:
- Richland
- Zip Code:
- 29016
Schools in Richland School District 2
GreatSchools’ Summary Rating calculation is based on 4 of the school’s themed ratings, including test scores, student/academic progress, college readiness, and equity. This information should only be used as a reference. Jome is not affiliated with GreatSchools and does not endorse or guarantee this information. Please reach out to schools directly to verify all information and enrollment eligibility. Data provided by GreatSchools.org © 2025
Places of interest
Getting around
Air quality
Noise level
A Soundscore™ rating is a number between 50 (very loud) and 100 (very quiet) that tells you how loud a location is due to environmental noise.

Considering this home?
Our expert will guide your tour, in-person or virtual
Need more information?
Text or call (888) 545-5198
Financials
Estimated monthly payment
Let us help you find your dream home
How many bedrooms are you looking for?
Similar homes nearby
Recently added communities in this area
Nearby communities in Blythewood
New homes in nearby cities
More New Homes in Blythewood, SC
- Jome
- New homes search
- South Carolina
- Richland County
- Blythewood
- Gates at Windermere
- 136 Cambria Ln, Blythewood, SC 29016






























