




Book your tour. Save an average of $18,473. We'll handle the rest.
- Confirmed tours
- Get matched & compare top deals
- Expert help, no pressure
- No added fees
Estimated value based on Jome data, T&C apply
Why tour with Jome?
- No pressure toursTour at your own pace with no sales pressure
- Expert guidanceGet insights from our home buying experts
- Exclusive accessSee homes and deals not available elsewhere
Jome is featured in
- Single-Family
- Ready by May 2026
- $151.49/sqft
- 4 days on Jome
Home description
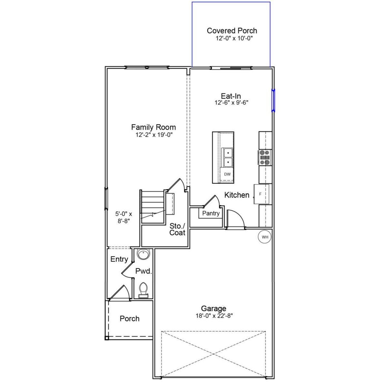
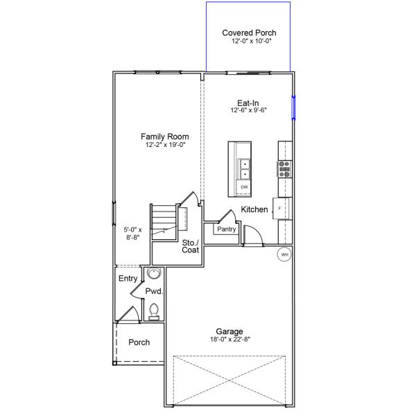
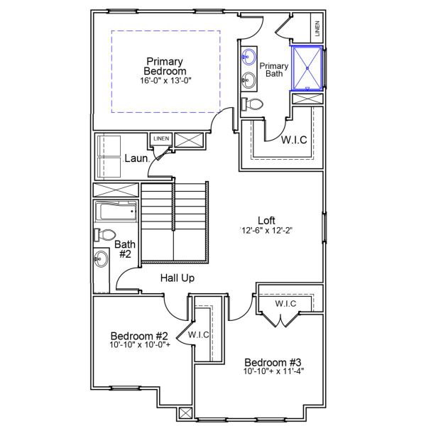
Enjoy living in Bluefield—the only community in Lexington with a lazy river! The Highland plan is a two-story, three bedroom, two-and-one-half bathroom home with walk-in closets in all bedrooms. Upon entry, you are greeted by the open great room, eat-in, and kitchen, complete with an island and amazing space for entertaining. A corner pantry and closet under the stairs provides ample space for storage! Upstairs, you will find all bedrooms. The primary suite includes a linen closet in the bathroom, a spacious walk-in closet, and a large walk-in shower. A bonus loft area separates the two secondary bedrooms from the primary. Enjoy cookouts and entertain on the back covered porch! Call for more information.
May also be listed on the Mungo Homes website
Information last verified by Jome: Today at 5:46 AM (December 16, 2025)
Home highlights
Book your tour. Save an average of $18,473. We'll handle the rest.
We collect exclusive builder offers, book your tours, and support you from start to housewarming.
- Confirmed tours
- Get matched & compare top deals
- Expert help, no pressure
- No added fees
Estimated value based on Jome data, T&C apply
Home details
- Property status:
- Under construction
- Size:
- 1,818 sqft
- Stories:
- 2
- Beds:
- 3
- Baths:
- 2
- Half baths:
- 1
- Garage spaces:
- 2
Construction details
- Builder Name:
- Mungo Homes
- Completion Date:
- May, 2026
Home features & finishes
- Garage/Parking:
- Garage
- Rooms:
- Primary Bedroom Upstairs

Community details
Bluefield
by Mungo Homes, Lexington, SC
- 24 homes
- 17 plans
- 1,148 - 2,985 sqft
View Bluefield details
More homes in Bluefield
Floor plans in Bluefield
About the builder - Mungo Homes
Neighborhood
Home address
Schools in Lexington School District 2
GreatSchools’ Summary Rating calculation is based on 4 of the school’s themed ratings, including test scores, student/academic progress, college readiness, and equity. This information should only be used as a reference. Jome is not affiliated with GreatSchools and does not endorse or guarantee this information. Please reach out to schools directly to verify all information and enrollment eligibility. Data provided by GreatSchools.org © 2025
Places of interest
Getting around
Air quality
Noise level
A Soundscore™ rating is a number between 50 (very loud) and 100 (very quiet) that tells you how loud a location is due to environmental noise.
Natural hazards risk
Climate hazards can impact homes and communities, with risks varying by location. These scores reflect the potential impact of natural disasters and climate-related risks on Lexington County
Provided by FEMA

Considering this home?
Our expert will guide your tour, in-person or virtual
Need more information?
Text or call (888) 486-2818
Financials
Estimated monthly payment
Similar homes nearby
Recently added communities in this area
Nearby communities in Lexington
New homes in nearby cities
More New Homes in Lexington, SC
- Jome
- New homes search
- South Carolina
- Lexington County
- Lexington
- Bluefield
- 3917 Golden Crane Pass, Lexington, SC 29073







































