








Book your tour. Save an average of $18,473. We'll handle the rest.
We collect exclusive builder offers, book your tours, and support you from start to housewarming.
- Confirmed tours
- Get matched & compare top deals
- Expert help, no pressure
- No added fees
Estimated value based on Jome data, T&C apply








Why tour with Jome?
- No pressure toursTour at your own pace with no sales pressure
- Expert guidanceGet insights from our home buying experts
- Exclusive accessSee homes and deals not available elsewhere
Jome is featured in
- Single-Family
- Ready by July 2026
- $156.15/sqft
- 1 days on Jome
Home description
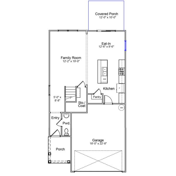
Experience a relaxed, resort-style lifestyle in Bluefield, where standout amenities include a pool with a lazy river, playground, and dog park! This beautiful three‑bedroom, two‑and‑a‑half‑bath Highland floorplan offers an open‑concept layout ideal for hosting and gatherings. The spacious kitchen features a beautiful island, white cabinets, stainless steel appliances with a gas range. It flows seamlessly into the main living area, creating the perfect space for cooking, gathering, and relaxing. Upstairs, the open loft provides an additional living area. The primary suite feels like a true retreat, complete with a large tile shower, dual vanities and quartz countertops. Step outside to the covered porch, perfect for enjoying morning coffee or relaxing in the evening. This home blends style, comfort, and modern design, making it the perfect place to call home.
May also be listed on the Mungo Homes website
Information last verified by Jome: Today at 5:58 AM (April 1, 2026)
Book your tour. Save an average of $18,473. We'll handle the rest.
We collect exclusive builder offers, book your tours, and support you from start to housewarming.
- Confirmed tours
- Get matched & compare top deals
- Expert help, no pressure
- No added fees
Estimated value based on Jome data, T&C apply
Home details
- Property status:
- Under construction
- Size:
- 1,818 sqft
- Stories:
- 2
- Beds:
- 3
- Baths:
- 2
- Half baths:
- 1
- Garage spaces:
- 2
Construction details
- Builder Name:
- Mungo Homes
- Completion Date:
- July, 2026
Home features & finishes
- Garage/Parking:
- Garage
- Rooms:
- Primary Bedroom Upstairs

Get a consultation with our New Homes Expert
- See how your home builds wealth
- Plan your home-buying roadmap
- Discover hidden gems

Community details
Bluefield
by Mungo Homes, Lexington, SC
- 20 homes
- 12 plans
- 1,148 - 2,822 sqft
View Bluefield details
More homes in Bluefield
- Home at address 3380 Matrim Wy, Lexington, SC 29073

Baker
$226,820
- 3 bd
- 2 ba
- 1,148 sqft
3380 Matrim Wy, Lexington, SC 29073
- Home at address 3921 Golden Crane Pass, Lexington, SC 29073

Bartow
$241,000
- 3 bd
- 2.5 ba
- 1,476 sqft
3921 Golden Crane Pass, Lexington, SC 29073
- Home at address 3914 Golden Crane Pass, Lexington, SC 29073

Dawson
$248,932
- 3 bd
- 2.5 ba
- 1,617 sqft
3914 Golden Crane Pass, Lexington, SC 29073
- Home at address 3352 Matrim Wy, Lexington, SC 29073

Dawson
$253,166
- 3 bd
- 2.5 ba
- 1,617 sqft
3352 Matrim Wy, Lexington, SC 29073
- Home at address 4023 Arafel Dr, Lexington, SC 29073

Dawson
$254,739
- 3 bd
- 2.5 ba
- 1,617 sqft
4023 Arafel Dr, Lexington, SC 29073
- Home at address 3913 Golden Crane Pass, Lexington, SC 29073

Evans
$269,000
- 4 bd
- 2.5 ba
- 1,726 sqft
3913 Golden Crane Pass, Lexington, SC 29073
Floor plans in Bluefield
- View details for Baker - Genesis Value Collection

Baker - Genesis Value Collection
$212,000+- 3 bd
- 2 ba
- 1,148 sqft
- View details for Bartow - Genesis Value Collection

Bartow - Genesis Value Collection
$230,000+- 3 bd
- 2.5 ba
- 1,476 sqft
About the builder - Mungo Homes
Neighborhood
Home address
Schools in Lexington School District 2
GreatSchools’ Summary Rating calculation is based on 4 of the school’s themed ratings, including test scores, student/academic progress, college readiness, and equity. This information should only be used as a reference. Jome is not affiliated with GreatSchools and does not endorse or guarantee this information. Please reach out to schools directly to verify all information and enrollment eligibility. Data provided by GreatSchools.org © 2025
Places of interest
Getting around
Air quality
Noise level
A Soundscore™ rating is a number between 50 (very loud) and 100 (very quiet) that tells you how loud a location is due to environmental noise.

Considering this home?
Our expert will guide your tour, in-person or virtual
Need more information?
Text or call (888) 545-5198
Financials
Estimated monthly payment
Let us help you find your dream home
How many bedrooms are you looking for?
Similar homes nearby
Recently added communities in this area
Nearby communities in Lexington
New homes in nearby cities
More New Homes in Lexington, SC
- Jome
- New homes search
- South Carolina
- Lexington County
- Lexington
- Bluefield
- 3946 Golden Crane Pass, Lexington, SC 29073





























