














Book your tour. Save an average of $18,473. We'll handle the rest.
We collect exclusive builder offers, book your tours, and support you from start to housewarming.
- Confirmed tours
- Get matched & compare top deals
- Expert help, no pressure
- No added fees
Estimated value based on Jome data, T&C apply




Why tour with Jome?
- No pressure toursTour at your own pace with no sales pressure
- Expert guidanceGet insights from our home buying experts
- Exclusive accessSee homes and deals not available elsewhere
Jome is featured in
- Single-Family
- Ready by April 2026
- $147.3/sqft
- 119 days on Jome
Builder deals available
- TOP-TIER DEAL
VA 30 Year Fixed
$5,330 est. value- Rate buydown from 3.49% (1 year) with 4.733% APR
FHA 30 Year Fixed
$330 est. value- Rate buydown from 3.49% (1 year) with 5.422% APR and 3.5% down payment
Deals may change and are not guaranteed. Some deals apply to specific homes or plans. Not a financing offer. Eligibility varies by lender. Please verify details.
Home description
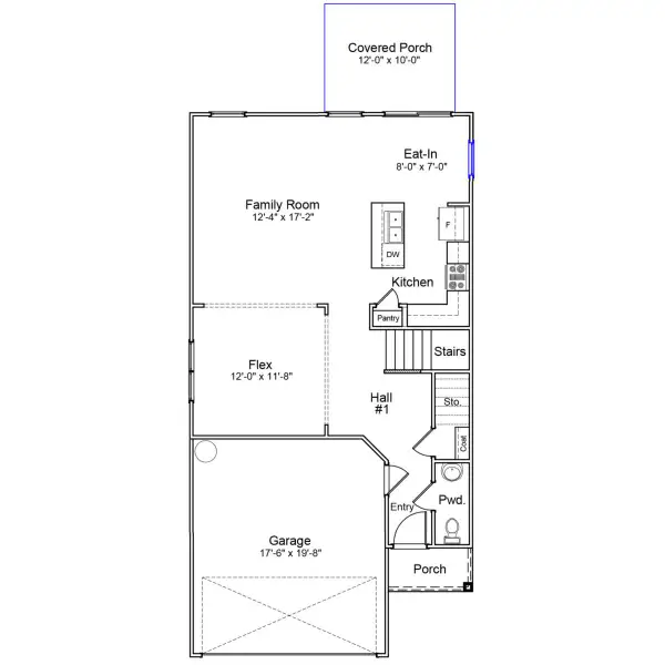
Experience a luxurious lifestyle in Bluefield—the only community in Lexington with a lazy river! The Kershaw is a two-story home with three bedrooms and two-and-one-half bathrooms. A formal dining space is available just past the foyer of the home and opens up to the kitchen and great room. The kitchen, eat-in area, and great room are all found in the center of the home and welcome in natural light through multiple windows. A large, tiled shower can be found in the upstairs primary bedroom suite, which also features double vanities and a generous walk-in closet. The upstairs bedrooms all have private closets and share a full bathroom. In the backyard, you'll enjoy a covered porch—perfect for enjoying the Carolina nights. Call for more information!
May also be listed on the Mungo Homes website
Information last verified by Jome: Today at 6:09 AM (March 16, 2026)
Book your tour. Save an average of $18,473. We'll handle the rest.
We collect exclusive builder offers, book your tours, and support you from start to housewarming.
- Confirmed tours
- Get matched & compare top deals
- Expert help, no pressure
- No added fees
Estimated value based on Jome data, T&C apply
Home details
- Property status:
- Under construction
- Size:
- 1,962 sqft
- Stories:
- 2
- Beds:
- 3
- Baths:
- 2
- Half baths:
- 1
- Garage spaces:
- 2
Construction details
- Builder Name:
- Mungo Homes
- Completion Date:
- April, 2026
Home features & finishes
- Garage/Parking:
- Garage
- Rooms:
- Primary Bedroom Upstairs

Get a consultation with our New Homes Expert
- See how your home builds wealth
- Plan your home-buying roadmap
- Discover hidden gems

Community details
Bluefield
by Mungo Homes, Lexington, SC
- 20 homes
- 12 plans
- 1,148 - 3,117 sqft
View Bluefield details
More homes in Bluefield
- Home at address 3344 Matrim Wy, Lexington, SC 29073

Baker
Savings$229,285
- 3 bd
- 2 ba
- 1,148 sqft
3344 Matrim Wy, Lexington, SC 29073
- Home at address 3921 Golden Crane Pass, Lexington, SC 29073

Bartow
Savings$241,882
- 3 bd
- 2.5 ba
- 1,476 sqft
3921 Golden Crane Pass, Lexington, SC 29073
- Home at address 3340 Matrim Wy, Lexington, SC 29073

Bartow
Savings$243,769
- 3 bd
- 2.5 ba
- 1,476 sqft
3340 Matrim Wy, Lexington, SC 29073
- Home at address 4023 Arafel Dr, Lexington, SC 29073

Dawson
Savings$254,739
- 3 bd
- 2.5 ba
- 1,617 sqft
4023 Arafel Dr, Lexington, SC 29073
- Home at address 3376 Matrim Wy, Lexington, SC 29073

Bartow
Savings$255,382
- 3 bd
- 2.5 ba
- 1,476 sqft
3376 Matrim Wy, Lexington, SC 29073
- Home at address 3667 Stedding Pl, Lexington, SC 29073

Brunswick
Savings$259,000
- 3 bd
- 2 ba
- 1,546 sqft
3667 Stedding Pl, Lexington, SC 29073
Floor plans in Bluefield
- View details for Baker - Genesis Value Collection

Baker - Genesis Value Collection
$212,000+- 3 bd
- 2 ba
- 1,148 sqft
- View details for Bartow - Genesis Value Collection

Bartow - Genesis Value Collection
$230,000+- 3 bd
- 2.5 ba
- 1,476 sqft
About the builder - Mungo Homes
Neighborhood
Home address
Schools in Lexington School District 2
GreatSchools’ Summary Rating calculation is based on 4 of the school’s themed ratings, including test scores, student/academic progress, college readiness, and equity. This information should only be used as a reference. Jome is not affiliated with GreatSchools and does not endorse or guarantee this information. Please reach out to schools directly to verify all information and enrollment eligibility. Data provided by GreatSchools.org © 2025
Places of interest
Getting around
Air quality
Noise level
A Soundscore™ rating is a number between 50 (very loud) and 100 (very quiet) that tells you how loud a location is due to environmental noise.

Considering this home?
Our expert will guide your tour, in-person or virtual
Need more information?
Text or call (888) 545-5198
Financials
Estimated monthly payment
Let us help you find your dream home
How many bedrooms are you looking for?
Similar homes nearby
Recently added communities in this area
Nearby communities in Lexington
New homes in nearby cities
More New Homes in Lexington, SC
- Jome
- New homes search
- South Carolina
- Lexington County
- Lexington
- Bluefield
- 3332 Matrim Wy, Lexington, SC 29073




























