








































- 4 bd
- 2.5 ba
- 1,709 sqft
3336 Matrim Wy, Lexington, SC 29073
- Single-Family
- $158.57/sqft
- 168 days on Jome
New Homes for Sale Near 3336 Matrim Wy, Lexington, SC 29073
About this Home
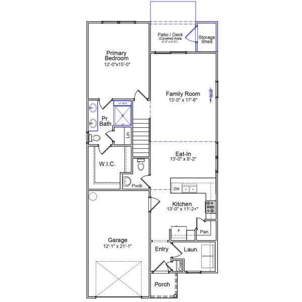
This beautiful four‑bedroom, two‑and‑a‑half‑bath Evans floorplan features a highly desirable layout with the primary suite located on the main floor, creating a convenient and private retreat.
The main living area showcases an open‑concept design highlighted by bright white cabinetry in the kitchen, a gas range and bartop seating, creating a layout that feels spacious, connected, and perfect for entertaining. This home also includes a covered porch and storage shed for additional space. Upstairs, additional spacious bedrooms and a bonus room provides plenty of room for family, guests, or hobbies. Overall, creates a warm and functional environment making it the perfection place to call home!
May also be listed on the Mungo Homes website
Information last verified by Jome: Thursday at 5:34 AM (April 2, 2026)
Home details
- Property status:
- Sold
- Size:
- 1,709 sqft
- Stories:
- 2
- Beds:
- 4
- Baths:
- 2
- Half baths:
- 1
- Garage spaces:
- 1
Construction details
- Builder Name:
- Mungo Homes
- Completion Date:
- April, 2026
Home features & finishes
- Garage/Parking:
- Garage
- Rooms:
- Primary Bedroom Downstairs

Community details
Bluefield
by Mungo Homes, Lexington, SC
- 17 homes
- 12 plans
- 1,148 - 2,658 sqft
View Bluefield details
More homes in Bluefield
- Home at address 3913 Golden Crane Pass, Lexington, SC 29073

$267,000
Move-in ready- 4 bd
- 2.5 ba
- 1,726 sqft
3913 Golden Crane Pass, Lexington, SC 29073
- Home at address 3511 Stedding Pl, Lexington, SC 29073

$270,489
Under construction- 4 bd
- 2.5 ba
- 1,809 sqft
3511 Stedding Pl, Lexington, SC 29073
- Home at address 3356 Matrim Wy, Lexington, SC 29073

$271,709
Under construction- 4 bd
- 2.5 ba
- 1,709 sqft
3356 Matrim Wy, Lexington, SC 29073
- Home at address 3922 Golden Crane Pass, Lexington, SC 29073

$277,353
Under construction- 4 bd
- 2.5 ba
- 1,962 sqft
3922 Golden Crane Pass, Lexington, SC 29073
- Home at address 3675 Stedding Pl, Lexington, SC 29073

$280,000
Move-in ready- 4 bd
- 2.5 ba
- 1,809 sqft
3675 Stedding Pl, Lexington, SC 29073
- Home at address 3348 Matrim Wy, Lexington, SC 29073

$281,336
Under construction- 4 bd
- 2.5 ba
- 1,962 sqft
3348 Matrim Wy, Lexington, SC 29073
Floor plans in Bluefield
- View details for Guilford - Genesis Value Collection

Guilford - Genesis Value Collection
$247,000+- 4 bd
- 2.5 ba
- 1,772 sqft
- View details for Lancaster - Genesis Value Collection

Lancaster - Genesis Value Collection
$270,000+- 4 bd
- 2.5 ba
- 2,152 sqft
About the builder - Mungo Homes
Neighborhood
Home address
Schools in Lexington School District 2
GreatSchools’ Summary Rating calculation is based on 4 of the school’s themed ratings, including test scores, student/academic progress, college readiness, and equity. This information should only be used as a reference. Jome is not affiliated with GreatSchools and does not endorse or guarantee this information. Please reach out to schools directly to verify all information and enrollment eligibility. Data provided by GreatSchools.org © 2025
Places of interest
Getting around
Air quality
Noise level
A Soundscore™ rating is a number between 50 (very loud) and 100 (very quiet) that tells you how loud a location is due to environmental noise.
Financials
Nearby communities in Lexington
Homes in Lexington by Mungo Homes
Recently added communities in this area
Other Builders in Lexington, SC
Nearby sold homes
New homes in nearby cities
More New Homes in Lexington, SC
- Jome
- New homes search
- South Carolina
- Lexington County
- Lexington
- Bluefield
- 3336 Matrim Wy, Lexington, SC 29073



































































