









Book your tour. Save an average of $18,473. We'll handle the rest.
We collect exclusive builder offers, book your tours, and support you from start to housewarming.
- Confirmed tours
- Get matched & compare top deals
- Expert help, no pressure
- No added fees
Estimated value based on Jome data, T&C apply






Why tour with Jome?
- No pressure toursTour at your own pace with no sales pressure
- Expert guidanceGet insights from our home buying experts
- Exclusive accessSee homes and deals not available elsewhere
Jome is featured in
- Single-Family
- Ready by July 2026
- $142.41/sqft
- 46 days on Jome
Home description
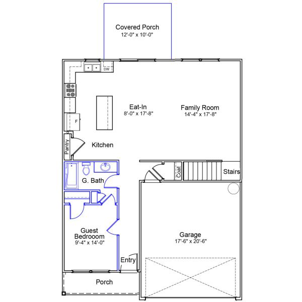
Experience the life of luxury in Bluefield, the only community in Lexington with a lazy river! This two-story Meriwether has four bedrooms, three bathrooms and a large open loft space upstairs. There's a guest bedroom with full bath on the main level. The kitchen features an island with beautiful pendants, stainless steel appliances and a gas range. Step upstairs to a large open loft space that can be used as an additional living space for entertaining. The spacious primary bedroom features an ensuite with a garden tub and separate tile shower, dual sinks and a spacious walk-in closet that leads to the laundry. Two additional bedrooms share a bathroom completing this functional home. Lastly, enjoy the cool Carolina nights under the covered porch this home offers!
May also be listed on the Mungo Homes website
Information last verified by Jome: Yesterday at 6:01 AM (May 16, 2026)
Book your tour. Save an average of $18,473. We'll handle the rest.
We collect exclusive builder offers, book your tours, and support you from start to housewarming.
- Confirmed tours
- Get matched & compare top deals
- Expert help, no pressure
- No added fees
Estimated value based on Jome data, T&C apply
Home details
- Property status:
- Under construction
- Size:
- 2,223 sqft
- Stories:
- 2
- Beds:
- 4
- Baths:
- 3
- Garage spaces:
- 2
Construction details
- Builder Name:
- Mungo Homes
- Completion Date:
- July, 2026
Home features & finishes
- Garage/Parking:
- Garage
- Rooms:
- Primary Bedroom Upstairs

Get a consultation with our New Homes Expert
- See how your home builds wealth
- Plan your home-buying roadmap
- Discover hidden gems

Community details
Bluefield
by Mungo Homes, Lexington, SC
- 16 homes
- 12 plans
- 1,148 - 2,621 sqft
View Bluefield details
More homes in Bluefield
- Home at address 3913 Golden Crane Pass, Lexington, SC 29073

Evans
$265,800
- 4 bd
- 2.5 ba
- 1,726 sqft
3913 Golden Crane Pass, Lexington, SC 29073
- Home at address 3511 Stedding Pl, Lexington, SC 29073

Guilford
$270,489
- 4 bd
- 2.5 ba
- 1,809 sqft
3511 Stedding Pl, Lexington, SC 29073
- Home at address 3942 Golden Crane Pass, Lexington, SC 29073

Evans
$271,600
- 4 bd
- 2.5 ba
- 1,709 sqft
3942 Golden Crane Pass, Lexington, SC 29073
- Home at address 3356 Matrim Wy, Lexington, SC 29073

Evans
$271,709
- 4 bd
- 2.5 ba
- 1,709 sqft
3356 Matrim Wy, Lexington, SC 29073
- Home at address 3348 Matrim Wy, Lexington, SC 29073

Kershaw
$281,000
- 4 bd
- 2.5 ba
- 1,962 sqft
3348 Matrim Wy, Lexington, SC 29073
- Home at address 3627 Stedding Pl, Lexington, SC 29073

Guilford
$282,227
- 4 bd
- 2.5 ba
- 1,809 sqft
3627 Stedding Pl, Lexington, SC 29073
Floor plans in Bluefield
- View details for Guilford - Genesis Value Collection

Guilford - Genesis Value Collection
$247,000+- 4 bd
- 2.5 ba
- 1,772 sqft
- View details for Lancaster - Genesis Value Collection

Lancaster - Genesis Value Collection
$270,000+- 4 bd
- 2.5 ba
- 2,152 sqft
About the builder - Mungo Homes
Neighborhood
Home address
Schools in Lexington School District 2
GreatSchools’ Summary Rating calculation is based on 4 of the school’s themed ratings, including test scores, student/academic progress, college readiness, and equity. This information should only be used as a reference. Jome is not affiliated with GreatSchools and does not endorse or guarantee this information. Please reach out to schools directly to verify all information and enrollment eligibility. Data provided by GreatSchools.org © 2025
Places of interest
Getting around
Air quality
Noise level
A Soundscore™ rating is a number between 50 (very loud) and 100 (very quiet) that tells you how loud a location is due to environmental noise.

Considering this home?
Our expert will guide your tour, in-person or virtual
Need more information?
Text or call (888) 545-5198
Financials
Estimated monthly payment
Let us help you find your dream home
How many bedrooms are you looking for?
Similar homes nearby
Recently added communities in this area
Nearby communities in Lexington
New homes in nearby cities
More New Homes in Lexington, SC
- Jome
- New homes search
- South Carolina
- Lexington County
- Lexington
- Bluefield
- 3634 Stedding Pl, Lexington, SC 29073





























