














Book your tour. Save an average of $18,473. We'll handle the rest.
We collect exclusive builder offers, book your tours, and support you from start to housewarming.
- Confirmed tours
- Get matched & compare top deals
- Expert help, no pressure
- No added fees
Estimated value based on Jome data, T&C apply























Why tour with Jome?
- No pressure toursTour at your own pace with no sales pressure
- Expert guidanceGet insights from our home buying experts
- Exclusive accessSee homes and deals not available elsewhere
Jome is featured in
- Single-Family
- Quick move-in
- $207.59/sqft
- 0.09-acre lot
Builder deals available
FHA 30 Year Fixed
$20,420 est. value- Rate buydown from 2.99% (1 year), 3.99% (2 year), 4.99% (3–30 year) with 5.746% APR, 3.5% down payment, and 720 credit score
Deals may change and are not guaranteed. Some deals apply to specific homes or plans. Not a financing offer. Eligibility varies by lender. Please verify details.
Home description
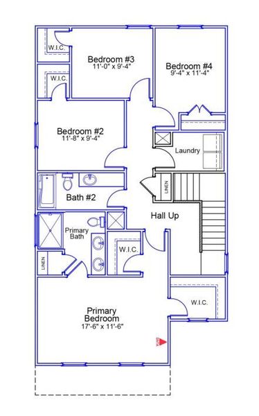
Ready now! Welcome to Central Creek, a brand-new boutique community in the heart of Goose Creek! This beautiful two-story home features 4 bedrooms, each with a walk-in closet and 2.5 bathrooms. The open first floor offers a spacious family room, dedicated office, and a modern kitchen with upgraded cabinets and quartz countertops. Luxury vinyl plank flooring and crown molding extend throughout the main level, adding style and durability. The dining area flows seamlessly to a covered porch, perfect for outdoor dining or relaxing. A convenient two-car garage adds extra functionality. Upstairs, the luxurious primary suite includes two walk-in closets and a private bath with dual sinks and a walk-in tiled shower. The laundry room sits between all bedrooms, along with a shared secondary bath.
Carolina One Real Estate, MLS 25031199
May also be listed on the Mungo Homes website
Information last verified by Jome: Today at 7:39 AM (March 7, 2026)
Home highlights
Cutting-edge data hub in Berkeley County boosting tech jobs, infrastructure, and digital growth in the Charleston area.
Book your tour. Save an average of $18,473. We'll handle the rest.
We collect exclusive builder offers, book your tours, and support you from start to housewarming.
- Confirmed tours
- Get matched & compare top deals
- Expert help, no pressure
- No added fees
Estimated value based on Jome data, T&C apply
Home details
- Property status:
- Move-in ready
- Lot size (acres):
- 0.09
- Size:
- 1,951 sqft
- Stories:
- 2
- Beds:
- 4
- Baths:
- 2
- Half baths:
- 1
- Garage spaces:
- 2
Construction details
- Builder Name:
- Mungo Homes
- Completion Date:
- January, 2026
- Year Built:
- 2025
Home features & finishes
- Cooling:
- Central Air
- Flooring:
- Ceramic FlooringVinyl FlooringCarpet FlooringTile Flooring
- Garage/Parking:
- GarageAttached Garage
- Interior Features:
- Ceiling-HighWalk-In ClosetFoyerPantry
- Kitchen:
- Kitchen Island
- Laundry facilities:
- DryerWasherUtility/Laundry Room
- Property amenities:
- Porch
- Rooms:
- KitchenOffice/StudyFamily Room

Get a consultation with our New Homes Expert
- See how your home builds wealth
- Plan your home-buying roadmap
- Discover hidden gems
Utility information
- Heating:
- Electric Heating

Community details
Central Creek
by Mungo Homes, Goose Creek, SC
- 18 homes
- 7 plans
- 1,476 - 1,973 sqft
View Central Creek details
Community amenities
- Park Nearby
- Walking, Jogging, Hike Or Bike Trails
More homes in Central Creek
- Home at address 222 Central Creek Dr, Goose Creek, SC 29445

Kershaw
$412,000
- 4 bd
- 2.5 ba
- 1,973 sqft
222 Central Creek Dr, Goose Creek, SC 29445
- Home at address 220 Central Creek Dr, Goose Creek, SC 29445

Highland
$414,000
- 4 bd
- 2.5 ba
- 1,833 sqft
220 Central Creek Dr, Goose Creek, SC 29445
- Home at address 228 Central Creek Dr, Goose Creek, SC 29445

Highland
$421,999
- 4 bd
- 2.5 ba
- 1,833 sqft
228 Central Creek Dr, Goose Creek, SC 29445
- Home at address 112 Old Creek Ct, Goose Creek, SC 29445

Highland
$424,499
- 4 bd
- 2.5 ba
- 1,818 sqft
112 Old Creek Ct, Goose Creek, SC 29445
Floor plans in Central Creek
- View details for Bartow - Genesis Value Collection

Bartow - Genesis Value Collection
$357,000+- 3 bd
- 2.5 ba
- 1,476 sqft
- View details for Dawson - Genesis Value Collection

Dawson - Genesis Value Collection
$362,000+- 3 bd
- 2.5 ba
- 1,617 sqft
About the builder - Mungo Homes
Neighborhood
Home address
- City:
- Goose Creek
- County:
- Berkeley
- Zip Code:
- 29445
Schools in Berkeley County School District
GreatSchools’ Summary Rating calculation is based on 4 of the school’s themed ratings, including test scores, student/academic progress, college readiness, and equity. This information should only be used as a reference. Jome is not affiliated with GreatSchools and does not endorse or guarantee this information. Please reach out to schools directly to verify all information and enrollment eligibility. Data provided by GreatSchools.org © 2025
Places of interest
Getting around
Air quality
Noise level
A Soundscore™ rating is a number between 50 (very loud) and 100 (very quiet) that tells you how loud a location is due to environmental noise.

Considering this home?
Our expert will guide your tour, in-person or virtual
Need more information?
Text or call (888) 488-9243
Financials
Estimated monthly payment
Let us help you find your dream home
How many bedrooms are you looking for?
Similar homes nearby
Recently added communities in this area
Nearby communities in Goose Creek
New homes in nearby cities
More New Homes in Goose Creek, SC
Carolina One Real Estate, MLS 25031199
IDX information is provided exclusively for personal, non-commercial use, and may not be used for any purpose other than to identify prospective properties consumers may be interested in purchasing. Copyright Charleston Trident Multiple Listing Service, Inc. All rights reserved. Information is deemed reliable but not guaranteed.
Read moreLast checked Mar 7, 1:55 pm
- Jome
- New homes search
- South Carolina
- Charleston Metropolitan Area
- Berkeley County
- Goose Creek
- Central Creek
- 217 Central Creek Dr, Goose Creek, SC 29445

































