














Book your tour. Save an average of $18,473. We'll handle the rest.
We collect exclusive builder offers, book your tours, and support you from start to housewarming.
- Confirmed tours
- Get matched & compare top deals
- Expert help, no pressure
- No added fees
Estimated value based on Jome data, T&C apply


Why tour with Jome?
- No pressure toursTour at your own pace with no sales pressure
- Expert guidanceGet insights from our home buying experts
- Exclusive accessSee homes and deals not available elsewhere
Jome is featured in
- Single-Family
- Ready by June 2026
- $223.73/sqft
- 1 days on Jome
Builder deals available
- TOP-TIER DEAL
VA 30 Year Fixed
$6,950 est. value- Rate buydown from 3.49% (1 year) with 4.733% APR
FHA 30 Year Fixed
$80 est. value- Rate buydown from 3.49% (1 year) with 5.422% APR and 3.5% down payment
Deals may change and are not guaranteed. Some deals apply to specific homes or plans. Not a financing offer. Eligibility varies by lender. Please verify details.
Home description
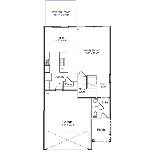
This thoughtfully designed two-story home invites you to settle in and stay awhile. From the moment you walk through the front door, you’re welcomed into a bright dining space that flows effortlessly into the kitchen and great room—perfect for slow morning coffee, weeknight dinners, or hosting friends on the weekend. Crown molding, durable luxury vinyl plank flooring, and open wood spindle railings leading upstairs add warmth and character throughout the main level. A convenient half bath and rear covered patio make everyday living easy—imagine grilling out back or unwinding outdoors at the end of the day. The spacious two-car garage offers plenty of room for vehicles, storage, or even a small workshop setup—keeping your home organized and clutter-free. Upstairs, the centrally located laundry room is right where you need it—just steps from the bedrooms and loft, making busy routines feel more manageable. The primary suite offers a peaceful escape with a spacious walk-in closet and a private bath featuring dual sinks and a walk-in shower. Two additional bedrooms and a full hall bath provide comfortable, flexible space for loved ones, guests, or even a dedicated home office. Designed for real life, this home combines comfort, style, and functionality in a way that truly feels like home.
May also be listed on the Mungo Homes website
Information last verified by Jome: Today at 6:01 AM (March 5, 2026)
Book your tour. Save an average of $18,473. We'll handle the rest.
We collect exclusive builder offers, book your tours, and support you from start to housewarming.
- Confirmed tours
- Get matched & compare top deals
- Expert help, no pressure
- No added fees
Estimated value based on Jome data, T&C apply
Home details
- Property status:
- Under construction
- Size:
- 1,837 sqft
- Stories:
- 2
- Beds:
- 3
- Baths:
- 2
- Half baths:
- 1
- Garage spaces:
- 2
Construction details
- Builder Name:
- Mungo Homes
- Completion Date:
- June, 2026
Home features & finishes
- Garage/Parking:
- Garage
- Rooms:
- Primary Bedroom Upstairs

Get a consultation with our New Homes Expert
- See how your home builds wealth
- Plan your home-buying roadmap
- Discover hidden gems

Community details
Central Creek
by Mungo Homes, Goose Creek, SC
- 18 homes
- 7 plans
- 1,476 - 1,973 sqft
View Central Creek details
More homes in Central Creek
- Home at address 209 Central Creek Dr, Goose Creek, SC 29445

Bartow
$359,000
- 3 bd
- 2.5 ba
- 1,476 sqft
209 Central Creek Dr, Goose Creek, SC 29445
- Home at address 213 Central Creek Dr, Goose Creek, SC 29445

Bartow
$364,000
- 3 bd
- 2.5 ba
- 1,476 sqft
213 Central Creek Dr, Goose Creek, SC 29445
- Home at address 215 Central Creek Dr, Goose Creek, SC 29445

Dawson - Genesis Value Collection
$365,000
- 3 bd
- 2.5 ba
- 1,617 sqft
215 Central Creek Dr, Goose Creek, SC 29445
- Home at address 226 Central Creek Dr, Goose Creek, SC 29445

Dawson
$369,750
- 3 bd
- 2.5 ba
- 1,617 sqft
226 Central Creek Dr, Goose Creek, SC 29445
- Home at address 221 Central Creek Dr, Goose Creek, SC 29445

Dillon
$382,000
- 3 bd
- 2.5 ba
- 1,648 sqft
221 Central Creek Dr, Goose Creek, SC 29445
- Home at address 218 Central Creek Dr, Goose Creek, SC 29445

Dillon
$389,000
- 3 bd
- 2.5 ba
- 1,640 sqft
218 Central Creek Dr, Goose Creek, SC 29445
Floor plans in Central Creek
- View details for Bartow - Genesis Value Collection

Bartow - Genesis Value Collection
$357,000+- 3 bd
- 2.5 ba
- 1,476 sqft
- View details for Dawson - Genesis Value Collection

Dawson - Genesis Value Collection
$362,000+- 3 bd
- 2.5 ba
- 1,617 sqft
About the builder - Mungo Homes
Neighborhood
Home address
- City:
- Goose Creek
- County:
- Berkeley
- Zip Code:
- 29445
Schools in Berkeley County School District
GreatSchools’ Summary Rating calculation is based on 4 of the school’s themed ratings, including test scores, student/academic progress, college readiness, and equity. This information should only be used as a reference. Jome is not affiliated with GreatSchools and does not endorse or guarantee this information. Please reach out to schools directly to verify all information and enrollment eligibility. Data provided by GreatSchools.org © 2025
Places of interest
Getting around
Air quality
Noise level
A Soundscore™ rating is a number between 50 (very loud) and 100 (very quiet) that tells you how loud a location is due to environmental noise.

Considering this home?
Our expert will guide your tour, in-person or virtual
Need more information?
Text or call (888) 488-9243
Financials
Estimated monthly payment
Let us help you find your dream home
How many bedrooms are you looking for?
Similar homes nearby
Recently added communities in this area
Nearby communities in Goose Creek
New homes in nearby cities
More New Homes in Goose Creek, SC
- Jome
- New homes search
- South Carolina
- Charleston Metropolitan Area
- Berkeley County
- Goose Creek
- Central Creek
- 225 Central Creek Dr, Goose Creek, SC 29445































