








Book your tour. Save an average of $18,473. We'll handle the rest.
We collect exclusive builder offers, book your tours, and support you from start to housewarming.
- Confirmed tours
- Get matched & compare top deals
- Expert help, no pressure
- No added fees
Estimated value based on Jome data, T&C apply








Why tour with Jome?
- No pressure toursTour at your own pace with no sales pressure
- Expert guidanceGet insights from our home buying experts
- Exclusive accessSee homes and deals not available elsewhere
Jome is featured in
- Single-Family
- Ready by July 2026
- $228.82/sqft
- 1 days on Jome
Home description
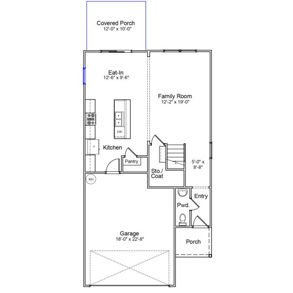
Nestled in Central Creek, a brand-new boutique community in the heart of Goose Creek, the Highland plan is a beautifully designed two-story home featuring four bedrooms and two-and-one-half bathrooms. Inside, you’ll find an open-concept layout enhanced by crown molding and luxury vinyl plank flooring throughout the main level. The spacious great room flows effortlessly into the eat-in dining area and stylish kitchen, complete with a large island and a well-placed pantry, conveniently located next to an additional walk-in storage closet—offering plenty of functional space. This home is filled with thoughtful upgrades, including quartz countertops, upgraded cabinetry, wood tread stairs, and open wood spindle accents. Step outside to unwind on the covered back porch overlooking your yard—an ideal setting for relaxing or hosting guests. Upstairs, all bedrooms are conveniently situated near the laundry room for added ease. The primary suite features a generous walk-in closet and a spa-inspired bath with a tiled walk-in shower and linen closet.
May also be listed on the Mungo Homes website
Information last verified by Jome: Today at 5:47 AM (April 1, 2026)
Book your tour. Save an average of $18,473. We'll handle the rest.
We collect exclusive builder offers, book your tours, and support you from start to housewarming.
- Confirmed tours
- Get matched & compare top deals
- Expert help, no pressure
- No added fees
Estimated value based on Jome data, T&C apply
Home details
- Property status:
- Under construction
- Size:
- 1,818 sqft
- Stories:
- 2
- Beds:
- 4
- Baths:
- 2
- Half baths:
- 1
- Garage spaces:
- 2
Construction details
- Builder Name:
- Mungo Homes
- Completion Date:
- July, 2026
Home features & finishes
- Garage/Parking:
- Garage
- Rooms:
- Primary Bedroom Upstairs

Get a consultation with our New Homes Expert
- See how your home builds wealth
- Plan your home-buying roadmap
- Discover hidden gems

Community details
Central Creek
by Mungo Homes, Goose Creek, SC
- 19 homes
- 7 plans
- 1,476 - 1,973 sqft
View Central Creek details
More homes in Central Creek
- Home at address 220 Central Creek Dr, Goose Creek, SC 29445

Highland
$409,000
- 4 bd
- 2.5 ba
- 1,833 sqft
220 Central Creek Dr, Goose Creek, SC 29445
- Home at address 222 Central Creek Dr, Goose Creek, SC 29445

Kershaw
$410,000
- 4 bd
- 2.5 ba
- 1,973 sqft
222 Central Creek Dr, Goose Creek, SC 29445
- Home at address 228 Central Creek Dr, Goose Creek, SC 29445

Highland
$421,000
- 4 bd
- 2.5 ba
- 1,833 sqft
228 Central Creek Dr, Goose Creek, SC 29445
- Home at address 112 Old Creek Ct, Goose Creek, SC 29445

Highland
$424,000
- 4 bd
- 2.5 ba
- 1,818 sqft
112 Old Creek Ct, Goose Creek, SC 29445
Floor plans in Central Creek
- View details for Bartow - Genesis Value Collection

Bartow - Genesis Value Collection
$357,000+- 3 bd
- 2.5 ba
- 1,476 sqft
- View details for Dawson - Genesis Value Collection

Dawson - Genesis Value Collection
$362,000+- 3 bd
- 2.5 ba
- 1,617 sqft
About the builder - Mungo Homes
Neighborhood
Home address
- City:
- Goose Creek
- County:
- Berkeley
- Zip Code:
- 29445
Schools in Berkeley County School District
GreatSchools’ Summary Rating calculation is based on 4 of the school’s themed ratings, including test scores, student/academic progress, college readiness, and equity. This information should only be used as a reference. Jome is not affiliated with GreatSchools and does not endorse or guarantee this information. Please reach out to schools directly to verify all information and enrollment eligibility. Data provided by GreatSchools.org © 2025
Places of interest
Getting around
Air quality
Noise level
A Soundscore™ rating is a number between 50 (very loud) and 100 (very quiet) that tells you how loud a location is due to environmental noise.

Considering this home?
Our expert will guide your tour, in-person or virtual
Need more information?
Text or call (888) 545-5198
Financials
Estimated monthly payment
Let us help you find your dream home
How many bedrooms are you looking for?
Similar homes nearby
Recently added communities in this area
Nearby communities in Goose Creek
New homes in nearby cities
More New Homes in Goose Creek, SC
- Jome
- New homes search
- South Carolina
- Charleston Metropolitan Area
- Berkeley County
- Goose Creek
- Central Creek
- 231 Central Creek Dr, Goose Creek, SC 29445





























