








Book your tour. Save an average of $18,473. We'll handle the rest.
We collect exclusive builder offers, book your tours, and support you from start to housewarming.
- Confirmed tours
- Get matched & compare top deals
- Expert help, no pressure
- No added fees
Estimated value based on Jome data, T&C apply








Why tour with Jome?
- No pressure toursTour at your own pace with no sales pressure
- Expert guidanceGet insights from our home buying experts
- Exclusive accessSee homes and deals not available elsewhere
Jome is featured in
- Single-Family
- Ready by August 2026
- $229.89/sqft
- 1 days on Jome
Builder deals available
- TOP-TIER DEAL
VA 30 Year Fixed
$7,900 est. value- Rate buydown from 3.49% (1 year) with 4.733% APR
FHA 30 Year Fixed
$830 est. value- Rate buydown from 3.49% (1 year) with 5.422% APR and 3.5% down payment
Deals may change and are not guaranteed. Some deals apply to specific homes or plans. Not a financing offer. Eligibility varies by lender. Please verify details.
Home description
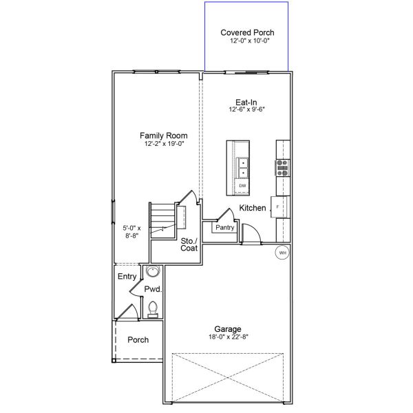
Located in Central Creek, a brand-new boutique community in the heart of Goose Creek, this Highland plan sits on a homesite that backs up to a peaceful pond and is designed for comfortable, everyday living. This thoughtfully crafted Hardie Plank exterior, two-story home features four bedrooms and two-and-one-half baths with a warm, welcoming feel throughout. The open-concept first floor showcases crown molding and luxury vinyl plank flooring, creating a seamless space for relaxing or entertaining. The spacious great room flows into a bright eat-in area and a stylish kitchen with a large island and corner pantry—perfect for gathering with loved ones and friends. Enjoy beautiful upgrades including quartz countertops and enhanced cabinetry. Step outside to the covered back porch, an ideal spot for morning coffee or unwinding in the evening. Upstairs, wood-tread stairs lead to all bedrooms, conveniently located near the laundry room. The private primary suite offers a trayed ceiling, generous walk-in closet, and spa-inspired bath with a tiled walk-in shower and linen storage for added comfort and convenience.
May also be listed on the Mungo Homes website
Information last verified by Jome: Yesterday at 6:23 AM (April 21, 2026)
Book your tour. Save an average of $18,473. We'll handle the rest.
We collect exclusive builder offers, book your tours, and support you from start to housewarming.
- Confirmed tours
- Get matched & compare top deals
- Expert help, no pressure
- No added fees
Estimated value based on Jome data, T&C apply
Home details
- Property status:
- Under construction
- Size:
- 1,840 sqft
- Stories:
- 2
- Beds:
- 4
- Baths:
- 2
- Half baths:
- 1
- Garage spaces:
- 2
Construction details
- Builder Name:
- Mungo Homes
- Completion Date:
- August, 2026
Home features & finishes
- Garage/Parking:
- Garage
- Rooms:
- Primary Bedroom Upstairs

Get a consultation with our New Homes Expert
- See how your home builds wealth
- Plan your home-buying roadmap
- Discover hidden gems

Community details
Central Creek
by Mungo Homes, Goose Creek, SC
- 21 homes
- 7 plans
- 1,476 - 1,951 sqft
View Central Creek details
More homes in Central Creek
- Home at address 231 Central Creek Dr, Goose Creek, SC 29445

Highland
Savings$416,000
- 4 bd
- 2.5 ba
- 1,818 sqft
231 Central Creek Dr, Goose Creek, SC 29445
- Home at address 220 Central Creek Dr, Goose Creek, SC 29445

Highland
Savings$417,000
- 4 bd
- 2.5 ba
- 1,833 sqft
220 Central Creek Dr, Goose Creek, SC 29445
- Home at address 228 Central Creek Dr, Goose Creek, SC 29445

Highland
Savings$421,000
- 4 bd
- 2.5 ba
- 1,833 sqft
228 Central Creek Dr, Goose Creek, SC 29445
- Home at address 239 Central Creek Dr, Goose Creek, SC 29445

Kershaw
Savings$422,500
- 4 bd
- 2.5 ba
- 1,951 sqft
239 Central Creek Dr, Goose Creek, SC 29445
- Home at address 112 Old Creek Ct, Goose Creek, SC 29445

Highland
Savings$424,000
- 4 bd
- 2.5 ba
- 1,818 sqft
112 Old Creek Ct, Goose Creek, SC 29445
- Home at address 113 Old Creek Ct, Goose Creek, SC 29445

Kershaw
Savings$431,000
- 4 bd
- 2.5 ba
- 1,951 sqft
113 Old Creek Ct, Goose Creek, SC 29445
Floor plans in Central Creek
- View details for Bartow - Genesis Value Collection

Bartow - Genesis Value Collection
$357,000+- 3 bd
- 2.5 ba
- 1,476 sqft
- View details for Dawson - Genesis Value Collection

Dawson - Genesis Value Collection
$362,000+- 3 bd
- 2.5 ba
- 1,617 sqft
About the builder - Mungo Homes
Neighborhood
Home address
- City:
- Goose Creek
- County:
- Berkeley
- Zip Code:
- 29445
Schools in Berkeley County School District
GreatSchools’ Summary Rating calculation is based on 4 of the school’s themed ratings, including test scores, student/academic progress, college readiness, and equity. This information should only be used as a reference. Jome is not affiliated with GreatSchools and does not endorse or guarantee this information. Please reach out to schools directly to verify all information and enrollment eligibility. Data provided by GreatSchools.org © 2025
Places of interest
Getting around
Air quality
Noise level
A Soundscore™ rating is a number between 50 (very loud) and 100 (very quiet) that tells you how loud a location is due to environmental noise.

Considering this home?
Our expert will guide your tour, in-person or virtual
Need more information?
Text or call (888) 545-5198
Financials
Estimated monthly payment
Let us help you find your dream home
How many bedrooms are you looking for?
Similar homes nearby
Recently added communities in this area
Nearby communities in Goose Creek
New homes in nearby cities
More New Homes in Goose Creek, SC
- Jome
- New homes search
- South Carolina
- Charleston Metropolitan Area
- Berkeley County
- Goose Creek
- Central Creek
- 248 Central Creek Dr, Goose Creek, SC 29445































