
















- 3 bd
- 2.5 ba
- 1,818 sqft
4014 Arafel Dr, Lexington, SC 29073
- Single-Family
- $142.97/sqft
- 156 days on Jome
New Homes for Sale Near 4014 Arafel Dr, Lexington, SC 29073
About this Home
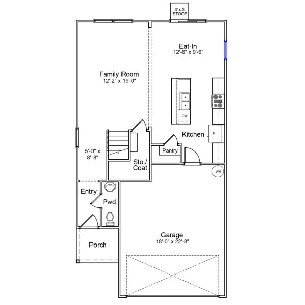
Experience a life of luxury in Bluefield! The Highland plan is a two-story, three-bedroom, two-and-one-half bathroom home with walk-in closets in all bedrooms. Upon entry you are greeted by the open great room, eat-in, and kitchen with an island. A corner pantry and closet under the stairs provide ample space for storage. Upstairs you will find all bedrooms, a shared secondary bathroom, and a laundry room. The primary suite includes a linen closet in the bathroom as well as a spacious walk-in closet. A loft separates the two secondary bedrooms from the primary and allows for a second upstairs living space. Call for more information!
May also be listed on the Mungo Homes website
Information last verified by Jome: Thursday at 5:57 AM (November 20, 2025)
Home details
- Property status:
- Sold
- Size:
- 1,818 sqft
- Stories:
- 2
- Beds:
- 3
- Baths:
- 2
- Half baths:
- 1
- Garage spaces:
- 2
Construction details
- Builder Name:
- Mungo Homes
- Completion Date:
- February, 2026
Home features & finishes
- Garage/Parking:
- Garage
- Rooms:
- Primary Bedroom Upstairs

Community details
Bluefield
by Mungo Homes, Lexington, SC
- 20 homes
- 12 plans
- 1,148 - 2,822 sqft
View Bluefield details
More homes in Bluefield
- Home at address 3380 Matrim Wy, Lexington, SC 29073

$226,820
Under construction- 3 bd
- 2 ba
- 1,148 sqft
3380 Matrim Wy, Lexington, SC 29073
- Home at address 3921 Golden Crane Pass, Lexington, SC 29073

$241,000
Under construction- 3 bd
- 2.5 ba
- 1,476 sqft
3921 Golden Crane Pass, Lexington, SC 29073
- Home at address 3914 Golden Crane Pass, Lexington, SC 29073

$248,932
Under construction- 3 bd
- 2.5 ba
- 1,617 sqft
3914 Golden Crane Pass, Lexington, SC 29073
- Home at address 3352 Matrim Wy, Lexington, SC 29073

$253,166
Under construction- 3 bd
- 2.5 ba
- 1,617 sqft
3352 Matrim Wy, Lexington, SC 29073
- Home at address 4023 Arafel Dr, Lexington, SC 29073

$254,739
Under construction- 3 bd
- 2.5 ba
- 1,617 sqft
4023 Arafel Dr, Lexington, SC 29073
- Home at address 3913 Golden Crane Pass, Lexington, SC 29073

$269,000
Under construction- 4 bd
- 2.5 ba
- 1,726 sqft
3913 Golden Crane Pass, Lexington, SC 29073
Floor plans in Bluefield
- View details for Baker - Genesis Value Collection

Baker - Genesis Value Collection
$212,000+- 3 bd
- 2 ba
- 1,148 sqft
- View details for Bartow - Genesis Value Collection

Bartow - Genesis Value Collection
$230,000+- 3 bd
- 2.5 ba
- 1,476 sqft
About the builder - Mungo Homes
Neighborhood
Home address
Schools in Lexington School District 2
GreatSchools’ Summary Rating calculation is based on 4 of the school’s themed ratings, including test scores, student/academic progress, college readiness, and equity. This information should only be used as a reference. Jome is not affiliated with GreatSchools and does not endorse or guarantee this information. Please reach out to schools directly to verify all information and enrollment eligibility. Data provided by GreatSchools.org © 2025
Places of interest
Getting around
Air quality
Noise level
A Soundscore™ rating is a number between 50 (very loud) and 100 (very quiet) that tells you how loud a location is due to environmental noise.
Financials
Nearby communities in Lexington
Homes in Lexington by Mungo Homes
Recently added communities in this area
Other Builders in Lexington, SC
Nearby sold homes
New homes in nearby cities
More New Homes in Lexington, SC
- Jome
- New homes search
- South Carolina
- Lexington County
- Lexington
- Bluefield
- 4014 Arafel Dr, Lexington, SC 29073




































































