








Book your tour. Save an average of $18,473. We'll handle the rest.
We collect exclusive builder offers, book your tours, and support you from start to housewarming.
- Confirmed tours
- Get matched & compare top deals
- Expert help, no pressure
- No added fees
Estimated value based on Jome data, T&C apply









Why tour with Jome?
- No pressure toursTour at your own pace with no sales pressure
- Expert guidanceGet insights from our home buying experts
- Exclusive accessSee homes and deals not available elsewhere
Jome is featured in
- Single-Family
- Ready by June 2026
- $184.17/sqft
- 49 days on Jome
Home description
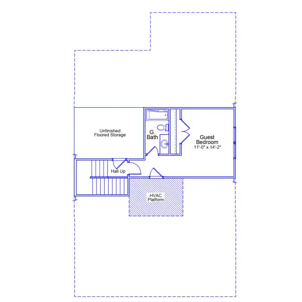
Welcome to homesite 57 at Fieldstone featuring the Lawrence floor plan. This new construction home offers convenient main-level living with the primary suite and main living areas on the first floor. Upstairs, you’ll find a private guest suite along with additional floored storage space - perfect for visitors, hobbies, or seasonal storage. The kitchen features white cabinetry, granite countertops, and a GE stainless steel appliance package including a gas range. The primary suite offers dual vanities, quartz countertops, and a spacious five-foot shower for a comfortable retreat. Enjoy outdoor living on the covered back porch, plus the convenience of an automatic irrigation system while the HOA takes care of the lawn maintenance for you. Residents of Fieldstone enjoy fantastic community amenities including a pool, clubhouse, and sidewalks that make morning walks or evening strolls a pleasure. Come check out all that Fieldstone has to offer!
May also be listed on the Mungo Homes website
Information last verified by Jome: Yesterday at 6:04 AM (April 30, 2026)
Book your tour. Save an average of $18,473. We'll handle the rest.
We collect exclusive builder offers, book your tours, and support you from start to housewarming.
- Confirmed tours
- Get matched & compare top deals
- Expert help, no pressure
- No added fees
Estimated value based on Jome data, T&C apply
Home details
- Property status:
- Under construction
- Size:
- 1,819 sqft
- Stories:
- 1
- Beds:
- 3
- Baths:
- 3
- Garage spaces:
- 2
Construction details
- Builder Name:
- Mungo Homes
- Completion Date:
- June, 2026
Home features & finishes
- Garage/Parking:
- Garage
- Rooms:
- Primary Bedroom On MainPrimary Bedroom Downstairs

Get a consultation with our New Homes Expert
- See how your home builds wealth
- Plan your home-buying roadmap
- Discover hidden gems

Community details
Fieldstone
by Mungo Homes, Lexington, NC
- 24 homes
- 12 plans
- 1,398 - 3,578 sqft
View Fieldstone details
More homes in Fieldstone
- Home at address 197 Candytuft Ct, Lexington, NC 27295

Howard
$325,000
- 3 bd
- 2 ba
- 1,721 sqft
197 Candytuft Ct, Lexington, NC 27295
- Home at address 181 Candytuft Ct, Lexington, NC 27295

Ford
$335,000
- 4 bd
- 3 ba
- 1,902 sqft
181 Candytuft Ct, Lexington, NC 27295
- Home at address 189 Candytuft Ct, Lexington, NC 27295

Lawrence
$345,000
- 3 bd
- 3 ba
- 1,978 sqft
189 Candytuft Ct, Lexington, NC 27295
- Home at address 294 Yarrow Dr, Lexington, NC 27295

Jacob
$350,000
- 3 bd
- 2 ba
- 1,808 sqft
294 Yarrow Dr, Lexington, NC 27295
- Home at address 248 Yarrow Dr, Lexington, NC 27295

Lander
$355,000
- 3 bd
- 2 ba
- 1,950 sqft
248 Yarrow Dr, Lexington, NC 27295
- Home at address 244 Yarrow Dr, Lexington, NC 27295

Jacob
$360,000
- 3 bd
- 2 ba
- 1,653 sqft
244 Yarrow Dr, Lexington, NC 27295
Floor plans in Fieldstone
- View details for Lander - Vanguard Collection

Lander - Vanguard Collection
$320,000+- 3 bd
- 2 ba
- 1,818 sqft
About the builder - Mungo Homes
Neighborhood
Home address
Schools in Davidson County Schools
GreatSchools’ Summary Rating calculation is based on 4 of the school’s themed ratings, including test scores, student/academic progress, college readiness, and equity. This information should only be used as a reference. Jome is not affiliated with GreatSchools and does not endorse or guarantee this information. Please reach out to schools directly to verify all information and enrollment eligibility. Data provided by GreatSchools.org © 2025
Places of interest
Getting around
Air quality
Noise level
A Soundscore™ rating is a number between 50 (very loud) and 100 (very quiet) that tells you how loud a location is due to environmental noise.

Considering this home?
Our expert will guide your tour, in-person or virtual
Need more information?
Text or call (888) 545-5198
Financials
Estimated monthly payment
Let us help you find your dream home
How many bedrooms are you looking for?
Similar homes nearby
Recently added communities in this area
Nearby communities in Lexington
New homes in nearby cities
More New Homes in Lexington, NC
- Jome
- New homes search
- North Carolina
- Davidson County
- Lexington
- Fieldstone
- 205 Candytuft Ct, Lexington, NC 27295
































