








Book your tour. Save an average of $18,473. We'll handle the rest.
We collect exclusive builder offers, book your tours, and support you from start to housewarming.
- Confirmed tours
- Get matched & compare top deals
- Expert help, no pressure
- No added fees
Estimated value based on Jome data, T&C apply









Why tour with Jome?
- No pressure toursTour at your own pace with no sales pressure
- Expert guidanceGet insights from our home buying experts
- Exclusive accessSee homes and deals not available elsewhere
Jome is featured in
- Single-Family
- Ready by June 2026
- $175.69/sqft
- 7 days on Jome
Builder deals available
- TOP-TIER DEAL
VA 30 Year Fixed
$8,280 est. value- Rate buydown from 3.49% (1 year) with 4.733% APR
FHA 30 Year Fixed
$870 est. value- Rate buydown from 3.49% (1 year) with 5.422% APR and 3.5% down payment
Deals may change and are not guaranteed. Some deals apply to specific homes or plans. Not a financing offer. Eligibility varies by lender. Please verify details.
Home description
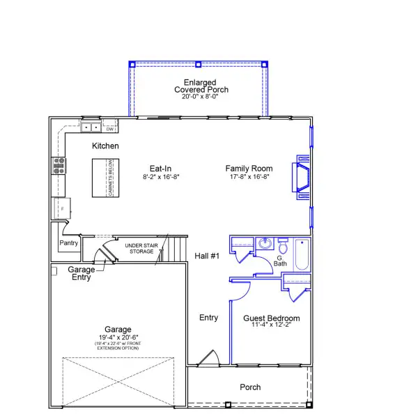
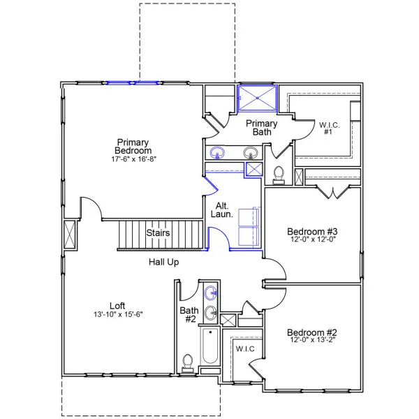
Welcome to the Mulberry floor plan, designed with a functional open-concept layout and thoughtful upgrades throughout. The kitchen features a gas cooktop, double wall ovens, stainless steel appliances, and ample cabinet space, flowing seamlessly into the main living area with a cozy fireplace. An extended covered porch offers additional space for outdoor living, while a guest suite on the main floor and flexible layout provide versatility for a variety of needs. The primary suite includes a tiled shower with frameless glass for a spa-like feel. Additional features include a full irrigation system for easy lawn maintenance. Residents will also enjoy access to the community pool. Come see all that Fieldstone has to offer!
May also be listed on the Mungo Homes website
Information last verified by Jome: Today at 6:06 AM (April 13, 2026)
Book your tour. Save an average of $18,473. We'll handle the rest.
We collect exclusive builder offers, book your tours, and support you from start to housewarming.
- Confirmed tours
- Get matched & compare top deals
- Expert help, no pressure
- No added fees
Estimated value based on Jome data, T&C apply
Home details
- Property status:
- Under construction
- Size:
- 2,476 sqft
- Stories:
- 2
- Beds:
- 4
- Baths:
- 3
- Garage spaces:
- 2
Construction details
- Builder Name:
- Mungo Homes
- Completion Date:
- June, 2026
Home features & finishes
- Garage/Parking:
- Garage
- Rooms:
- Primary Bedroom Upstairs

Get a consultation with our New Homes Expert
- See how your home builds wealth
- Plan your home-buying roadmap
- Discover hidden gems

Community details
Fieldstone
by Mungo Homes, Lexington, NC
- 26 homes
- 12 plans
- 1,398 - 3,585 sqft
View Fieldstone details
More homes in Fieldstone
- Home at address 180 Candytuft Ct, Lexington, NC 27295

Ford
Savings$330,000
- 4 bd
- 3 ba
- 1,707 sqft
180 Candytuft Ct, Lexington, NC 27295
- Home at address 181 Candytuft Ct, Lexington, NC 27295

Ford
Savings$335,000
- 4 bd
- 3 ba
- 1,902 sqft
181 Candytuft Ct, Lexington, NC 27295
- Home at address 196 Rock Cress Dr, Lexington, NC 27295

Meriwether
Savings$346,000
- 4 bd
- 3 ba
- 2,260 sqft
196 Rock Cress Dr, Lexington, NC 27295
- Home at address 225 Rock Cress Dr, Lexington, NC 27295

Pickens
Savings$354,000
- 4 bd
- 2.5 ba
- 2,440 sqft
225 Rock Cress Dr, Lexington, NC 27295
- Home at address 430 Yarrow Dr, Lexington, NC 27295

Roanoke
Savings$441,623
- 4 bd
- 3.5 ba
- 2,708 sqft
430 Yarrow Dr, Lexington, NC 27295
- Home at address 191 Lavender Ln, Lexington, NC 27295

Peachtree
Savings$445,000
- 4 bd
- 3.5 ba
- 2,740 sqft
191 Lavender Ln, Lexington, NC 27295
Floor plans in Fieldstone
- View details for Nantahala II - Vanguard Collection

Nantahala II - Vanguard Collection
$375,000+- 4 bd
- 2.5 ba
- 2,450 sqft
- View details for Roanoke - Vanguard Collection

Roanoke - Vanguard Collection
$380,000+- 4 bd
- 2.5 ba
- 2,708 sqft
About the builder - Mungo Homes
Neighborhood
Home address
Schools in Davidson County Schools
GreatSchools’ Summary Rating calculation is based on 4 of the school’s themed ratings, including test scores, student/academic progress, college readiness, and equity. This information should only be used as a reference. Jome is not affiliated with GreatSchools and does not endorse or guarantee this information. Please reach out to schools directly to verify all information and enrollment eligibility. Data provided by GreatSchools.org © 2025
Places of interest
Getting around
Air quality
Noise level
A Soundscore™ rating is a number between 50 (very loud) and 100 (very quiet) that tells you how loud a location is due to environmental noise.

Considering this home?
Our expert will guide your tour, in-person or virtual
Need more information?
Text or call (888) 545-5198
Financials
Estimated monthly payment
Let us help you find your dream home
How many bedrooms are you looking for?
Similar homes nearby
Recently added communities in this area
Nearby communities in Lexington
New homes in nearby cities
More New Homes in Lexington, NC
- Jome
- New homes search
- North Carolina
- Davidson County
- Lexington
- Fieldstone
- 414 Yarrow Dr, Lexington, NC 27295































