









Book your tour. Save an average of $18,473. We'll handle the rest.
We collect exclusive builder offers, book your tours, and support you from start to housewarming.
- Confirmed tours
- Get matched & compare top deals
- Expert help, no pressure
- No added fees
Estimated value based on Jome data, T&C apply



























Why tour with Jome?
- No pressure toursTour at your own pace with no sales pressure
- Expert guidanceGet insights from our home buying experts
- Exclusive accessSee homes and deals not available elsewhere
Jome is featured in
- Single-Family
- Ready by June 2026
- $145.23/sqft
- 5 days on Jome
Builder deals available
- TOP-TIER DEAL
VA 30 Year Fixed
$9,700 est. value- Rate buydown from 3.49% (1 year) with 4.733% APR
FHA 30 Year Fixed
$1,010 est. value- Rate buydown from 3.49% (1 year) with 5.422% APR and 3.5% down payment
Deals may change and are not guaranteed. Some deals apply to specific homes or plans. Not a financing offer. Eligibility varies by lender. Please verify details.
Home description
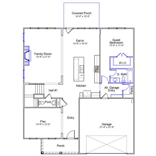
Step into the Beautiful Webster II plan! This five-bedroom, four-and-a-half-bath home offers a flexible layout with a dedicated guest bedroom and full bath, plus a private office/flex space on the main level. The open-concept living room with a cozy fireplace that flows seamlessly into the gourmet kitchen, complete with quartz countertops, upgraded cabinetry, herringbone tile backsplash, and stainless-steel appliances including a gas cooktop and double wall ovens. Upstairs, you’ll find spacious secondary bedrooms plus a versatile bonus room. The primary suite showcases a large, tiled shower with frameless glass door, dual vanities, and upgraded finishes. Enjoy outdoor living year-round on the covered porch, overlooking a fully sodded yard equipped with an irrigation system. Additional highlights include luxury vinyl plank flooring in main living areas, upgraded lighting and hardware in a modern black finish, and a two-car garage. Come see all that Fieldstone has to offer!
May also be listed on the Mungo Homes website
Information last verified by Jome: Today at 5:59 AM (April 19, 2026)
Book your tour. Save an average of $18,473. We'll handle the rest.
We collect exclusive builder offers, book your tours, and support you from start to housewarming.
- Confirmed tours
- Get matched & compare top deals
- Expert help, no pressure
- No added fees
Estimated value based on Jome data, T&C apply
Home details
- Property status:
- Under construction
- Size:
- 3,578 sqft
- Stories:
- 2
- Beds:
- 5
- Baths:
- 4
- Half baths:
- 1
- Garage spaces:
- 2
Construction details
- Builder Name:
- Mungo Homes
- Completion Date:
- June, 2026
Home features & finishes
- Garage/Parking:
- Garage
- Rooms:
- Primary Bedroom Upstairs

Get a consultation with our New Homes Expert
- See how your home builds wealth
- Plan your home-buying roadmap
- Discover hidden gems

Community details
Fieldstone
by Mungo Homes, Lexington, NC
- 26 homes
- 12 plans
- 1,398 - 3,585 sqft
View Fieldstone details
More homes in Fieldstone
- Home at address 261 Lavender Ln, Lexington, NC 27295

Warwick II
Savings$500,000
- 5 bd
- 4 ba
- 3,307 sqft
261 Lavender Ln, Lexington, NC 27295
- Home at address 529 Yarrow Dr, Lexington, NC 27295

Webster II
Savings$530,000
- 5 bd
- 4.5 ba
- 3,585 sqft
529 Yarrow Dr, Lexington, NC 27295
Floor plans in Fieldstone
- View details for Savannah - Vanguard Collection

Savannah - Vanguard Collection
$385,000+- 5 bd
- 2.5 ba
- 2,886 sqft
About the builder - Mungo Homes
Neighborhood
Home address
Schools in Davidson County Schools
GreatSchools’ Summary Rating calculation is based on 4 of the school’s themed ratings, including test scores, student/academic progress, college readiness, and equity. This information should only be used as a reference. Jome is not affiliated with GreatSchools and does not endorse or guarantee this information. Please reach out to schools directly to verify all information and enrollment eligibility. Data provided by GreatSchools.org © 2025
Places of interest
Getting around
Air quality
Noise level
A Soundscore™ rating is a number between 50 (very loud) and 100 (very quiet) that tells you how loud a location is due to environmental noise.

Considering this home?
Our expert will guide your tour, in-person or virtual
Need more information?
Text or call (888) 545-5198
Financials
Estimated monthly payment
Let us help you find your dream home
How many bedrooms are you looking for?
Similar homes nearby
Recently added communities in this area
Nearby communities in Lexington
New homes in nearby cities
More New Homes in Lexington, NC
- Jome
- New homes search
- North Carolina
- Davidson County
- Lexington
- Fieldstone
- 413 Yarrow Dr, Lexington, NC 27295


























