








Book your tour. Save an average of $18,473. We'll handle the rest.
We collect exclusive builder offers, book your tours, and support you from start to housewarming.
- Confirmed tours
- Get matched & compare top deals
- Expert help, no pressure
- No added fees
Estimated value based on Jome data, T&C apply

































Why tour with Jome?
- No pressure toursTour at your own pace with no sales pressure
- Expert guidanceGet insights from our home buying experts
- Exclusive accessSee homes and deals not available elsewhere
Jome is featured in
- Single-Family
- Quick move-in
- $176.13/sqft
- 168 days on Jome
Builder deals available
- TOP-TIER DEAL
VA 30 Year Fixed
$6,180 est. value- Rate buydown from 3.49% (1 year) with 4.733% APR
FHA 30 Year Fixed
$540 est. value- Rate buydown from 3.49% (1 year) with 5.422% APR and 3.5% down payment
Deals may change and are not guaranteed. Some deals apply to specific homes or plans. Not a financing offer. Eligibility varies by lender. Please verify details.
Home description
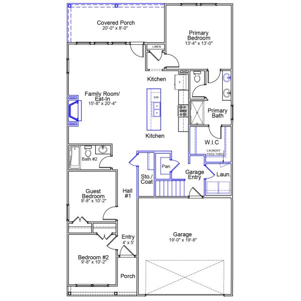
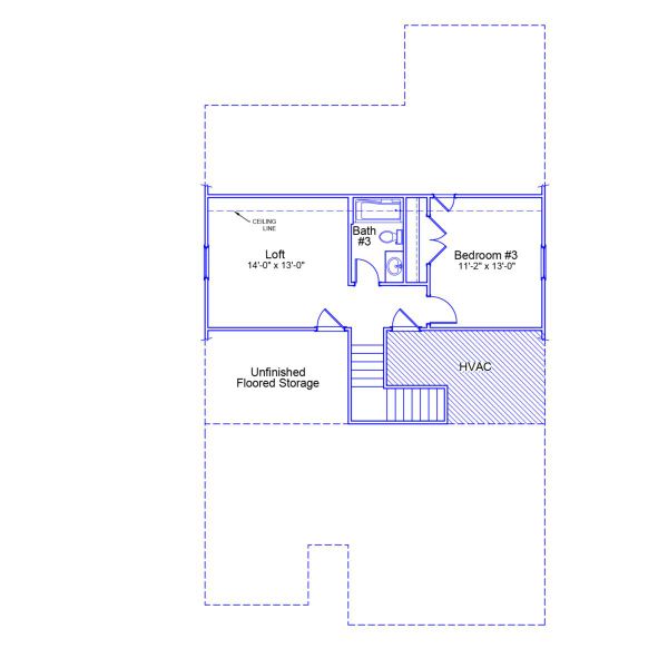
The Ford is a stunning four-bedroom, three-bath home featuring luxury vinyl plank flooring throughout the main living areas and baths. The kitchen offers beautiful quartz countertops, a gas stove, and plenty of space for meal prep, while the great room includes a cozy gas log fireplace perfect for relaxing or entertaining. This home also features a convenient main-level laundry room, covered back porch, and a spacious loft upstairs that provides additional living space. The bedrooms are comfortably carpeted, and there’s an unfinished floored storage space offering extra room for seasonal items or hobbies. A two-car garage provides even more convenience. Located in a community where yard maintenance is included in the HOA, this home allows you to enjoy a low-maintenance lifestyle with plenty of comfort and style.
May also be listed on the Mungo Homes website
Information last verified by Jome: Today at 5:55 AM (April 21, 2026)
Book your tour. Save an average of $18,473. We'll handle the rest.
We collect exclusive builder offers, book your tours, and support you from start to housewarming.
- Confirmed tours
- Get matched & compare top deals
- Expert help, no pressure
- No added fees
Estimated value based on Jome data, T&C apply
Home details
- Property status:
- Move-in ready
- Size:
- 1,902 sqft
- Stories:
- 1
- Beds:
- 4
- Baths:
- 3
- Garage spaces:
- 2
Construction details
- Builder Name:
- Mungo Homes
- Completion Date:
- February, 2026
Home features & finishes
- Garage/Parking:
- Garage
- Rooms:
- Primary Bedroom On MainPrimary Bedroom Downstairs

Get a consultation with our New Homes Expert
- See how your home builds wealth
- Plan your home-buying roadmap
- Discover hidden gems

Community details
Fieldstone
by Mungo Homes, Lexington, NC
- 27 homes
- 12 plans
- 1,398 - 3,585 sqft
View Fieldstone details
More homes in Fieldstone
- Home at address 196 Rock Cress Dr, Lexington, NC 27295

Meriwether
Savings$346,000
- 4 bd
- 3 ba
- 2,260 sqft
196 Rock Cress Dr, Lexington, NC 27295
- Home at address 225 Rock Cress Dr, Lexington, NC 27295

Pickens
Savings$354,000
- 4 bd
- 2.5 ba
- 2,440 sqft
225 Rock Cress Dr, Lexington, NC 27295
- Home at address 414 Yarrow Dr, Lexington, NC 27295

Mulberry
Savings$435,000
- 4 bd
- 3 ba
- 2,476 sqft
414 Yarrow Dr, Lexington, NC 27295
- Home at address 231 Lavender Ln, Lexington, NC 27295

Mulberry
Savings$440,000
- 4 bd
- 3 ba
- 2,593 sqft
231 Lavender Ln, Lexington, NC 27295
- Home at address 430 Yarrow Dr, Lexington, NC 27295

Roanoke
Savings$441,623
- 4 bd
- 3.5 ba
- 2,708 sqft
430 Yarrow Dr, Lexington, NC 27295
- Home at address 191 Lavender Ln, Lexington, NC 27295

Peachtree
Savings$445,000
- 4 bd
- 3.5 ba
- 2,740 sqft
191 Lavender Ln, Lexington, NC 27295
Floor plans in Fieldstone
- View details for Nantahala II - Vanguard Collection

Nantahala II - Vanguard Collection
$375,000+- 4 bd
- 2.5 ba
- 2,450 sqft
- View details for Roanoke - Vanguard Collection

Roanoke - Vanguard Collection
$380,000+- 4 bd
- 2.5 ba
- 2,708 sqft
About the builder - Mungo Homes
Neighborhood
Home address
Schools in Davidson County Schools
GreatSchools’ Summary Rating calculation is based on 4 of the school’s themed ratings, including test scores, student/academic progress, college readiness, and equity. This information should only be used as a reference. Jome is not affiliated with GreatSchools and does not endorse or guarantee this information. Please reach out to schools directly to verify all information and enrollment eligibility. Data provided by GreatSchools.org © 2025
Places of interest
Getting around
Air quality
Noise level
A Soundscore™ rating is a number between 50 (very loud) and 100 (very quiet) that tells you how loud a location is due to environmental noise.

Considering this home?
Our expert will guide your tour, in-person or virtual
Need more information?
Text or call (888) 545-5198
Financials
Estimated monthly payment
Let us help you find your dream home
How many bedrooms are you looking for?
Similar homes nearby
Recently added communities in this area
Nearby communities in Lexington
New homes in nearby cities
More New Homes in Lexington, NC
- Jome
- New homes search
- North Carolina
- Davidson County
- Lexington
- Fieldstone
- 181 Candytuft Ct, Lexington, NC 27295






























