
















- 3 bd
- 2 ba
- 1,677 sqft
823 School Field Dr, Sneads Ferry, NC 28460
- Single-Family
- $210.29/sqft
- 67 days on Jome
New Homes for Sale Near 823 School Field Dr, Sneads Ferry, NC 28460
About this Home
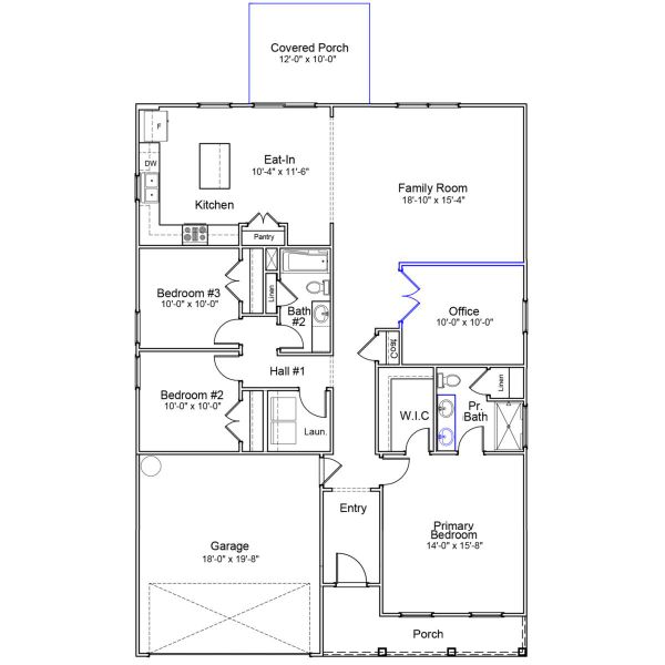
The Dorchester is a single-story home with three bedrooms and two full bathrooms. The primary bedroom has a five-foot walk-in shower, a large linen closet, and a walk-in closet. Beautiful luxury vinyl plank floors run throughout main living areas. The eat-in area has ample windows and a sliding door leading to a covered patio. The kitchen includes an island with bar seating and a double door pantry, and French doors lead to the spacious home office.
May also be listed on the Mungo Homes website
Information last verified by Jome: Sunday at 5:33 AM (November 23, 2025)
Home details
- Property status:
- Sold
- Size:
- 1,677 sqft
- Stories:
- 1
- Beds:
- 3
- Baths:
- 2
- Garage spaces:
- 2
Construction details
- Builder Name:
- Mungo Homes
- Completion Date:
- February, 2026
Home features & finishes
- Garage/Parking:
- Garage
- Rooms:
- Primary Bedroom On MainPrimary Bedroom Downstairs

Community details
Citadel Point at Southbridge
by Mungo Homes, Sneads Ferry, NC
- 13 homes
- 9 plans
- 1,500 - 3,049 sqft
View Citadel Point at Southbridge details
More homes in Citadel Point at Southbridge
Floor plans in Citadel Point at Southbridge
About the builder - Mungo Homes
Neighborhood
Home address
- City:
- Sneads Ferry
- Zip Code:
- 28460
Places of interest
Getting around
Financials
Nearby communities in Sneads Ferry
Homes in Sneads Ferry by Mungo Homes
Recently added communities in this area
Other Builders in Sneads Ferry, NC
Nearby sold homes
New homes in nearby cities
More New Homes in Sneads Ferry, NC
- Jome
- New homes search
- North Carolina
- Sneads Ferry
- Citadel Point at Southbridge
- 823 School Field Dr, Sneads Ferry, NC 28460



































































