

















- 3 bd
- 2 ba
- 1,500 sqft
831 Schoolfield Dr, Sneads Ferry, NC 28460
- Single-Family
- $219.47/sqft
- 96 days on Jome
New Homes for Sale Near 831 Schoolfield Dr, Sneads Ferry, NC 28460
About this Home
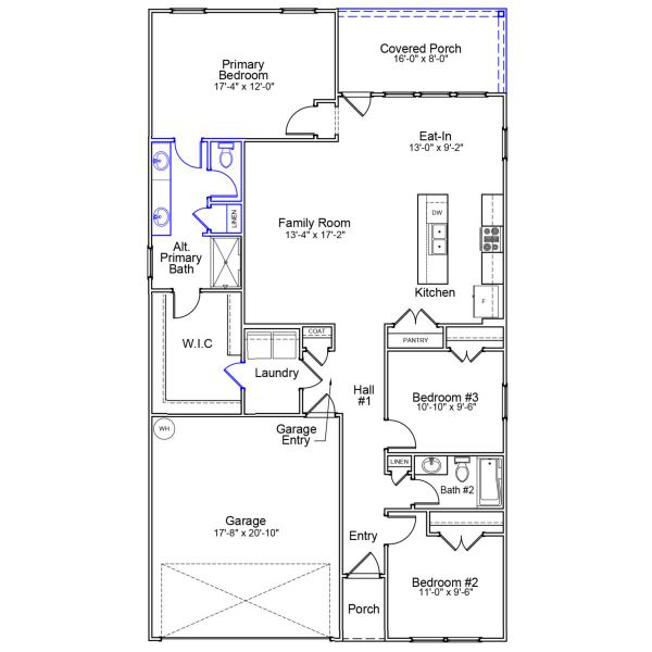
This single-story Lawrence is a three-bedroom, two-bathroom home with an open floor plan. The kitchen has a generous, solid surface countertop, an island, and an eat-in area that opens to the great room. The primary bedroom is split from the secondary bedrooms and features a large walk-in closet, dual sinks, and a linen closet. Both secondary bedrooms also feature double door closets, providing ample storage. The laundry room is centrally located and has convenient access to the primary closet. At the garage entry, you will find a coat closet and a linen closet near the secondary bathroom.
May also be listed on the Mungo Homes website
Information last verified by Jome: Tuesday at 6:02 AM (February 17, 2026)
Home details
- Property status:
- Sold
- Size:
- 1,500 sqft
- Stories:
- 1
- Beds:
- 3
- Baths:
- 2
- Garage spaces:
- 2
Construction details
- Builder Name:
- Mungo Homes
- Completion Date:
- March, 2026
Home features & finishes
- Garage/Parking:
- Garage
- Rooms:
- Primary Bedroom On MainPrimary Bedroom Downstairs

Community details
Citadel Point at Southbridge
by Mungo Homes, Sneads Ferry, NC
- 6 homes
- 9 plans
- 1,500 - 3,049 sqft
View Citadel Point at Southbridge details
More homes in Citadel Point at Southbridge
- Home at address 825 Schoolfield Dr, Sneads Ferry, NC 28460

$329,770
Move-in ready- 3 bd
- 2 ba
- 1,708 sqft
825 Schoolfield Dr, Sneads Ferry, NC 28460
- Home at address 830 Schoolfield Dr, Sneads Ferry, NC 28460

$399,152
Under construction- 4 bd
- 2 ba
- 1,855 sqft
830 Schoolfield Dr, Sneads Ferry, NC 28460
- Home at address 609 Hicks Ct, Sneads Ferry, NC 28460

$416,062
Under construction- 4 bd
- 2.5 ba
- 2,436 sqft
609 Hicks Ct, Sneads Ferry, NC 28460
- Home at address 807 School Field Dr, Sneads Ferry, NC 28460

$419,561
Move-in ready- 6 bd
- 5 ba
- 3,049 sqft
807 School Field Dr, Sneads Ferry, NC 28460
- Home at address 612 Hicks Ct, Sneads Ferry, NC 28460

$427,108
Under construction- 4 bd
- 3 ba
- 2,574 sqft
612 Hicks Ct, Sneads Ferry, NC 28460
- Home at address 837 Schoolfield Dr, Sneads Ferry, NC 28460

$439,337
Under construction- 6 bd
- 5 ba
- 3,049 sqft
837 Schoolfield Dr, Sneads Ferry, NC 28460
Floor plans in Citadel Point at Southbridge
- View details for Lawrence - Genesis Value Collection

Lawrence - Genesis Value Collection
$289,990+- 3 bd
- 2 ba
- 1,500 sqft
- View details for Dorchester - Genesis Value Collection

Dorchester - Genesis Value Collection
$309,990+- 3 bd
- 2 ba
- 1,665 sqft
About the builder - Mungo Homes
Neighborhood
Home address
- City:
- Sneads Ferry
- Zip Code:
- 28460
Schools in Onslow County Schools
GreatSchools’ Summary Rating calculation is based on 4 of the school’s themed ratings, including test scores, student/academic progress, college readiness, and equity. This information should only be used as a reference. Jome is not affiliated with GreatSchools and does not endorse or guarantee this information. Please reach out to schools directly to verify all information and enrollment eligibility. Data provided by GreatSchools.org © 2025
Places of interest
Getting around
Financials
Nearby communities in Sneads Ferry
Homes in Sneads Ferry by Mungo Homes
Recently added communities in this area
Other Builders in Sneads Ferry, NC
Nearby sold homes
New homes in nearby cities
More New Homes in Sneads Ferry, NC
- Jome
- New homes search
- North Carolina
- Sneads Ferry
- Citadel Point at Southbridge
- 831 Schoolfield Dr, Sneads Ferry, NC 28460





























































