














Book your tour. Save an average of $18,473. We'll handle the rest.
We collect exclusive builder offers, book your tours, and support you from start to housewarming.
- Confirmed tours
- Get matched & compare top deals
- Expert help, no pressure
- No added fees
Estimated value based on Jome data, T&C apply

- 3 bd
- 2 ba
- 1,708 sqft
825 Schoolfield Dr, Sneads Ferry, NC 28460
Why tour with Jome?
- No pressure toursTour at your own pace with no sales pressure
- Expert guidanceGet insights from our home buying experts
- Exclusive accessSee homes and deals not available elsewhere
Jome is featured in
- Single-Family
- Quick move-in
- $193.07/sqft
- 121 days on Jome
Builder deals available
- TOP-TIER DEAL
VA 30 Year Fixed
$5,680 est. value- Rate buydown from 3.49% (1 year) with 4.733% APR
FHA 30 Year Fixed
$220 est. value- Rate buydown from 3.49% (1 year) with 5.422% APR and 3.5% down payment
Deals may change and are not guaranteed. Some deals apply to specific homes or plans. Not a financing offer. Eligibility varies by lender. Please verify details.
Home description
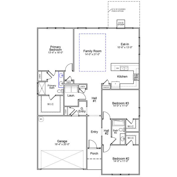
This single-story Durham is a three-bedroom, two-bathroom home with an open floor plan. The kitchen has generous quartz countertop space and an eat-in area that opens to the great room. The primary bedroom is split from the secondary bedrooms and features a large walk-in closet, dual sinks, and an oversized linen closet. Both secondary bedrooms also feature walk-in closets. The laundry room is centrally located and surrounded by even more linen closets. There is a garage entry room with plenty of storage in the coat closet and even a nook that can be used as a landing space for all of your items at the end of the day.
May also be listed on the Mungo Homes website
Information last verified by Jome: Yesterday at 5:57 AM (March 5, 2026)
Book your tour. Save an average of $18,473. We'll handle the rest.
We collect exclusive builder offers, book your tours, and support you from start to housewarming.
- Confirmed tours
- Get matched & compare top deals
- Expert help, no pressure
- No added fees
Estimated value based on Jome data, T&C apply
Home details
- Property status:
- Move-in ready
- Size:
- 1,708 sqft
- Stories:
- 1
- Beds:
- 3
- Baths:
- 2
- Garage spaces:
- 2
Construction details
- Builder Name:
- Mungo Homes
- Completion Date:
- March, 2026
Home features & finishes
- Garage/Parking:
- Garage
- Rooms:
- Primary Bedroom On MainPrimary Bedroom Downstairs

Get a consultation with our New Homes Expert
- See how your home builds wealth
- Plan your home-buying roadmap
- Discover hidden gems

Community details
Citadel Point at Southbridge
by Mungo Homes, Sneads Ferry, NC
- 6 homes
- 9 plans
- 1,500 - 3,049 sqft
View Citadel Point at Southbridge details
More homes in Citadel Point at Southbridge
- Home at address 830 Schoolfield Dr, Sneads Ferry, NC 28460

Gwinnett
$399,152
- 4 bd
- 2 ba
- 1,855 sqft
830 Schoolfield Dr, Sneads Ferry, NC 28460
- Home at address 609 Hicks Ct, Sneads Ferry, NC 28460

Pickens
$416,062
- 4 bd
- 2.5 ba
- 2,436 sqft
609 Hicks Ct, Sneads Ferry, NC 28460
- Home at address 807 School Field Dr, Sneads Ferry, NC 28460

Turner
$419,561
- 6 bd
- 5 ba
- 3,049 sqft
807 School Field Dr, Sneads Ferry, NC 28460
- Home at address 612 Hicks Ct, Sneads Ferry, NC 28460

Russell
$427,108
- 4 bd
- 3 ba
- 2,574 sqft
612 Hicks Ct, Sneads Ferry, NC 28460
- Home at address 837 Schoolfield Dr, Sneads Ferry, NC 28460

Turner
$439,337
- 6 bd
- 5 ba
- 3,049 sqft
837 Schoolfield Dr, Sneads Ferry, NC 28460
Floor plans in Citadel Point at Southbridge
- View details for Lawrence - Genesis Value Collection

Lawrence - Genesis Value Collection
$289,990+- 3 bd
- 2 ba
- 1,500 sqft
- View details for Dorchester - Genesis Value Collection

Dorchester - Genesis Value Collection
$309,990+- 3 bd
- 2 ba
- 1,665 sqft
About the builder - Mungo Homes
Neighborhood
Home address
- City:
- Sneads Ferry
- Zip Code:
- 28460
Schools in Onslow County Schools
GreatSchools’ Summary Rating calculation is based on 4 of the school’s themed ratings, including test scores, student/academic progress, college readiness, and equity. This information should only be used as a reference. Jome is not affiliated with GreatSchools and does not endorse or guarantee this information. Please reach out to schools directly to verify all information and enrollment eligibility. Data provided by GreatSchools.org © 2025
Places of interest
Getting around

Considering this home?
Our expert will guide your tour, in-person or virtual
Need more information?
Text or call (888) 488-9243
Financials
Estimated monthly payment
Let us help you find your dream home
How many bedrooms are you looking for?
Similar homes nearby
Recently added communities in this area
Nearby communities in Sneads Ferry
New homes in nearby cities
More New Homes in Sneads Ferry, NC
- Jome
- New homes search
- North Carolina
- Sneads Ferry
- Citadel Point at Southbridge
- 825 Schoolfield Dr, Sneads Ferry, NC 28460


























