














Book your tour. Save an average of $18,473. We'll handle the rest.
We collect exclusive builder offers, book your tours, and support you from start to housewarming.
- Confirmed tours
- Get matched & compare top deals
- Expert help, no pressure
- No added fees
Estimated value based on Jome data, T&C apply























- 6 bd
- 5 ba
- 3,049 sqft
807 School Field Dr, Sneads Ferry, NC 28460
Why tour with Jome?
- No pressure toursTour at your own pace with no sales pressure
- Expert guidanceGet insights from our home buying experts
- Exclusive accessSee homes and deals not available elsewhere
Jome is featured in
- Single-Family
- Quick move-in
- $137.61/sqft
- 190 days on Jome
Builder deals available
- TOP-TIER DEAL
VA 30 Year Fixed
$7,040 est. value- Rate buydown from 3.49% (1 year) with 4.733% APR
FHA 30 Year Fixed
$150 est. value- Rate buydown from 3.49% (1 year) with 5.422% APR and 3.5% down payment
Deals may change and are not guaranteed. Some deals apply to specific homes or plans. Not a financing offer. Eligibility varies by lender. Please verify details.
Home description
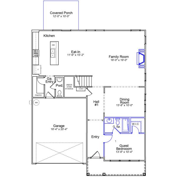
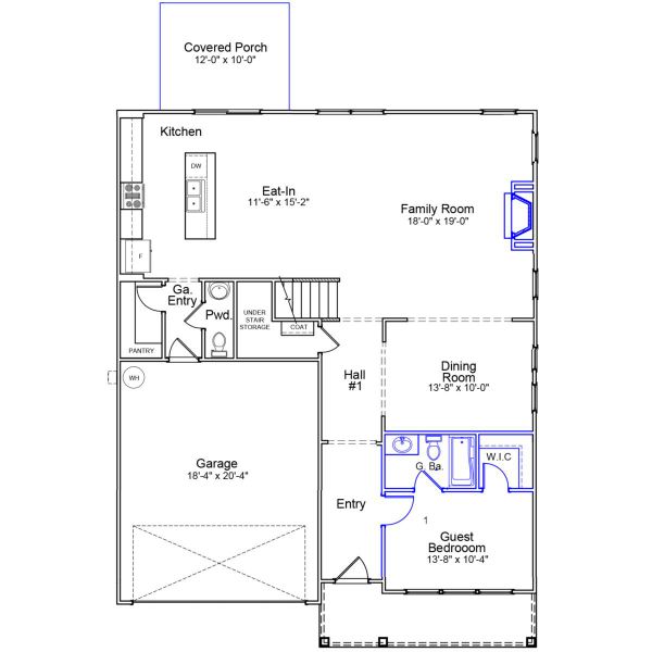
The Turner is a two-story open plan home with six bedrooms and four-and-one-half baths. A guest suite, equipped with a walk-in closet and a full bath, sits off the entry. The great room with a fireplace has access to the formal dining room, kitchen, and eat-in area. The kitchen features a large island and a walk-in pantry off the garage entrance. As you head upstairs, you'll spot the ample under-stair storage. The upstairs primary bedroom features a large walk-in closet, dual linen closets, and a five-foot walk-in shower. Two of the secondary bedrooms share a full bathroom, while the other two secondary bedrooms share a Jack-and-Jill bathroom. The loft and laundry room round out the second floor.
May also be listed on the Mungo Homes website
Information last verified by Jome: Today at 5:44 AM (February 26, 2026)
Book your tour. Save an average of $18,473. We'll handle the rest.
We collect exclusive builder offers, book your tours, and support you from start to housewarming.
- Confirmed tours
- Get matched & compare top deals
- Expert help, no pressure
- No added fees
Estimated value based on Jome data, T&C apply
Home details
- Property status:
- Move-in ready
- Size:
- 3,049 sqft
- Stories:
- 2
- Beds:
- 6
- Baths:
- 5
- Garage spaces:
- 2
Construction details
- Builder Name:
- Mungo Homes
- Completion Date:
- January, 2026
Home features & finishes
- Garage/Parking:
- Garage
- Rooms:
- Primary Bedroom Upstairs

Get a consultation with our New Homes Expert
- See how your home builds wealth
- Plan your home-buying roadmap
- Discover hidden gems

Community details
Citadel Point at Southbridge
by Mungo Homes, Sneads Ferry, NC
- 6 homes
- 9 plans
- 1,500 - 3,049 sqft
View Citadel Point at Southbridge details
More homes in Citadel Point at Southbridge
- Home at address 826 School Field Dr, Sneads Ferry, NC 28460

Turner
$429,912
- 6 bd
- 5 ba
- 3,049 sqft
826 School Field Dr, Sneads Ferry, NC 28460
- Home at address 837 Schoolfield Dr, Sneads Ferry, NC 28460

Turner
$439,337
- 6 bd
- 5 ba
- 3,049 sqft
837 Schoolfield Dr, Sneads Ferry, NC 28460
Floor plans in Citadel Point at Southbridge
- View details for Lawrence - Genesis Value Collection

Lawrence - Genesis Value Collection
$289,990+- 3 bd
- 2 ba
- 1,500 sqft
- View details for Dorchester - Genesis Value Collection

Dorchester - Genesis Value Collection
$309,990+- 3 bd
- 2 ba
- 1,665 sqft
About the builder - Mungo Homes
Neighborhood
Home address
- City:
- Sneads Ferry
- County:
- Onslow
- Zip Code:
- 28460
Schools in Onslow County Schools
GreatSchools’ Summary Rating calculation is based on 4 of the school’s themed ratings, including test scores, student/academic progress, college readiness, and equity. This information should only be used as a reference. Jome is not affiliated with GreatSchools and does not endorse or guarantee this information. Please reach out to schools directly to verify all information and enrollment eligibility. Data provided by GreatSchools.org © 2025
Places of interest
Getting around

Considering this home?
Our expert will guide your tour, in-person or virtual
Need more information?
Text or call (888) 488-9243
Financials
Estimated monthly payment
Let us help you find your dream home
How many bedrooms are you looking for?
Similar homes nearby
Recently added communities in this area
Nearby communities in Sneads Ferry
New homes in nearby cities
More New Homes in Sneads Ferry, NC
- Jome
- New homes search
- North Carolina
- Onslow County
- Sneads Ferry
- Citadel Point at Southbridge
- 807 School Field Dr, Sneads Ferry, NC 28460























