


















- 6 bd
- 5 ba
- 3,049 sqft
826 School Field Dr, Sneads Ferry, NC 28460
- Single-Family
- $141/sqft
- 96 days on Jome
New Homes for Sale Near 826 School Field Dr, Sneads Ferry, NC 28460
About this Home
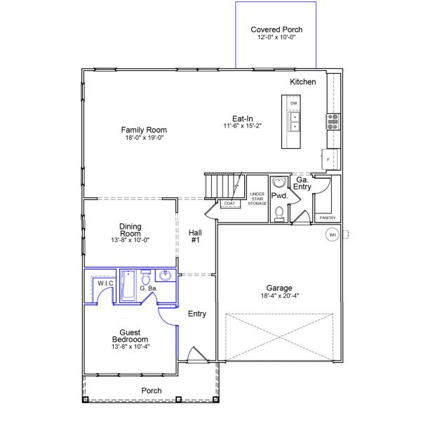
The Turner is a spacious two-story open plan home with six bedrooms and four-and-one-half baths. Just off the entry, a well-appointed guest suite includes a walk-in closet and full bath. The great room connects seamlessly to the formal dining room, kitchen, and eat-in area, creating an open and inviting main level. The kitchen offers a large island and a generous walk-in pantry conveniently located near the garage entrance, along with additional under-stair storage. Upstairs, primary bedroom includes an expansive walk-in closet, dual linen closets, and a five-foot walk-in shower. Two secondary bedrooms share a full bath, while the remaining two are connected by a Jack-and-Jill bath. A loft and laundry room are also thoughtfully situated on the second floor for added convenience.
May also be listed on the Mungo Homes website
Information last verified by Jome: Thursday at 6:07 AM (February 26, 2026)
Home details
- Property status:
- Sold
- Size:
- 3,049 sqft
- Stories:
- 2
- Beds:
- 6
- Baths:
- 5
- Garage spaces:
- 2
Construction details
- Builder Name:
- Mungo Homes
- Completion Date:
- February, 2026
Home features & finishes
- Garage/Parking:
- Garage
- Rooms:
- Primary Bedroom Upstairs

Community details
Citadel Point at Southbridge
by Mungo Homes, Sneads Ferry, NC
- 6 homes
- 9 plans
- 1,500 - 3,049 sqft
View Citadel Point at Southbridge details
More homes in Citadel Point at Southbridge
- Home at address 807 School Field Dr, Sneads Ferry, NC 28460

$419,561
Move-in ready- 6 bd
- 5 ba
- 3,049 sqft
807 School Field Dr, Sneads Ferry, NC 28460
- Home at address 837 Schoolfield Dr, Sneads Ferry, NC 28460

$439,337
Under construction- 6 bd
- 5 ba
- 3,049 sqft
837 Schoolfield Dr, Sneads Ferry, NC 28460
Floor plans in Citadel Point at Southbridge
- View details for Lawrence - Genesis Value Collection

Lawrence - Genesis Value Collection
$289,990+- 3 bd
- 2 ba
- 1,500 sqft
- View details for Dorchester - Genesis Value Collection

Dorchester - Genesis Value Collection
$309,990+- 3 bd
- 2 ba
- 1,665 sqft
About the builder - Mungo Homes
Neighborhood
Home address
- City:
- Sneads Ferry
- Zip Code:
- 28460
Schools in Onslow County Schools
GreatSchools’ Summary Rating calculation is based on 4 of the school’s themed ratings, including test scores, student/academic progress, college readiness, and equity. This information should only be used as a reference. Jome is not affiliated with GreatSchools and does not endorse or guarantee this information. Please reach out to schools directly to verify all information and enrollment eligibility. Data provided by GreatSchools.org © 2025
Places of interest
Getting around
Financials
Nearby communities in Sneads Ferry
Homes in Sneads Ferry by Mungo Homes
Recently added communities in this area
Other Builders in Sneads Ferry, NC
Nearby sold homes
New homes in nearby cities
More New Homes in Sneads Ferry, NC
- Jome
- New homes search
- North Carolina
- Sneads Ferry
- Citadel Point at Southbridge
- 826 School Field Dr, Sneads Ferry, NC 28460





























































