









Book your tour. Save an average of $18,473. We'll handle the rest.
We collect exclusive builder offers, book your tours, and support you from start to housewarming.
- Confirmed tours
- Get matched & compare top deals
- Expert help, no pressure
- No added fees
Estimated value based on Jome data, T&C apply



























- 5 bd
- 3 ba
- 3,060 sqft
1418 Winters Wy, McKinney, TX 75071
Why tour with Jome?
- No pressure toursTour at your own pace with no sales pressure
- Expert guidanceGet insights from our home buying experts
- Exclusive accessSee homes and deals not available elsewhere
Jome is featured in
- Single-Family
- Under construction
- $151.54/sqft
- $780/annual HOA
Home description
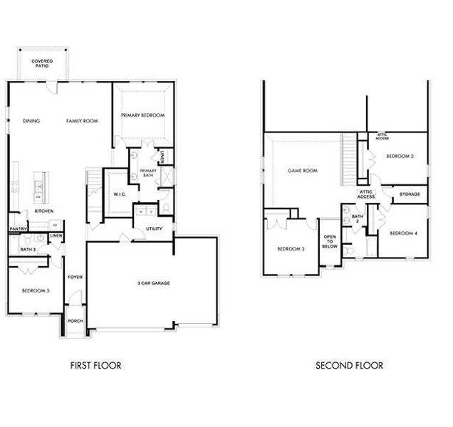
BRAND NEW energy - efficient home Apr 2026! Elegantly entertain in the Sylvan's spacious living area. A sloped ceiling in the dining room lends a bright feel. White cabinets with veined white quartz countertops, beige tone EVP flooring with beige tweed carpet. Spend the weekends debating what activity to do in this amenity-filled community, make a splash in the resort-style pool, pick up a game of basketball, or let the kids loose on the playground. With quick access to US 380, residents will enjoy the benefits of a short commute to downtown McKinney, Frisco, or Richardson to enjoy nearby shopping and entertainment. Each of our homes is built with innovative, energy-efficient features designed to help you enjoy more savings, better health, real comfort and peace of mind.
Meritage Homes Realty, MLS 21197283
May also be listed on the Meritage Homes website
Information last verified by Jome: Today at 2:01 AM (May 22, 2026)
Home highlights
Book your tour. Save an average of $18,473. We'll handle the rest.
We collect exclusive builder offers, book your tours, and support you from start to housewarming.
- Confirmed tours
- Get matched & compare top deals
- Expert help, no pressure
- No added fees
Estimated value based on Jome data, T&C apply
Home details
- Property status:
- Under construction
- Lot size (acres):
- 0.12
- Size:
- 3,060 sqft
- Stories:
- 2
- Beds:
- 5
- Baths:
- 3
- Garage spaces:
- 2
- Fence:
- Wood Fence
- Facing direction:
- South
Construction details
- Builder Name:
- Meritage Homes
- Year Built:
- 2026
- Roof:
- Composition Roofing
Home features & finishes
- Construction Materials:
- BrickRockStone
- Flooring:
- Ceramic FlooringVinyl FlooringCarpet FlooringTile Flooring
- Foundation Details:
- Slab
- Garage/Parking:
- GarageAttached Garage
- Interior Features:
- Walk-In ClosetFoyerPantryBlindsStorage
- Kitchen:
- DishwasherMicrowave OvenOvenRefrigeratorGas CooktopKitchen IslandGas Oven
- Laundry facilities:
- DryerWasherUtility/Laundry Room
- Lighting:
- Lighting
- Property amenities:
- PatioSmart Home SystemPorch
- Rooms:
- Primary Bedroom On MainKitchenGame RoomDining RoomFamily RoomOpen Concept FloorplanPrimary Bedroom Downstairs

Get a consultation with our New Homes Expert
- See how your home builds wealth
- Plan your home-buying roadmap
- Discover hidden gems
Utility information
- Heating:
- Electric Heating, Heat Pump, Thermostat, Water Heater, Central Heating
- Utilities:
- Underground Utilities, HVAC, City Water System, Individual Water Meter, Individual Gas Meter, High Speed Internet Access, Cable TV

Community details
Eastridge - Premier Series
by Meritage Homes, McKinney, TX
- 7 homes
- 1,874 - 3,060 sqft
View Eastridge - Premier Series details
Community amenities
- Playground
- Club House
- Community Pool
- Walking, Jogging, Hike Or Bike Trails
More homes in Eastridge - Premier Series
- Home at address 1404 Winters Wy, McKinney, TX 75071

The Congress
Savings$343,020
- 4 bd
- 2 ba
- 1,874 sqft
1404 Winters Wy, McKinney, TX 75071
- Home at address 1316 Winters Wy, McKinney, TX 75071

The Congress
Savings$350,020
- 4 bd
- 2 ba
- 1,874 sqft
1316 Winters Wy, McKinney, TX 75071
- Home at address 1406 Winters Wy, McKinney, TX 75071

The Independence
Savings$372,178
- 4 bd
- 2.5 ba
- 2,124 sqft
1406 Winters Wy, McKinney, TX 75071
- Home at address 1315 Winters Wy, McKinney, TX 75071

The Independence
Savings$377,178
- 4 bd
- 2.5 ba
- 2,124 sqft
1315 Winters Wy, McKinney, TX 75071
- Home at address 1410 Winters Wy, McKinney, TX 75071

The Capitol
Savings$426,154
- 4 bd
- 3 ba
- 2,756 sqft
1410 Winters Wy, McKinney, TX 75071
- Home at address 1403 Winters Wy, Princeton, TX 75071

The Capitol
Savings$432,654
- 4 bd
- 3 ba
- 2,756 sqft
1403 Winters Wy, Princeton, TX 75071
About the builder - Meritage Homes

- 311communities on Jome
- 2,490homes on Jome
Neighborhood
Home address
Schools in McKinney Independent School District
- Grades KG-05Publicelementary #225.7 mi1600 n sweetwater cvna
GreatSchools’ Summary Rating calculation is based on 4 of the school’s themed ratings, including test scores, student/academic progress, college readiness, and equity. This information should only be used as a reference. Jome is not affiliated with GreatSchools and does not endorse or guarantee this information. Please reach out to schools directly to verify all information and enrollment eligibility. Data provided by GreatSchools.org © 2025
Places of interest
Getting around
Air quality

Considering this home?
Our expert will guide your tour, in-person or virtual
Need more information?
Text or call (888) 545-5198
Financials
Estimated monthly payment
Let us help you find your dream home
How many bedrooms are you looking for?
Similar homes nearby
Recently added communities in this area
Nearby communities in McKinney
New homes in nearby cities
More New Homes in McKinney, TX
Meritage Homes Realty, MLS 21197283
IDX information is provided exclusively for personal, non-commercial use, and may not be used for any purpose other than to identify prospective properties consumers may be interested in purchasing. You may not reproduce or redistribute this data, it is for viewing purposes only. This data is deemed reliable, but is not guaranteed accurate by the MLS or NTREIS.
Read moreLast checked May 22, 4:00 pm
- Jome
- New homes search
- Texas
- Dallas-Fort Worth Area
- Collin County
- McKinney
- Eastridge - Premier Series
- 1418 Winters Wy, McKinney, TX 75071























