








Book your tour. Save an average of $18,473. We'll handle the rest.
We collect exclusive builder offers, book your tours, and support you from start to housewarming.
- Confirmed tours
- Get matched & compare top deals
- Expert help, no pressure
- No added fees
Estimated value based on Jome data, T&C apply











Why tour with Jome?
- No pressure toursTour at your own pace with no sales pressure
- Expert guidanceGet insights from our home buying experts
- Exclusive accessSee homes and deals not available elsewhere
Jome is featured in
- Single-Family
- Ready by May 2026
- $218.24/sqft
- $1,650/annual HOA
Home description
Built by M-I Homes, this impressive 2-story home is designed for comfort, flexibility, and modern living. With its open-concept layout, and stylish design features, this home perfectly balances everyday functionality and inviting charm.
Highlights include 4 bedrooms, 3.5 bathrooms, a game room and media room, extended covered patio and a 2-car garage.
The foyer takes you past a bedroom, bathroom, flex room, and laundry room before entering the heart of this home. The spacious family room connects seamlessly to the dining area and kitchen, creating an ideal space for both casual mornings and lively evening gatherings. You'll find the spacious owner's bedroom in the back corner, featuring sloped ceilings, an en-suite bathroom with a soaker tub, and a walk-in closet.
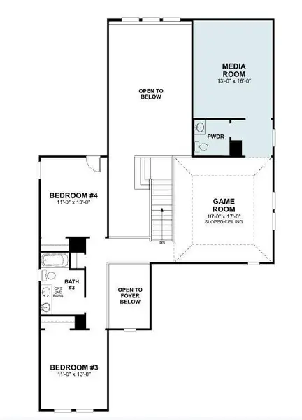
Upstairs, you’ll find two bedrooms around a large game room, perfect for movie nights, gaming marathons, or weekend hangouts. The additional media room with a half bath provides you with even more space to utilize.
Schedule your visit today!
Escape Realty, MLS 21175870
May also be listed on the M/I Homes website
Information last verified by Jome: Today at 2:14 AM (April 1, 2026)
Home highlights
Book your tour. Save an average of $18,473. We'll handle the rest.
We collect exclusive builder offers, book your tours, and support you from start to housewarming.
- Confirmed tours
- Get matched & compare top deals
- Expert help, no pressure
- No added fees
Estimated value based on Jome data, T&C apply
Home details
- Property status:
- Under construction
- Lot size (acres):
- 0.16
- Size:
- 3,070 sqft
- Stories:
- 2
- Beds:
- 4
- Baths:
- 3
- Half baths:
- 1
- Garage spaces:
- 2
- Fence:
- Wood Fence
Construction details
- Builder Name:
- M/I Homes
- Completion Date:
- May, 2026
- Year Built:
- 2026
- Roof:
- Roof Gutter, Composition Roofing
Home features & finishes
- Appliances:
- Exhaust Fan VentedSprinkler System
- Construction Materials:
- Brick
- Cooling:
- Ceiling Fan(s)Central Air
- Flooring:
- Ceramic FlooringVinyl FlooringCarpet FlooringTile Flooring
- Foundation Details:
- Slab
- Garage/Parking:
- Door OpenerGarageFront Entry Garage/ParkingAttached Garage
- Home amenities:
- Green Construction
- Interior Features:
- Walk-In ClosetBay Windows
- Kitchen:
- DishwasherMicrowave OvenWater FilterDisposalGas CooktopKitchen IslandElectric Oven
- Laundry facilities:
- DryerWasherStackable Washer/DryerUtility/Laundry Room
- Lighting:
- Exterior LightingDecorative/Designer Lighting
- Property amenities:
- Trees on propertyLandscapingPatioYardPorch
- Rooms:
- Media RoomOpen Concept Floorplan
- Security system:
- Smoke DetectorCarbon Monoxide Detector

Get a consultation with our New Homes Expert
- See how your home builds wealth
- Plan your home-buying roadmap
- Discover hidden gems
Utility information
- Heating:
- Water Heater, Central Heating, Gas Heating, Tankless water heater
- Utilities:
- Underground Utilities, HVAC, City Water System, Individual Water Meter, Individual Gas Meter, High Speed Internet Access, Cable TV, Curbs

Community details
Aster Park at Aster Park
by M/I Homes, McKinney, TX
- 9 homes
- 12 plans
- 1,834 - 3,504 sqft
View Aster Park details
Community amenities
- Club House
- Gated Community
- Community Pool
- Park Nearby
- Sidewalks Available
- Greenbelt View
- Walking, Jogging, Hike Or Bike Trails
More homes in Aster Park
- Home at address 6328 Foxglove Ln, McKinney, TX 75071

Edmonds
Savings$569,990
- 4 bd
- 2.5 ba
- 2,735 sqft
6328 Foxglove Ln, McKinney, TX 75071
- Home at address 6361 Foxglove Ln, McKinney, TX 75071

Presidio
Savings$639,990
- 4 bd
- 3.5 ba
- 3,504 sqft
6361 Foxglove Ln, McKinney, TX 75071
- Home at address 6620 Tadpole Trl, McKinney, TX 75071

Presidio
Savings$649,990
- 4 bd
- 3.5 ba
- 3,278 sqft
6620 Tadpole Trl, McKinney, TX 75071
- Home at address 6404 Admirals Ct, McKinney, TX 75071

Addison
Savings$669,990
- 4 bd
- 3.5 ba
- 3,161 sqft
6404 Admirals Ct, McKinney, TX 75071
- Home at address 6344 Simone Ave, McKinney, TX 75071

Balcones
Savings$679,990
- 4 bd
- 3.5 ba
- 3,215 sqft
6344 Simone Ave, McKinney, TX 75071
- Home at address 6454 Admirals Ct, McKinney, TX 75071

Balcones
Savings$737,800
- 4 bd
- 3.5 ba
- 3,233 sqft
6454 Admirals Ct, McKinney, TX 75071
Floor plans in Aster Park
About the builder - M/I Homes

- 141communities on Jome
- 1,882homes on Jome
Neighborhood
Home address
Schools in Prosper Independent School District
- Grades 09-12Publicnew high school #33.4 mi3500 e first stna
GreatSchools’ Summary Rating calculation is based on 4 of the school’s themed ratings, including test scores, student/academic progress, college readiness, and equity. This information should only be used as a reference. Jome is not affiliated with GreatSchools and does not endorse or guarantee this information. Please reach out to schools directly to verify all information and enrollment eligibility. Data provided by GreatSchools.org © 2025
Places of interest
Getting around
Air quality

Considering this home?
Our expert will guide your tour, in-person or virtual
Need more information?
Text or call (888) 545-5198
Financials
Estimated monthly payment
Let us help you find your dream home
How many bedrooms are you looking for?
Similar homes nearby
Recently added communities in this area
Nearby communities in McKinney
New homes in nearby cities
More New Homes in McKinney, TX
Escape Realty, MLS 21175870
IDX information is provided exclusively for personal, non-commercial use, and may not be used for any purpose other than to identify prospective properties consumers may be interested in purchasing. You may not reproduce or redistribute this data, it is for viewing purposes only. This data is deemed reliable, but is not guaranteed accurate by the MLS or NTREIS.
Read moreLast checked Apr 1, 4:00 am
- Jome
- New homes search
- Texas
- Dallas-Fort Worth Area
- Collin County
- McKinney
- Aster Park
- 6328 Simone Ave, McKinney, TX 75071




























