









Book your tour. Save an average of $18,473. We'll handle the rest.
We collect exclusive builder offers, book your tours, and support you from start to housewarming.
- Confirmed tours
- Get matched & compare top deals
- Expert help, no pressure
- No added fees
Estimated value based on Jome data, T&C apply




































Why tour with Jome?
- No pressure toursTour at your own pace with no sales pressure
- Expert guidanceGet insights from our home buying experts
- Exclusive accessSee homes and deals not available elsewhere
Jome is featured in
- Single-Family
- Quick move-in
- $260.88/sqft
- $1,050/annual HOA
Home description
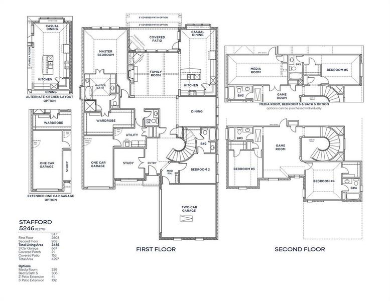
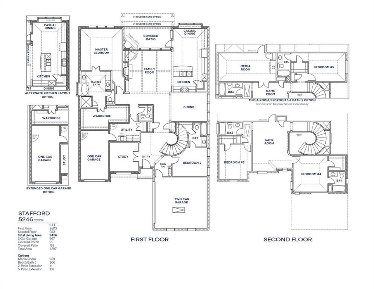
Popular open concept home features a dramatic two-story entry with a curved staircase. The family room and kitchen have beautiful vaulted ceilings. The home offers five bedrooms and five full bathrooms, four of which are en suite, along with a powder bath for guests. The gourmet kitchen includes quartz countertops, upgraded built-in appliances, and a walk-in pantry. The spacious primary retreat features a large walk-in closet, a box-out window, and a generously sized bathroom with an upgraded freestanding tub, large shower, and separate vanities. The primary closet has direct access to the laundry room for added convenience. A guest bedroom with an en suite bathroom and walk-in shower is located on the first floor. Additional upgrades include upgraded flooring, iron spindles at the staircase and game room overlook, and box windows at the casual dining nook.
Hunter Dehn Realty, MLS 21182381
May also be listed on the Shaddock Homes website
Information last verified by Jome: Today at 1:21 AM (April 18, 2026)
Book your tour. Save an average of $18,473. We'll handle the rest.
We collect exclusive builder offers, book your tours, and support you from start to housewarming.
- Confirmed tours
- Get matched & compare top deals
- Expert help, no pressure
- No added fees
Estimated value based on Jome data, T&C apply
Home details
- Property status:
- Move-in ready
- Lot size (acres):
- 0.23
- Size:
- 4,021 sqft
- Stories:
- 2
- Beds:
- 5
- Baths:
- 5
- Half baths:
- 1
- Garage spaces:
- 3
- Fence:
- Wood Fence
Construction details
- Builder Name:
- Shaddock Homes
- Completion Date:
- March, 2026
- Year Built:
- 2025
- Roof:
- Roof Gutter, Composition Roofing
Home features & finishes
- Appliances:
- Exhaust Fan VentedSprinkler System
- Construction Materials:
- Brick
- Cooling:
- Central Air
- Flooring:
- Ceramic FlooringCarpet FlooringTile Flooring
- Foundation Details:
- Pillar/Post/Pier
- Garage/Parking:
- Door OpenerGarageFront Entry Garage/ParkingMulti-Door GarageAttached GarageTandem Parking
- Home amenities:
- Green Construction
- Interior Features:
- Ceiling-VaultedFlat Screen WiringSound System Wiring
- Kitchen:
- DishwasherMicrowave OvenOvenDisposalGas CooktopConvection OvenElectric Oven
- Lighting:
- Security LightsDecorative/Designer Lighting
- Property amenities:
- SidewalkGas Log FireplaceBackyardLandscapingIrrigationPatioPorch
- Security system:
- Security SystemSmoke DetectorCarbon Monoxide Detector

Get a consultation with our New Homes Expert
- See how your home builds wealth
- Plan your home-buying roadmap
- Discover hidden gems
Utility information
- Heating:
- Zoned Heating, Water Heater, Central Heating, Gas Heating, Tankless water heater
- Utilities:
- Underground Utilities, HVAC, City Water System, Individual Water Meter, Individual Gas Meter, High Speed Internet Access, Cable TV, Curbs

Community details
Estates at Rockhill
by Shaddock Homes, Frisco, TX
- 3 homes
- 12 plans
- 2,586 - 4,021 sqft
View Estates at Rockhill details
More homes in Estates at Rockhill
- Home at address 16396 Parish Ln, Oak Point, TX 75068

Lavon - 4453SPR
$969,000
- 5 bd
- 4 ba
- 3,551 sqft
16396 Parish Ln, Oak Point, TX 75068
- Home at address 697 Gannon Heights Ln, Little Elm, TX 75068

Westlake - SH 5415
Contact for price
- 5 bd
- 4 ba
- 3,857 sqft
697 Gannon Heights Ln, Little Elm, TX 75068
Floor plans in Estates at Rockhill
About the builder - Shaddock Homes
Neighborhood
Home address
Schools in Frisco Independent School District
GreatSchools’ Summary Rating calculation is based on 4 of the school’s themed ratings, including test scores, student/academic progress, college readiness, and equity. This information should only be used as a reference. Jome is not affiliated with GreatSchools and does not endorse or guarantee this information. Please reach out to schools directly to verify all information and enrollment eligibility. Data provided by GreatSchools.org © 2025
Places of interest
Getting around
Air quality
Noise level
A Soundscore™ rating is a number between 50 (very loud) and 100 (very quiet) that tells you how loud a location is due to environmental noise.

Considering this home?
Our expert will guide your tour, in-person or virtual
Need more information?
Text or call (888) 545-5198
Financials
Estimated monthly payment
Let us help you find your dream home
How many bedrooms are you looking for?
Similar homes nearby
Recently added communities in this area
Nearby communities in Frisco
New homes in nearby cities
More New Homes in Frisco, TX
Hunter Dehn Realty, MLS 21182381
IDX information is provided exclusively for personal, non-commercial use, and may not be used for any purpose other than to identify prospective properties consumers may be interested in purchasing. You may not reproduce or redistribute this data, it is for viewing purposes only. This data is deemed reliable, but is not guaranteed accurate by the MLS or NTREIS.
Read moreLast checked Apr 17, 10:00 pm
- Jome
- New homes search
- Texas
- Dallas-Fort Worth Area
- Denton County
- Frisco
- Estates at Rockhill
- 611 Mayfair Ln, Frisco, TX 75033



























