



Book your tour. Save an average of $18,473. We'll handle the rest.
- Confirmed tours
- Get matched & compare top deals
- Expert help, no pressure
- No added fees
Estimated value based on Jome data, T&C apply
- 4 bd
- 3.5 ba
- 2,524 sqft
711 Oakridge Trl, Richardson, TX 75080
Why tour with Jome?
- No pressure toursTour at your own pace with no sales pressure
- Expert guidanceGet insights from our home buying experts
- Exclusive accessSee homes and deals not available elsewhere
Jome is featured in
- Single-Family
- Quick move-in
- $257.53/sqft
- $1,800/annual HOA
Home description
About this home
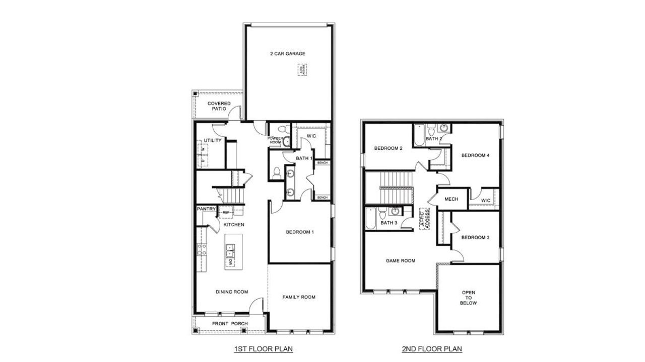
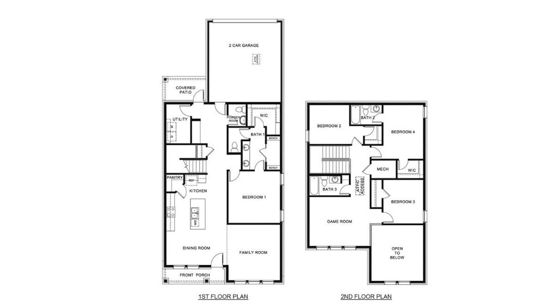
The Fairbanks at Greenwood Square in Richardson, Texas, offers over 2,500 square feet of well-appointed new home living across two stunning stories. With 4 bedrooms, 3.5 bathrooms, and a layout that balances flow and functionality, this home delivers upscale comfort in an exclusive, limited community.
A carefully crafted exterior of brick, stone, and wood-tone siding gives The Fairbanks its welcoming, high-end curb appeal—perfectly suited to Greenwood Square’s timeless, luxury aesthetic.
Inside, the main level centers around an open-concept kitchen, living, and dining area that invites connection and ease. The gourmet kitchen is outfitted with 42” flat panel cabinetry, granite or quartz countertops, a stainless steel appliance suite, and a DUPURE® water purification system—offering form, function, and convenience.
To personalize your space, The Fairbanks offers nine professionally curated interior design packages, each featuring elevated finishes handpicked for timeless appeal. Expect standout details like 4” x 12” or 4” x 16” tile backsplashes in an array of hues, vertically stacked 10” x 14” shower wall tiles, patterned 12” x 12” tile in the powder bath, quartz or granite surfaces, and wood-look flooring that flows through the main living areas with warmth and texture.
The private suite is a retreat of its own with a spacious bathroom, dual vanities, and walk-in closet. Three secondary bedrooms, an upstairs loft, and thoughtful storage throughout offer flexibility for a growing household or guests. Wrought iron stair details and included smart home technology add the final touches.
The Fairbanks at Greenwood Square is where upscale design meets everyday livability.
May also be listed on the D.R. Horton website
Information last verified by Jome: Today at 1:27 AM (January 31, 2026)
Home highlights
Peaceful Dallas lake with trails, birdwatching, and historic neighborhoods just minutes from the city center.
Book your tour. Save an average of $18,473. We'll handle the rest.
We collect exclusive builder offers, book your tours, and support you from start to housewarming.
- Confirmed tours
- Get matched & compare top deals
- Expert help, no pressure
- No added fees
Estimated value based on Jome data, T&C apply
Home details
- Property status:
- Move-in ready
- Neighborhood:
- Greenwood Hills
- Size:
- 2,524 sqft
- Stories:
- 2
- Beds:
- 4
- Baths:
- 3.5
- Garage spaces:
- 2
Construction details
- Builder Name:
- D.R. Horton
Home features & finishes
- Garage/Parking:
- GarageAttached Garage
- Interior Features:
- Walk-In ClosetPantry
- Kitchen:
- Stainless Steel AppliancesKitchen CountertopKitchen Island
- Laundry facilities:
- Utility/Laundry Room
- Property amenities:
- Tech SpacePatioSmart Home SystemPorch
- Rooms:
- Primary Bedroom On MainKitchenPowder RoomGame RoomDining RoomFamily RoomPrimary Bedroom Downstairs

Get a consultation with our New Homes Expert
- See how your home builds wealth
- Plan your home-buying roadmap
- Discover hidden gems

Community details
Greenwood Square
by D.R. Horton, Richardson, TX
- 4 homes
- 3 plans
- 2,482 - 2,983 sqft
View Greenwood Square details
More homes in Greenwood Square
- Home at address 719 Oakridge Trl, Richardson, TX 75080

Fairbanks
$650,000
- 4 bd
- 3.5 ba
- 2,524 sqft
719 Oakridge Trl, Richardson, TX 75080
- Home at address 707 Oakridge Trl, Richardson, TX 75080

Fairbanks
$652,200
- 4 bd
- 3.5 ba
- 2,524 sqft
707 Oakridge Trl, Richardson, TX 75080
- Home at address 722 Oakridge Trl, Richardson, TX 75080

Wellington
$712,200
- 4 bd
- 3.5 ba
- 2,983 sqft
722 Oakridge Trl, Richardson, TX 75080
Floor plans in Greenwood Square
About the builder - D.R. Horton

- 1,203communities on Jome
- 9,530homes on Jome
Neighborhood
Home address
- Neighborhood:
- Greenwood Hills
- City:
- Richardson
Schools in Richardson Independent School District
GreatSchools’ Summary Rating calculation is based on 4 of the school’s themed ratings, including test scores, student/academic progress, college readiness, and equity. This information should only be used as a reference. Jome is not affiliated with GreatSchools and does not endorse or guarantee this information. Please reach out to schools directly to verify all information and enrollment eligibility. Data provided by GreatSchools.org © 2025
Places of interest
Getting around
1 nearby routes: 1 bus, 0 rail, 0 otherAir quality
Noise level
A Soundscore™ rating is a number between 50 (very loud) and 100 (very quiet) that tells you how loud a location is due to environmental noise.

Considering this home?
Our expert will guide your tour, in-person or virtual
Need more information?
Text or call (888) 486-2818
Financials
Estimated monthly payment
Let us help you find your dream home
How many bedrooms are you looking for?
Similar homes nearby
Recently added communities in this area
Nearby communities in Richardson
New homes in nearby cities
More New Homes in Richardson, TX
- Jome
- New homes search
- Texas
- Dallas-Fort Worth Area
- Dallas County
- Richardson
- Greenwood Square
- 711 Oakridge Trl, Richardson, TX 75080






























