



































- 4 bd
- 3 ba
- 2,158 sqft
769 Tiger Lily Wy, Pilot Point, TX 76258
- Single-Family
- $148.51/sqft
- $425/semi-annual HOA
- North facing
New Homes for Sale Near 769 Tiger Lily Wy, Pilot Point, TX 76258
About this Home
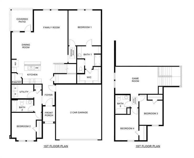
New construction by D.R. Horton. Our P40M Plan is in Windrose located within the rapidly growing city of Pilot Point. This is a 2 story 4 bed 3 bath with a game room open concept floorplan. Home on a large lot will feature waterproof laminate plank flooring, quartz countertops, and stainless steel appliances. Smart home included. Please See Showing instructions!!! Plan P40M
D.R. Horton, AMERICA'S Builder, MLS 21081366
May also be listed on the D.R. Horton website
Information last verified by Jome: Today at 1:42 AM (February 28, 2026)
Home details
- Property status:
- Sold
- Lot size (acres):
- 0.16
- Size:
- 2,158 sqft
- Stories:
- 2
- Beds:
- 4
- Baths:
- 3
- Garage spaces:
- 2
- Fence:
- Wood Fence
- Facing direction:
- North
Construction details
- Builder Name:
- D.R. Horton
- Year Built:
- 2025
- Roof:
- Composition Roofing
Home features & finishes
- Cooling:
- Central Air
- Flooring:
- Laminate FlooringCarpet Flooring
- Foundation Details:
- Slab
- Garage/Parking:
- GarageAttached Garage
- Interior Features:
- Walk-In ClosetFoyerPantryLoft
- Kitchen:
- DishwasherDisposalKitchen RangeElectric Oven
- Laundry facilities:
- Utility/Laundry Room
- Property amenities:
- PatioPorch
- Rooms:
- KitchenDining RoomFamily RoomOpen Concept FloorplanPrimary Bedroom Downstairs
- Security system:
- Smoke DetectorCarbon Monoxide Detector
Utility information
- Heating:
- Central Heating
- Utilities:
- City Water System

Community details
Windrose
by D.R. Horton, Pilot Point, TX
- 17 homes
- 14 plans
- 1,484 - 2,689 sqft
View Windrose details
More homes in Windrose
- Home at address 749 Orchid Wy, Pilot Point, TX 76258

$288,990
Under construction- 4 bd
- 2 ba
- 1,779 sqft
749 Orchid Wy, Pilot Point, TX 76258
- Home at address 811 Orchid Wy, Pilot Point, TX 76258

$294,490
Under construction- 4 bd
- 2 ba
- 1,836 sqft
811 Orchid Wy, Pilot Point, TX 76258
- Home at address 803 Orchid Wy, Pilot Point, TX 76258

$294,990
Under construction- 4 bd
- 2 ba
- 1,899 sqft
803 Orchid Wy, Pilot Point, TX 76258
- Home at address 743 Orchid Wy, Pilot Point, TX 76258

$300,490
Under construction- 4 bd
- 2 ba
- 1,875 sqft
743 Orchid Wy, Pilot Point, TX 76258
- Home at address 721 Orchid Wy, Pilot Point, TX 76258

$304,990
Under construction- 4 bd
- 3 ba
- 2,088 sqft
721 Orchid Wy, Pilot Point, TX 76258
- Home at address 767 Orchid Wy, Pilot Point, TX 76258

$319,990
Under construction- 4 bd
- 3 ba
- 2,152 sqft
767 Orchid Wy, Pilot Point, TX 76258
Floor plans in Windrose
About the builder - D.R. Horton

- 1,201communities on Jome
- 9,882homes on Jome
Neighborhood
Home address
- City:
- Pilot Point
- County:
- Cooke
- Zip Code:
- 76258
Schools in Pilot Point Independent School District
GreatSchools’ Summary Rating calculation is based on 4 of the school’s themed ratings, including test scores, student/academic progress, college readiness, and equity. This information should only be used as a reference. Jome is not affiliated with GreatSchools and does not endorse or guarantee this information. Please reach out to schools directly to verify all information and enrollment eligibility. Data provided by GreatSchools.org © 2025
Places of interest
Getting around
Air quality
Financials
Nearby communities in Pilot Point
Homes in Pilot Point by D.R. Horton
Recently added communities in this area
Other Builders in Pilot Point, TX
Nearby sold homes
New homes in nearby cities
More New Homes in Pilot Point, TX
D.R. Horton, AMERICA'S Builder, MLS 21081366
IDX information is provided exclusively for personal, non-commercial use, and may not be used for any purpose other than to identify prospective properties consumers may be interested in purchasing. You may not reproduce or redistribute this data, it is for viewing purposes only. This data is deemed reliable, but is not guaranteed accurate by the MLS or NTREIS.
Read moreLast checked Feb 28, 4:00 am
- Jome
- New homes search
- Texas
- Dallas-Fort Worth Area
- Cooke County
- Pilot Point
- Windrose
- 769 Tiger Lily Wy, Pilot Point, TX 76258




































































