



Book your tour. Save an average of $18,473. We'll handle the rest.
- Confirmed tours
- Get matched & compare top deals
- Expert help, no pressure
- No added fees
Estimated value based on Jome data, T&C apply
Why tour with Jome?
- No pressure toursTour at your own pace with no sales pressure
- Expert guidanceGet insights from our home buying experts
- Exclusive accessSee homes and deals not available elsewhere
Jome is featured in
- Single-Family
- Quick move-in
- $138.35/sqft
- $425/semi-annual HOA
Home description
About this home
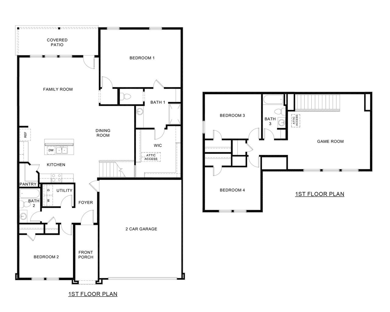
The Oleo is a two-story floorplan featured in our Windrose community in charming Pilot Point, Texas. With 2 beautiful farmhouse style elevations to choose from, the Oleo is sure to be the perfect fit your needs. Inside this 4 bedroom, 3 bathroom home also includes a large game room on the second floor. you’ll find 2,457 square feet of comfortable living. This floorplan also has a separate study. The living area is an open concept, where your kitchen, living, and dining areas blend seamlessly into a space perfect for everyday living and entertaining. The kitchen features a stainless steel dishwasher and range, a spacious corner pantry and a large island which is sure to make meal prep easy.
You’ll never be too far from the action with the living and large dining area right there. In every bedroom you’ll have carpeted floors and a closet. Laminate flooring in the remainder of the home makes cleaning a breeze. The primary bedroom has its own attached bathroom that features a spacious walk-in closet and all the space you need to get ready in the morning, featuring a large shower. The energy efficiencies included in this new construction home will keep you cool comfortable in the heat of summer and warm and cozy in the winter months.
May also be listed on the D.R. Horton website
Information last verified by Jome: Today at 4:18 AM (December 5, 2025)
Home highlights
Book your tour. Save an average of $18,473. We'll handle the rest.
We collect exclusive builder offers, book your tours, and support you from start to housewarming.
- Confirmed tours
- Get matched & compare top deals
- Expert help, no pressure
- No added fees
Estimated value based on Jome data, T&C apply
Home details
- Property status:
- Move-in ready
- Size:
- 2,461 sqft
- Stories:
- 2
- Beds:
- 4
- Baths:
- 3
- Garage spaces:
- 2
Construction details
- Builder Name:
- D.R. Horton
Home features & finishes
- Garage/Parking:
- GarageAttached Garage
- Interior Features:
- Walk-In ClosetFoyerPantry
- Laundry facilities:
- Utility/Laundry Room
- Property amenities:
- PatioPorch
- Rooms:
- KitchenGame RoomDining RoomFamily RoomOpen Concept FloorplanPrimary Bedroom Downstairs

Community details
Windrose
by D.R. Horton, Pilot Point, TX
- 17 homes
- 14 plans
- 1,484 - 2,689 sqft
View Windrose details
More homes in Windrose
Floor plans in Windrose
About the builder - D.R. Horton
Neighborhood
Home address
- City:
- Pilot Point
- County:
- Cooke
- Zip Code:
- 76258
Schools in Pilot Point Independent School District
GreatSchools’ Summary Rating calculation is based on 4 of the school’s themed ratings, including test scores, student/academic progress, college readiness, and equity. This information should only be used as a reference. Jome is not affiliated with GreatSchools and does not endorse or guarantee this information. Please reach out to schools directly to verify all information and enrollment eligibility. Data provided by GreatSchools.org © 2025
Places of interest
Getting around
Air quality
Natural hazards risk
Climate hazards can impact homes and communities, with risks varying by location. These scores reflect the potential impact of natural disasters and climate-related risks on Cooke County
Provided by FEMA

Considering this home?
Our expert will guide your tour, in-person or virtual
Need more information?
Text or call (888) 486-2818
Financials
Estimated monthly payment
Similar homes nearby
Recently added communities in this area
Nearby communities in Pilot Point
New homes in nearby cities
More New Homes in Pilot Point, TX
- Home
- New homes
- Texas
- Dallas-Fort Worth Area
- Cooke County
- Pilot Point
- Windrose
- 774 Tiger Lily Wy, Pilot Point, TX 76258







































