




















- 4 bd
- 3.5 ba
- 2,768 sqft
1312 Sherlynn Ct, Celina, TX 75009
- Single-Family
- $213.15/sqft
- $1,095/annual HOA
- 0.14-acre lot
New Homes for Sale Near 1312 Sherlynn Ct, Celina, TX 75009
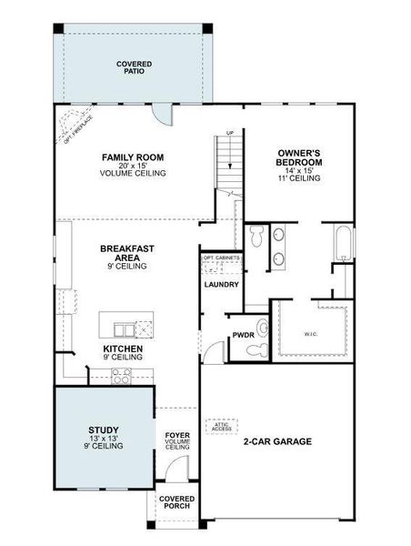
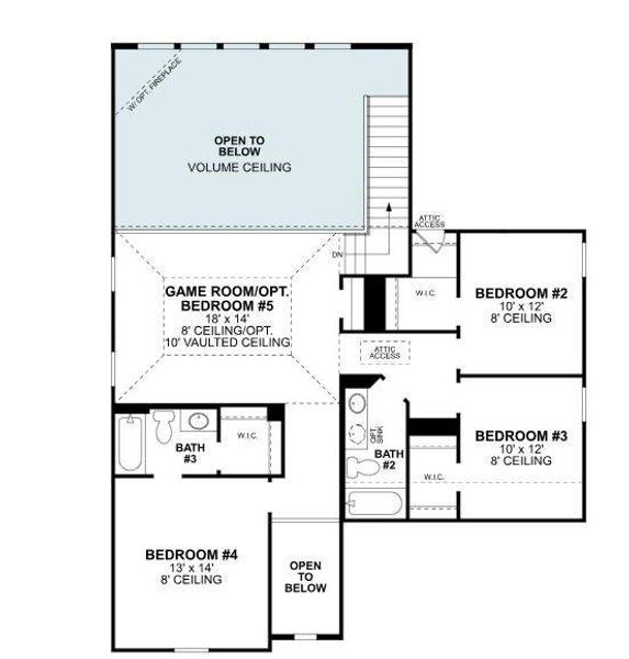
About this Home
Built by M-I Homes. Welcome to 1312 Sherlynn Court Celina, Texas, a stunning new construction home built by M-I Homes offering a thoughtfully designed living space.
This beautiful home features the following:
4 bedrooms including a first-floor owner's bedroom
3.5 bathrooms with quality fixtures
Open-concept living space perfect for entertaining and everyday living
Expertly crafted interior finishes throughout
Energy-efficient construction and systems
The well-appointed kitchen opens seamlessly to the family room, creating a natural gathering space that accommodates both casual meals and formal entertaining. High ceilings and abundant natural light enhance the sense of spaciousness throughout the home.
The downstairs owner's bedroom provides a private retreat, complete with an en-suite bathroom featuring premium fixtures and finishes. Three additional bedrooms upstairs offer comfortable spaces for family members or guests. The thoughtful design of this home maximizes functionality while maintaining an elegant aesthetic.
Quality craftsmanship is evident in every detail, from the stylish cabinetry to the attractive flooring options. As a new construction home, you'll enjoy the benefits of modern systems, fresh finishes, and the peace of mind that comes with new home warranties. The Celina location provides the perfect balance of small-town charm and convenient access to urban amenities.
With highly rated schools nearby and a growing community, this home represents an excellent opportunity for families looking to put down roots in a desirable neighborhood. Don't miss your chance to own this exceptional new construction home in one of Celina's most sought-after areas. Schedule your visit today!
Escape Realty, MLS 21004686
May also be listed on the M/I Homes website
Information last verified by Jome: Today at 1:20 AM (January 17, 2026)
Home details
- Property status:
- Sold
- Lot size (acres):
- 0.14
- Size:
- 2,768 sqft
- Stories:
- 2
- Beds:
- 4
- Baths:
- 3
- Half baths:
- 1
- Garage spaces:
- 2
- Fence:
- Wood Fence

Floor plan details
Whitley - Reserve Series
- 4 bd
- 3.5 ba
- 2,768 sqft
View Whitley - Reserve Series details
Construction details
- Builder Name:
- M/I Homes
- Completion Date:
- September, 2025
- Year Built:
- 2025
- Roof:
- Composition Roofing
Home features & finishes
- Appliances:
- Exhaust Fan VentedSprinkler System
- Construction Materials:
- Brick
- Cooling:
- Ceiling Fan(s)Central Air
- Flooring:
- Ceramic FlooringWood FlooringCarpet FlooringTile Flooring
- Foundation Details:
- Slab
- Garage/Parking:
- Door OpenerGarageFront Entry Garage/ParkingAttached Garage
- Home amenities:
- Green Construction
- Interior Features:
- Walk-In ClosetBay Windows
- Kitchen:
- DishwasherMicrowave OvenWater FilterDisposalGas CooktopKitchen IslandElectric Oven
- Laundry facilities:
- DryerWasherStackable Washer/DryerUtility/Laundry Room
- Lighting:
- LightingDecorative/Designer Lighting
- Property amenities:
- Trees on propertyLandscapingPatioYardPorch
- Rooms:
- Open Concept Floorplan
- Security system:
- Smoke DetectorCarbon Monoxide Detector
Utility information
- Heating:
- Water Heater, Central Heating, Gas Heating, Tankless water heater
- Utilities:
- HVAC, City Water System, Individual Water Meter, Individual Gas Meter, Cable TV, Curbs

Community details
Lilyana
by M/I Homes, Prosper, TX
- 26 homes
- 21 plans
- 1,947 - 4,099 sqft
View Lilyana details
Community amenities
- Playground
- Community Pool
- Park Nearby
- Sidewalks Available
More homes in Lilyana
- Home at address 3613 Henry Xing, Celina, TX 75009

$560,395
Under construction- 4 bd
- 3 ba
- 2,129 sqft
3613 Henry Xing, Celina, TX 75009
- Home at address 1328 Sherlynn Ct, Celina, TX 75009

$621,275
Under construction- 4 bd
- 3.5 ba
- 2,768 sqft
1328 Sherlynn Ct, Celina, TX 75009
- Home at address 1328 Silver Grass Mdws, Celina, TX 75009

$629,990
Move-in ready- 4 bd
- 3.5 ba
- 3,174 sqft
1328 Silver Grass Mdws, Celina, TX 75009
- Home at address 1328 Silver Grass Mdws, Celina, TX 75078

$629,990
Move-in ready- 4 bd
- 3.5 ba
- 3,174 sqft
1328 Silver Grass Mdws, Celina, TX 75078
- Home at address 1324 Sherlynn Ct, Celina, TX 75009

$632,700
Under construction- 4 bd
- 3 ba
- 2,903 sqft
1324 Sherlynn Ct, Celina, TX 75009
- Home at address 3609 Henry Crossing Ln, Celina, TX 75009

$639,990
Under construction- 4 bd
- 3.5 ba
- 3,155 sqft
3609 Henry Crossing Ln, Celina, TX 75009
Floor plans in Lilyana
About the builder - M/I Homes

- 128communities on Jome
- 1,831homes on Jome
Neighborhood
Home address
Schools in Prosper Independent School District
GreatSchools’ Summary Rating calculation is based on 4 of the school’s themed ratings, including test scores, student/academic progress, college readiness, and equity. This information should only be used as a reference. Jome is not affiliated with GreatSchools and does not endorse or guarantee this information. Please reach out to schools directly to verify all information and enrollment eligibility. Data provided by GreatSchools.org © 2025
Places of interest
Getting around
Air quality
Noise level
A Soundscore™ rating is a number between 50 (very loud) and 100 (very quiet) that tells you how loud a location is due to environmental noise.
Financials
Nearby communities in Celina
Homes in Celina by M/I Homes
Recently added communities in this area
Other Builders in Celina, TX
Nearby sold homes
New homes in nearby cities
More New Homes in Celina, TX
Escape Realty, MLS 21004686
IDX information is provided exclusively for personal, non-commercial use, and may not be used for any purpose other than to identify prospective properties consumers may be interested in purchasing. You may not reproduce or redistribute this data, it is for viewing purposes only. This data is deemed reliable, but is not guaranteed accurate by the MLS or NTREIS.
Read moreLast checked Jan 17, 4:00 pm
- Jome
- New homes search
- Texas
- Dallas-Fort Worth Area
- Collin County
- Celina
- Lilyana
- 1312 Sherlynn Ct, Celina, TX 75009

































































