














Book your tour. Save an average of $18,473. We'll handle the rest.
- Confirmed tours
- Get matched & compare top deals
- Expert help, no pressure
- No added fees
Estimated value based on Jome data, T&C apply













- 4 bd
- 4.5 ba
- 3,686 sqft
3604 Birds Eye Ln, Celina, TX 75009
Why tour with Jome?
- No pressure toursTour at your own pace with no sales pressure
- Expert guidanceGet insights from our home buying experts
- Exclusive accessSee homes and deals not available elsewhere
Jome is featured in
- Single-Family
- Quick move-in
- $200.76/sqft
- $1,095/annual HOA
Home description
Built by M-I Homes. Welcome to 3604 Birds Eye Lane located in the amenity-rich community of Lilyana. This stunning new construction home built by M-I Homes features a spacious layout with dozens of upgrades. Best of all it is situated on a premier homesite across the street from a beautiful community park and is zoned to top-rated Prosper ISD schools.
Home Features and Upgrades:
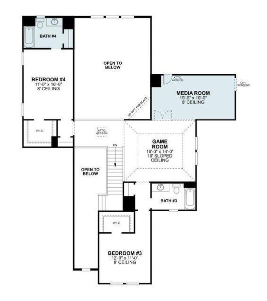
4 bedrooms
4.5 bathrooms
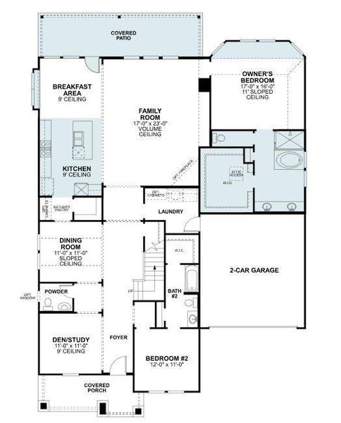
Bay window in the owner's bedroom
Luxury owner's en-suite bathroom
Gourmet kitchen
Private, first-floor study
Dining room with boxed-out window
Media room
Extended covered patio
This impressive new construction home combines functionality with elegant design elements, creating an inviting atmosphere that feels both sophisticated and comfortable. The thoughtful layout features a luxurious owner's bedroom located on the first floor, providing convenience and privacy. This retreat is further enhanced by a brilliant bay window extending the space and drawing in natural light, plus an elegant deluxe owner's bathroom.
The heart of this home is the spacious open-concept living area, where the kitchen seamlessly connects to dining and living spaces, creating a natural flow perfect for everyday living and special occasions alike. Tall, 2-story ceilings in the family room plus large windows throughout create an open and inviting atmosphere.
With 4 bedrooms and 4 full bathrooms, this home offers ample space for family members and guests.
The high-quality construction by M-I Homes ensures attention to detail throughout, from the beautiful finishes to the efficient use of space. The open layout incorporates natural light and well-proportioned rooms, creating an environment that feels both spacious yet intimate. Each area of the home has been thoughtfully planned to maximize comfort and functionality.
Experience the perfect blend of style, quality, and convenience in this beautiful new construction home. Schedule your visit today!
Escape Realty, MLS 21072403
May also be listed on the M/I Homes website
Information last verified by Jome: Yesterday at 10:01 PM (January 17, 2026)
Home highlights
Book your tour. Save an average of $18,473. We'll handle the rest.
We collect exclusive builder offers, book your tours, and support you from start to housewarming.
- Confirmed tours
- Get matched & compare top deals
- Expert help, no pressure
- No added fees
Estimated value based on Jome data, T&C apply
Home details
- Property status:
- Move-in ready
- Lot size (acres):
- 0.19
- Size:
- 3,686 sqft
- Stories:
- 2
- Beds:
- 4
- Baths:
- 4
- Half baths:
- 1
- Garage spaces:
- 2
- Fence:
- Wood Fence, Rock/Stone Fence

Floor plan details
Salado - Classic Series
- 4 bd
- 3.5 ba
- 3,438 sqft
View Salado - Classic Series details
Construction details
- Builder Name:
- M/I Homes
- Completion Date:
- November, 2025
- Year Built:
- 2025
- Roof:
- Composition Roofing
Home features & finishes
- Appliances:
- Exhaust Fan VentedSprinkler System
- Construction Materials:
- Brick
- Cooling:
- Ceiling Fan(s)Central Air
- Flooring:
- Ceramic FlooringVinyl FlooringCarpet FlooringTile Flooring
- Foundation Details:
- Slab
- Garage/Parking:
- Door OpenerGarageFront Entry Garage/ParkingAttached Garage
- Home amenities:
- Green Construction
- Interior Features:
- Walk-In ClosetBay Windows
- Kitchen:
- DishwasherMicrowave OvenWater FilterDisposalGas CooktopKitchen IslandElectric Oven
- Laundry facilities:
- DryerWasherUtility/Laundry Room
- Lighting:
- Exterior LightingLightingDecorative/Designer Lighting
- Property amenities:
- Trees on propertyLandscapingPatioYardPorch
- Rooms:
- Open Concept Floorplan
- Security system:
- Fire Sprinkler SystemSmoke DetectorCarbon Monoxide Detector

Get a consultation with our New Homes Expert
- See how your home builds wealth
- Plan your home-buying roadmap
- Discover hidden gems
Utility information
- Heating:
- Water Heater, Central Heating, Gas Heating, Tankless water heater
- Utilities:
- HVAC, City Water System, Individual Water Meter, Individual Gas Meter, High Speed Internet Access, Cable TV, Curbs

Community details
Lilyana
by M/I Homes, Prosper, TX
- 26 homes
- 21 plans
- 1,947 - 4,099 sqft
View Lilyana details
Community amenities
- Playground
- Lake Access
- Community Pool
- Park Nearby
- Sidewalks Available
- Walking, Jogging, Hike Or Bike Trails
More homes in Lilyana
- Home at address 3613 Henry Xing, Celina, TX 75009

Clary - Reserve Series
$560,395
- 4 bd
- 3 ba
- 2,129 sqft
3613 Henry Xing, Celina, TX 75009
- Home at address 1328 Sherlynn Ct, Celina, TX 75009

Whitley - Reserve Series
$621,275
- 4 bd
- 3.5 ba
- 2,768 sqft
1328 Sherlynn Ct, Celina, TX 75009
- Home at address 1328 Silver Grass Mdws, Celina, TX 75009

Home
$629,990
- 4 bd
- 3.5 ba
- 3,174 sqft
1328 Silver Grass Mdws, Celina, TX 75009
- Home at address 1328 Silver Grass Mdws, Celina, TX 75078

Balcones - Reserve Series
$629,990
- 4 bd
- 3.5 ba
- 3,174 sqft
1328 Silver Grass Mdws, Celina, TX 75078
- Home at address 1324 Sherlynn Ct, Celina, TX 75009

Eagle - Reserve Series
$632,700
- 4 bd
- 3 ba
- 2,903 sqft
1324 Sherlynn Ct, Celina, TX 75009
- Home at address 3609 Henry Crossing Ln, Celina, TX 75009

Home
$639,990
- 4 bd
- 3.5 ba
- 3,155 sqft
3609 Henry Crossing Ln, Celina, TX 75009
Floor plans in Lilyana
About the builder - M/I Homes

- 128communities on Jome
- 1,831homes on Jome
Neighborhood
Home address
Schools in Prosper Independent School District
GreatSchools’ Summary Rating calculation is based on 4 of the school’s themed ratings, including test scores, student/academic progress, college readiness, and equity. This information should only be used as a reference. Jome is not affiliated with GreatSchools and does not endorse or guarantee this information. Please reach out to schools directly to verify all information and enrollment eligibility. Data provided by GreatSchools.org © 2025
Places of interest
Getting around
Air quality
Noise level
A Soundscore™ rating is a number between 50 (very loud) and 100 (very quiet) that tells you how loud a location is due to environmental noise.

Considering this home?
Our expert will guide your tour, in-person or virtual
Need more information?
Text or call (888) 486-2818
Financials
Estimated monthly payment
Let us help you find your dream home
How many bedrooms are you looking for?
Similar homes nearby
Recently added communities in this area
Nearby communities in Celina
New homes in nearby cities
More New Homes in Celina, TX
Escape Realty, MLS 21072403
IDX information is provided exclusively for personal, non-commercial use, and may not be used for any purpose other than to identify prospective properties consumers may be interested in purchasing. You may not reproduce or redistribute this data, it is for viewing purposes only. This data is deemed reliable, but is not guaranteed accurate by the MLS or NTREIS.
Read moreLast checked Jan 17, 10:00 pm
- Jome
- New homes search
- Texas
- Dallas-Fort Worth Area
- Collin County
- Celina
- Lilyana
- 3604 Birds Eye Ln, Celina, TX 75009

































