













Book your tour. Save an average of $18,473. We'll handle the rest.
- Confirmed tours
- Get matched & compare top deals
- Expert help, no pressure
- No added fees
Estimated value based on Jome data, T&C apply


































Why tour with Jome?
- No pressure toursTour at your own pace with no sales pressure
- Expert guidanceGet insights from our home buying experts
- Exclusive accessSee homes and deals not available elsewhere
Jome is featured in
- Single-Family
- Under construction
- $348.52/sqft
- $500/quarterly HOA
Home description
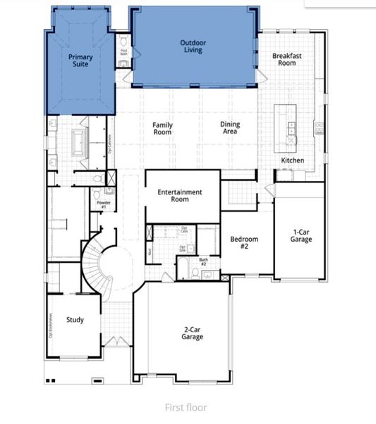
Stunning Two story Highland Home with 3 car split garage! Double door entry leads into a spacious foyer with soaring ceilings and a stunning curving staircase! Gourmet kitchen with large island overlooking spacious dining and family room with high soaring & custom ceiling beams, bringing lots of natural light in! Two sets of Beautiful slider doors lead to oversized outdoor living and large back yard! Extended primary suite with sitting area, spa like master bath with huge closet. Downstairs entertainment room great for media room or bonus room. Upstairs will take you to large gameroom and three oversized secondary bedrooms with ensuite private bathrooms.
HIGHLAND HOMES REALTY, MLS 20927836
May also be listed on the Highland Homes website
Information last verified by Jome: Today at 10:00 AM (January 14, 2026)
Home highlights
Peaceful Dallas lake with trails, birdwatching, and historic neighborhoods just minutes from the city center.
Book your tour. Save an average of $18,473. We'll handle the rest.
We collect exclusive builder offers, book your tours, and support you from start to housewarming.
- Confirmed tours
- Get matched & compare top deals
- Expert help, no pressure
- No added fees
Estimated value based on Jome data, T&C apply
Home details
- Property status:
- Under construction
- Lot size (acres):
- 0.23
- Size:
- 4,509 sqft
- Stories:
- 2
- Beds:
- 5
- Baths:
- 5.5
- Garage spaces:
- 3
- Fence:
- Wood Fence
Construction details
- Builder Name:
- Highland Homes
- Completion Date:
- December, 2025
- Year Built:
- 2026
- Roof:
- Composition Roofing
Home features & finishes
- Construction Materials:
- Brick
- Cooling:
- Ceiling Fan(s)Central Air
- Flooring:
- Wood FlooringCarpet FlooringTile Flooring
- Foundation Details:
- Slab
- Garage/Parking:
- Door OpenerGarageFront Entry Garage/ParkingSide Entry Garage/ParkingAttached Garage
- Interior Features:
- Ceiling-VaultedWalk-In ClosetPantryWet Bar
- Kitchen:
- DishwasherMicrowave OvenOvenDisposalGas CooktopKitchen IslandDouble Oven
- Laundry facilities:
- Utility/Laundry Room
- Lighting:
- Exterior LightingDecorative/Designer Lighting
- Property amenities:
- SidewalkBackyardLandscapingOutdoor LivingPatioFireplaceYardPorch
- Rooms:
- Primary Bedroom On MainKitchenPowder RoomGame RoomOffice/StudyDining RoomFamily RoomOpen Concept FloorplanPrimary Bedroom Downstairs
- Security system:
- Smoke DetectorCarbon Monoxide Detector

Get a consultation with our New Homes Expert
- See how your home builds wealth
- Plan your home-buying roadmap
- Discover hidden gems
Utility information
- Heating:
- Water Heater, Gas Heating, Tankless water heater
- Utilities:
- City Water System, Individual Water Meter, Individual Gas Meter

Community details
StarView at StarView
by Highland Homes, Prosper, TX
- 4 homes
- 17 plans
- 3,104 - 5,142 sqft
View StarView details
Community amenities
- Sidewalks Available
- Greenbelt View
More homes in StarView
- Home at address 610 Callisto Dr, Prosper, TX 75078

Siena Plan
$1,476,894
- 5 bd
- 5.5 ba
- 4,394 sqft
610 Callisto Dr, Prosper, TX 75078
- Home at address 550 Callisto Dr, Prosper, TX 75078

817 Plan
$1,485,605
- 5 bd
- 5.5 ba
- 5,142 sqft
550 Callisto Dr, Prosper, TX 75078
Floor plans in StarView
About the builder - Highland Homes
Neighborhood
Home address
Schools in Prosper Independent School District
- Grades M-MPublicmoseley middle0.8 mi605 e 7th stna
- Grades M-MPublicnew elementary 1180.8 mi605 e 7th stna
- Grades M-MPublicnew elementary 1190.8 mi605 e 7th stna
- Grades M-MPublicrichland high school0.8 mi605 e 7th stna
GreatSchools’ Summary Rating calculation is based on 4 of the school’s themed ratings, including test scores, student/academic progress, college readiness, and equity. This information should only be used as a reference. Jome is not affiliated with GreatSchools and does not endorse or guarantee this information. Please reach out to schools directly to verify all information and enrollment eligibility. Data provided by GreatSchools.org © 2025
Places of interest
Getting around
Air quality
Noise level
A Soundscore™ rating is a number between 50 (very loud) and 100 (very quiet) that tells you how loud a location is due to environmental noise.

Considering this home?
Our expert will guide your tour, in-person or virtual
Need more information?
Text or call (888) 486-2818
Financials
Estimated monthly payment
Let us help you find your dream home
How many bedrooms are you looking for?
Similar homes nearby
Recently added communities in this area
Nearby communities in Prosper
New homes in nearby cities
More New Homes in Prosper, TX
HIGHLAND HOMES REALTY, MLS 20927836
IDX information is provided exclusively for personal, non-commercial use, and may not be used for any purpose other than to identify prospective properties consumers may be interested in purchasing. You may not reproduce or redistribute this data, it is for viewing purposes only. This data is deemed reliable, but is not guaranteed accurate by the MLS or NTREIS.
Read moreLast checked Jan 14, 10:00 am
- Jome
- New homes search
- Texas
- Dallas-Fort Worth Area
- Collin County
- Prosper
- StarView
- 571 Twilight Dr, Prosper, TX 75078




























