











































- 4 bd
- 3 ba
- 2,327 sqft
3745 American Paint Dr, Aubrey, TX 76227
- Single-Family
- $213.48/sqft
- $243/quarterly HOA
- 0.15-acre lot
New Homes for Sale Near 3745 American Paint Dr, Aubrey, TX 76227
About this Home
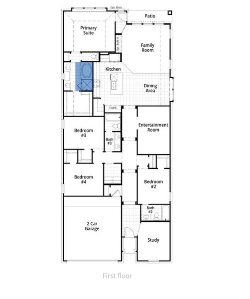
MLS# 20993625 - Built by Highland Homes - October completion! ~ Envision a beautiful single-story Escalade, meticulously designed for luxurious living. This home features four generously sized bedrooms and three full bathrooms, ensuring comfort and privacy for family and guests alike. A spacious two-car garage provides ample parking and storage. The primary bathroom is a true retreat, complete with a relaxing drop-in tub and a shower, perfect for unwinding after a long day. The heart of the home, the kitchen, boasts elegant quartz countertops that offer both beauty and durability. Attention to detail continues in the bathrooms, where cultured marble sinks add a touch of sophistication to the primary bathroom, as well as bathrooms 2 and 3. Every aspect of this home is crafted to create a harmonious blend of style and functionality!
Dina Verteramo, MLS 20993625
May also be listed on the Highland Homes website
Information last verified by Jome: Today at 1:23 AM (January 22, 2026)
Home details
- Property status:
- Sold
- Lot size (acres):
- 0.15
- Lot width (feet):
- 45
- Size:
- 2,327 sqft
- Stories:
- 1
- Beds:
- 4
- Baths:
- 3
- Garage spaces:
- 2
- Fence:
- Wood Fence
Construction details
- Builder Name:
- Highland Homes
- Completion Date:
- October, 2025
- Year Built:
- 2025
- Roof:
- Roof Gutter, Composition Roofing
Home features & finishes
- Appliances:
- Exhaust Fan Vented
- Construction Materials:
- Brick
- Cooling:
- Ceiling Fan(s)Central Air
- Flooring:
- Ceramic FlooringWood FlooringCarpet FlooringTile Flooring
- Foundation Details:
- Slab
- Garage/Parking:
- Door OpenerGarageFront Entry Garage/ParkingAttached Garage
- Home amenities:
- Green Construction
- Interior Features:
- Walk-In ClosetPantry
- Kitchen:
- DishwasherMicrowave OvenDisposalGas CooktopKitchen IslandElectric Oven
- Laundry facilities:
- DryerWasherStackable Washer/DryerUtility/Laundry Room
- Lighting:
- Exterior LightingLightingDecorative/Designer Lighting
- Property amenities:
- SidewalkPatioSmart Home SystemPorch
- Rooms:
- Primary Bedroom On MainKitchenOffice/StudyDining RoomFamily RoomPrimary Bedroom Downstairs
- Security system:
- Smoke DetectorCarbon Monoxide Detector
Utility information
- Heating:
- Water Heater, Central Heating, Gas Heating, Tankless water heater
- Utilities:
- Underground Utilities, Individual Water Meter, Individual Gas Meter, High Speed Internet Access, Cable TV, Curbs

Community details
Sandbrock Ranch: 45ft. lots at Sandbrock Ranch
by Highland Homes, Aubrey, TX
- 11 homes
- 11 plans
- 1,599 - 2,850 sqft
View Sandbrock Ranch: 45ft. lots details
Community amenities
- Playground
- Fitness Center/Exercise Area
- Club House
- Community Pool
- Park Nearby
- Fishing Pond
- Sidewalks Available
- Greenbelt View
- Walking, Jogging, Hike Or Bike Trails
More homes in Sandbrock Ranch: 45ft. lots
- Home at address 3709 American Paint Dr, Aubrey, TX 76227

$449,000
Under construction- 4 bd
- 3 ba
- 2,327 sqft
3709 American Paint Dr, Aubrey, TX 76227
- Home at address 3721 American Paint Dr, Aubrey, TX 76227

$479,810
Under construction- 4 bd
- 3 ba
- 2,345 sqft
3721 American Paint Dr, Aubrey, TX 76227
- Home at address 3617 Barrel Ln, Aubrey, TX 76227

$504,681
Under construction- 4 bd
- 3 ba
- 2,683 sqft
3617 Barrel Ln, Aubrey, TX 76227
- Home at address 3729 American Paint Dr, Aubrey, TX 76227

$532,781
Under construction- 4 bd
- 3 ba
- 2,328 sqft
3729 American Paint Dr, Aubrey, TX 76227
- Home at address 3640 Barrel Ln, Aubrey, TX 76227

$537,155
Under construction- 4 bd
- 4 ba
- 2,805 sqft
3640 Barrel Ln, Aubrey, TX 76227
- Home at address 3616 Barrel Ln, Aubrey, TX 76227

$539,990
Under construction- 4 bd
- 3.5 ba
- 2,850 sqft
3616 Barrel Ln, Aubrey, TX 76227
Floor plans in Sandbrock Ranch: 45ft. lots
About the builder - Highland Homes
Neighborhood
Home address
Schools in Denton Independent School District
- Grades PK-05Publicsandbrock ranch elementary0.4 mi3690 hunter stna
GreatSchools’ Summary Rating calculation is based on 4 of the school’s themed ratings, including test scores, student/academic progress, college readiness, and equity. This information should only be used as a reference. Jome is not affiliated with GreatSchools and does not endorse or guarantee this information. Please reach out to schools directly to verify all information and enrollment eligibility. Data provided by GreatSchools.org © 2025
Places of interest
Getting around
Air quality
Financials
Nearby communities in Aubrey
Homes in Aubrey by Highland Homes
Recently added communities in this area
Other Builders in Aubrey, TX
Nearby sold homes
New homes in nearby cities
More New Homes in Aubrey, TX
Dina Verteramo, MLS 20993625
IDX information is provided exclusively for personal, non-commercial use, and may not be used for any purpose other than to identify prospective properties consumers may be interested in purchasing. You may not reproduce or redistribute this data, it is for viewing purposes only. This data is deemed reliable, but is not guaranteed accurate by the MLS or NTREIS.
Read moreLast checked Jan 22, 4:00 pm
- Jome
- New homes search
- Texas
- Dallas-Fort Worth Area
- Denton County
- Aubrey
- Sandbrock Ranch: 45ft. lots
- 3745 American Paint Dr, Aubrey, TX 76227





































































