














































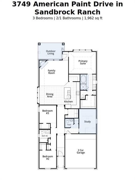
- 3 bd
- 2.5 ba
- 1,962 sqft
3749 American Paint Dr, Aubrey, TX 76227
- Single-Family
- $236.44/sqft
- $243/quarterly HOA
- 0.13-acre lot
New Homes for Sale Near 3749 American Paint Dr, Aubrey, TX 76227
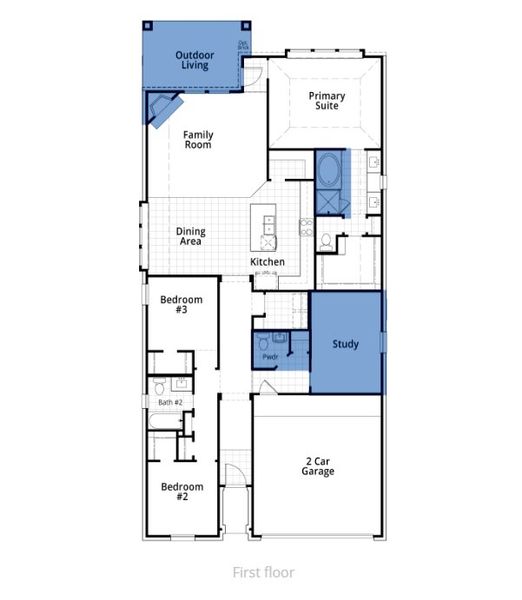
About this Home
MLS# 20983807 - Built by Highland Homes - October completion! ~ Discover unparalleled elegance in this remarkable one-story home, featuring three well-appointed bedrooms, a sophisticated study, two full bathrooms, and a stylish half bath. The expansive outdoor living space invites you to relax and entertain, while the living room fireplace adds a touch of warmth and charm. A conveniently located powder room enhances the functionality, and the primary bathroom offers a spa-like experience with a luxurious drop-in tub and separate shower.
Dina Verteramo, MLS 20983807
May also be listed on the Highland Homes website
Information last verified by Jome: Today at 1:07 AM (January 21, 2026)
Home details
- Property status:
- Sold
- Lot size (acres):
- 0.13
- Lot width (feet):
- 45
- Size:
- 1,962 sqft
- Stories:
- 1
- Beds:
- 3
- Baths:
- 2
- Half baths:
- 1
- Garage spaces:
- 2
- Fence:
- Wood Fence
Construction details
- Builder Name:
- Highland Homes
- Completion Date:
- October, 2025
- Year Built:
- 2025
- Roof:
- Roof Gutter, Composition Roofing
Home features & finishes
- Appliances:
- Exhaust Fan Vented
- Construction Materials:
- Brick
- Cooling:
- Ceiling Fan(s)Central Air
- Flooring:
- Ceramic FlooringWood FlooringCarpet FlooringTile Flooring
- Foundation Details:
- Slab
- Garage/Parking:
- GarageFront Entry Garage/ParkingAttached Garage
- Home amenities:
- Green Construction
- Interior Features:
- Walk-In ClosetPantry
- Kitchen:
- DishwasherMicrowave OvenDisposalGas CooktopKitchen IslandElectric Oven
- Laundry facilities:
- DryerWasherStackable Washer/DryerUtility/Laundry Room
- Lighting:
- Exterior LightingLightingDecorative/Designer Lighting
- Property amenities:
- SidewalkOutdoor LivingPatioFireplaceSmart Home SystemPorch
- Rooms:
- Primary Bedroom On MainKitchenPowder RoomOffice/StudyDining RoomFamily RoomLiving RoomPrimary Bedroom Downstairs
- Security system:
- Smoke DetectorCarbon Monoxide Detector
Utility information
- Heating:
- Water Heater, Central Heating, Gas Heating, Tankless water heater
- Utilities:
- Underground Utilities, Individual Water Meter, Individual Gas Meter, High Speed Internet Access, Cable TV, Curbs

Community details
Sandbrock Ranch: 45ft. lots at Sandbrock Ranch
by Highland Homes, Aubrey, TX
- 11 homes
- 11 plans
- 1,599 - 2,850 sqft
View Sandbrock Ranch: 45ft. lots details
Community amenities
- Playground
- Fitness Center/Exercise Area
- Club House
- Community Pool
- Park Nearby
- Fishing Pond
- Sidewalks Available
- Greenbelt View
- Walking, Jogging, Hike Or Bike Trails
More homes in Sandbrock Ranch: 45ft. lots
- Home at address 4718 Firewheel Ct, Aubrey, TX 76227

$340,000
Move-in ready- 3 bd
- 2 ba
- 1,599 sqft
4718 Firewheel Ct, Aubrey, TX 76227
- Home at address 3709 American Paint Dr, Aubrey, TX 76227

$449,000
Under construction- 4 bd
- 3 ba
- 2,327 sqft
3709 American Paint Dr, Aubrey, TX 76227
- Home at address 3720 American Paint Dr, Aubrey, TX 76227

$468,090
Under construction- 3 bd
- 2.5 ba
- 1,944 sqft
3720 American Paint Dr, Aubrey, TX 76227
- Home at address 3636 Barrel Ln, Aubrey, TX 76227

$475,465
Under construction- 3 bd
- 2.5 ba
- 1,991 sqft
3636 Barrel Ln, Aubrey, TX 76227
- Home at address 3721 American Paint Dr, Aubrey, TX 76227

$479,810
Under construction- 4 bd
- 3 ba
- 2,345 sqft
3721 American Paint Dr, Aubrey, TX 76227
- Home at address 3704 American Paint Dr, Aubrey, TX 76227

$489,000
Under construction- 3 bd
- 2 ba
- 1,991 sqft
3704 American Paint Dr, Aubrey, TX 76227
Floor plans in Sandbrock Ranch: 45ft. lots
About the builder - Highland Homes
Neighborhood
Home address
Schools in Denton Independent School District
- Grades PK-05Publicsandbrock ranch elementary0.2 mi3690 hunter stna
GreatSchools’ Summary Rating calculation is based on 4 of the school’s themed ratings, including test scores, student/academic progress, college readiness, and equity. This information should only be used as a reference. Jome is not affiliated with GreatSchools and does not endorse or guarantee this information. Please reach out to schools directly to verify all information and enrollment eligibility. Data provided by GreatSchools.org © 2025
Places of interest
Getting around
Air quality
Financials
Nearby communities in Aubrey
Homes in Aubrey by Highland Homes
Recently added communities in this area
Other Builders in Aubrey, TX
Nearby sold homes
New homes in nearby cities
More New Homes in Aubrey, TX
Dina Verteramo, MLS 20983807
IDX information is provided exclusively for personal, non-commercial use, and may not be used for any purpose other than to identify prospective properties consumers may be interested in purchasing. You may not reproduce or redistribute this data, it is for viewing purposes only. This data is deemed reliable, but is not guaranteed accurate by the MLS or NTREIS.
Read moreLast checked Jan 21, 10:00 am
- Jome
- New homes search
- Texas
- Dallas-Fort Worth Area
- Denton County
- Aubrey
- Sandbrock Ranch: 45ft. lots
- 3749 American Paint Dr, Aubrey, TX 76227








































































