











Book your tour. Save an average of $18,473. We'll handle the rest.
- Confirmed tours
- Get matched & compare top deals
- Expert help, no pressure
- No added fees
Estimated value based on Jome data, T&C apply





- 4 bd
- 3.5 ba
- 4,048 sqft
1508 Overbrook Pkwy, Krugerville, TX 76227
Why tour with Jome?
- No pressure toursTour at your own pace with no sales pressure
- Expert guidanceGet insights from our home buying experts
- Exclusive accessSee homes and deals not available elsewhere
Jome is featured in
- Single-Family
- Under construction
- $185.64/sqft
- $996/quarterly HOA
Home description
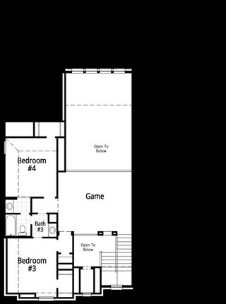
THE 224 Plan is located on an oversized lot across the street from treed walking trails. Two Story with Media and second Bedroom down. This home checks all the boxes. 4 BR, media, game, study, 3.5 baths.
HIGHLAND HOMES REALTY, MLS 21085922
May also be listed on the Highland Homes website
Information last verified by Jome: Today at 1:31 AM (December 5, 2025)
Home highlights
Book your tour. Save an average of $18,473. We'll handle the rest.
We collect exclusive builder offers, book your tours, and support you from start to housewarming.
- Confirmed tours
- Get matched & compare top deals
- Expert help, no pressure
- No added fees
Estimated value based on Jome data, T&C apply
Home details
- Property status:
- Under construction
- Lot size (acres):
- 0.20
- Lot width (feet):
- 60
- Size:
- 4,048 sqft
- Stories:
- 2
- Beds:
- 4
- Baths:
- 3
- Half baths:
- 1
- Garage spaces:
- 3
- Facing direction:
- North
Construction details
- Builder Name:
- Highland Homes
- Completion Date:
- November, 2025
- Year Built:
- 2025
- Roof:
- Composition Roofing
Home features & finishes
- Appliances:
- Exhaust Fan VentedSprinkler System
- Construction Materials:
- Brick
- Flooring:
- Ceramic FlooringBrick FlooringCarpet FlooringTile Flooring
- Foundation Details:
- Slab
- Garage/Parking:
- GarageFront Entry Garage/ParkingAttached GarageTandem Parking
- Home amenities:
- Green Construction
- Interior Features:
- Ceiling-VaultedWalk-In ClosetPantryFlat Screen WiringDouble Vanity
- Kitchen:
- DishwasherMicrowave OvenOvenDisposalGas CooktopKitchen IslandDouble OvenElectric Oven
- Laundry facilities:
- DryerWasherUtility/Laundry Room
- Lighting:
- LightingDecorative/Designer Lighting
- Property amenities:
- SidewalkBackyardLandscapingFireplaceYardSmart Home System
- Rooms:
- Primary Bedroom On MainKitchenGame RoomDining RoomFamily RoomOpen Concept FloorplanPrimary Bedroom Downstairs
- Security system:
- FirewallSmoke DetectorCarbon Monoxide Detector
Utility information
- Heating:
- Water Heater, Central Heating, Tankless water heater
- Utilities:
- HVAC, City Water System, Cable Available, Individual Water Meter, Individual Gas Meter, High Speed Internet Access, Cable TV

Community details
Sandbrock Ranch: 60ft. lots at Sandbrock Ranch
by Highland Homes, Aubrey, TX
- 6 homes
- 15 plans
- 2,247 - 4,048 sqft
View Sandbrock Ranch: 60ft. lots details
Community amenities
- Playground
- Fitness Center/Exercise Area
- Club House
- Community Pool
- Park Nearby
- Walking, Jogging, Hike Or Bike Trails
More homes in Sandbrock Ranch: 60ft. lots
Floor plans in Sandbrock Ranch: 60ft. lots
About the builder - Highland Homes
Neighborhood
Home address
- City:
- Krugerville
- County:
- Denton
- Zip Code:
- 76227
Schools in Denton Independent School District
- Grades M-MPublicsandbrock ranch elementary0.9 mi1307 n locust stna
GreatSchools’ Summary Rating calculation is based on 4 of the school’s themed ratings, including test scores, student/academic progress, college readiness, and equity. This information should only be used as a reference. Jome is not affiliated with GreatSchools and does not endorse or guarantee this information. Please reach out to schools directly to verify all information and enrollment eligibility. Data provided by GreatSchools.org © 2025
Places of interest
Getting around
Air quality
Natural hazards risk
Climate hazards can impact homes and communities, with risks varying by location. These scores reflect the potential impact of natural disasters and climate-related risks on Denton County
Provided by FEMA

Considering this home?
Our expert will guide your tour, in-person or virtual
Need more information?
Text or call (888) 486-2818
Financials
Estimated monthly payment
Similar homes nearby
Recently added communities in this area
Nearby communities in Krugerville
New homes in nearby cities
More New Homes in Krugerville, TX
HIGHLAND HOMES REALTY, MLS 21085922
IDX information is provided exclusively for personal, non-commercial use, and may not be used for any purpose other than to identify prospective properties consumers may be interested in purchasing. You may not reproduce or redistribute this data, it is for viewing purposes only. This data is deemed reliable, but is not guaranteed accurate by the MLS or NTREIS.
Read moreLast checked Dec 5, 4:00 am
- Home
- New homes
- Texas
- Dallas-Fort Worth Area
- Denton County
- Krugerville
- Sandbrock Ranch: 60ft. lots
- 1508 Overbrook Pkwy, Krugerville, TX 76227




































