














Book your tour. Save an average of $18,473. We'll handle the rest.
- Confirmed tours
- Get matched & compare top deals
- Expert help, no pressure
- No added fees
Estimated value based on Jome data, T&C apply














Why tour with Jome?
- No pressure toursTour at your own pace with no sales pressure
- Expert guidanceGet insights from our home buying experts
- Exclusive accessSee homes and deals not available elsewhere
Jome is featured in
- Single-Family
- Quick move-in
- $189.9/sqft
- $650/annual HOA
Home description
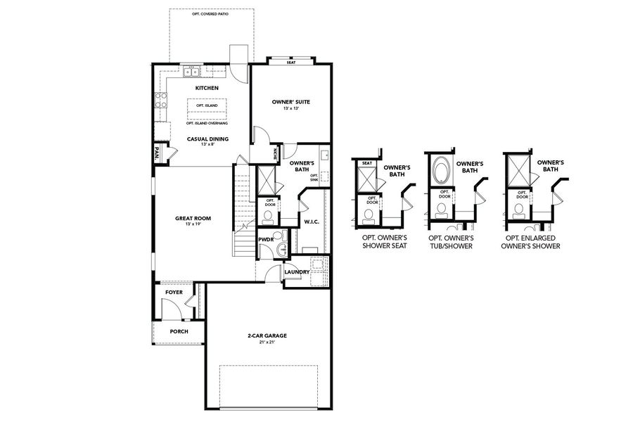
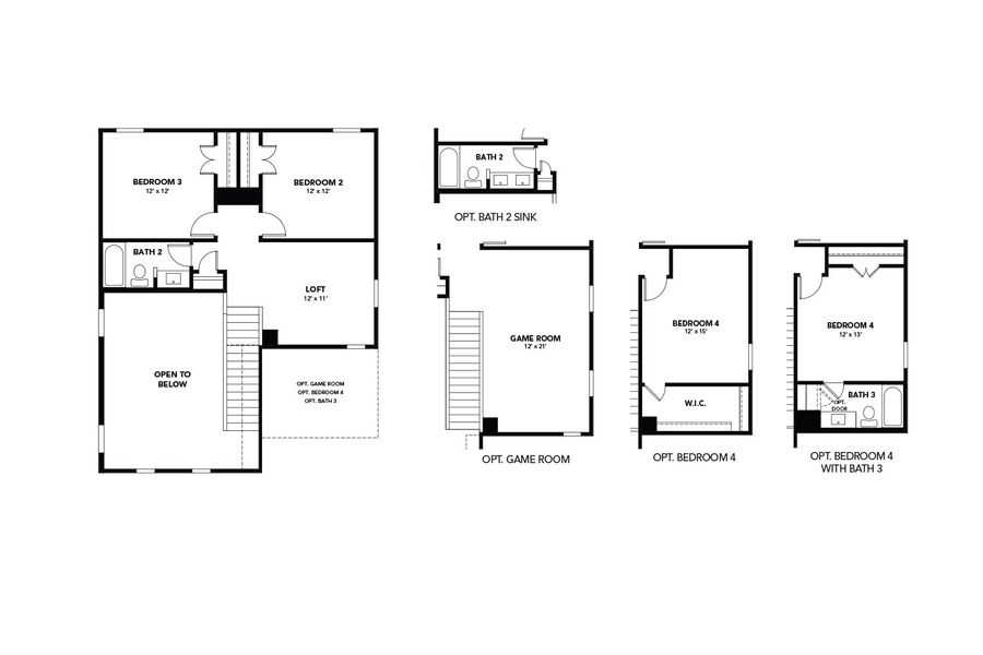
Latitude offers the perfect blend of comfort and functionality, elevated by community focused amenities creating a home where modern living and small town charm. The Latitude is a stunning two-story DRB Home offering 1,764 square feet of thoughtfully designed living space that combines modern style with everyday functionality. The open-concept layout creates a warm and inviting atmosphere, making it perfect for both entertaining guests and creating lasting family memories. At the heart of the home, the beautifully appointed kitchen features an enlarged island for meal prep and casual dining, generous cabinet and counter space, sleek stainless steel appliances, a large pantry for all your storage needs. The adjoining dining area flows seamlessly into the spacious living room, ideal for relaxed gatherings. The private owner’s suite, located on the main level, provides a serene escape with a cozy built-in window seat, a luxurious ensuite bathroom complete with dual vanities, a enclosed shower, and an expansive closet. Upstairs, two additional bedrooms share a full bathroom and are perfectly situated near an open loft area, offering a versatile space for a playroom, home office, or media area.
May also be listed on the Brightland Homes website
Information last verified by Jome: Yesterday at 7:03 AM (December 6, 2025)
Home highlights
Book your tour. Save an average of $18,473. We'll handle the rest.
We collect exclusive builder offers, book your tours, and support you from start to housewarming.
- Confirmed tours
- Get matched & compare top deals
- Expert help, no pressure
- No added fees
Estimated value based on Jome data, T&C apply
Home details
- Property status:
- Move-in ready
- Size:
- 1,764 sqft
- Stories:
- 2
- Beds:
- 3
- Baths:
- 2
- Half baths:
- 1
- Garage spaces:
- 2
- Facing direction:
- West
Construction details
- Builder Name:
- DRB Homes
- Completion Date:
- May, 2025
Home features & finishes
- Garage/Parking:
- GarageAttached Garage
- Interior Features:
- Walk-In ClosetFoyerPantryLoft
- Kitchen:
- Kitchen Island
- Laundry facilities:
- Utility/Laundry Room
- Property amenities:
- PatioPorch
- Rooms:
- Primary Bedroom On MainKitchenDining RoomFamily RoomPrimary Bedroom Downstairs

Community details
Churchill
by DRB Homes, Anna, TX
- 7 homes
- 18 plans
- 1,400 - 3,050 sqft
View Churchill details
More homes in Churchill
Floor plans in Churchill
About the builder - Brightland Homes
Neighborhood
Home address
Schools in Van Alstyne Independent School District
GreatSchools’ Summary Rating calculation is based on 4 of the school’s themed ratings, including test scores, student/academic progress, college readiness, and equity. This information should only be used as a reference. Jome is not affiliated with GreatSchools and does not endorse or guarantee this information. Please reach out to schools directly to verify all information and enrollment eligibility. Data provided by GreatSchools.org © 2025
Places of interest
Getting around
Air quality
Natural hazards risk
Climate hazards can impact homes and communities, with risks varying by location. These scores reflect the potential impact of natural disasters and climate-related risks on Collin County
Provided by FEMA

Considering this home?
Our expert will guide your tour, in-person or virtual
Need more information?
Text or call (888) 486-2818
Financials
Estimated monthly payment
Similar homes nearby
Recently added communities in this area
Nearby communities in Anna
New homes in nearby cities
More New Homes in Anna, TX
- Home
- New homes
- Texas
- Dallas-Fort Worth Area
- Collin County
- Anna
- Churchill
- 2639 Stowers St, Anna, TX 75409







































