



- 2 bd
- 2 ba
- 913 sqft
130 Cloverfield Ln, Spartanburg, SC 29303
- Single-Family
- $219.06/sqft
- 127 days on Jome
New Homes for Sale Near 130 Cloverfield Ln, Spartanburg, SC 29303
About this Home
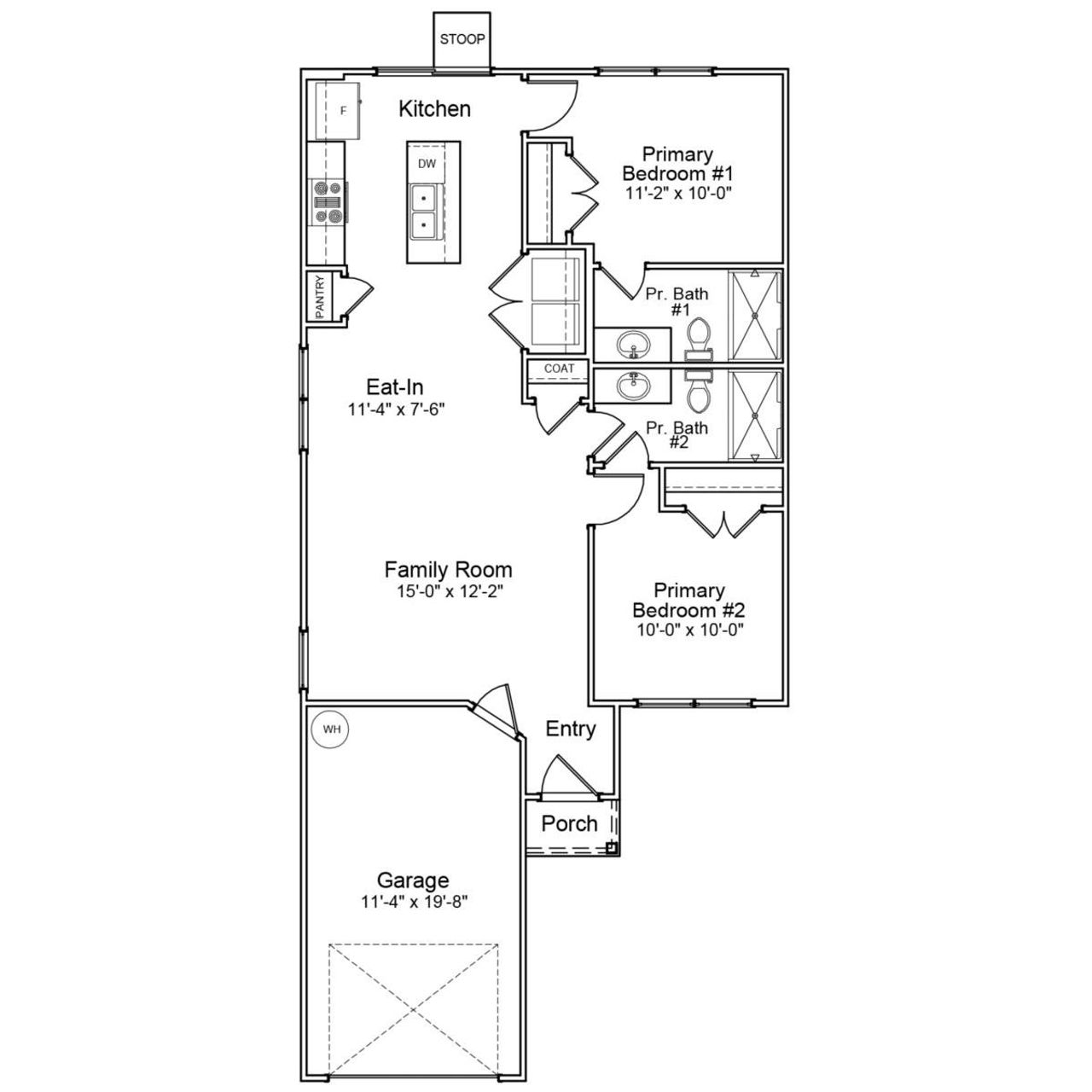
The Allendale is a one-story plan featuring two primary suites and two bathrooms. Immediately upon entry, you are greeted by the family room, that flows seamlessly into the eat-in and kitchen. The first primary bedroom is located off the kitchen and has a private bathroom and closet space. The second primary bedroom is located near the great room and has a closet space and private entry into the second bathroom. This bathroom also has access from the common areas when needed. A one-car garage and patio out back completes this floor plan.
May also be listed on the Mungo Homes website
Information last verified by Jome: Monday at 5:32 AM (April 6, 2026)
Home details
- Property status:
- Sold
- Size:
- 913 sqft
- Stories:
- 1
- Beds:
- 2
- Baths:
- 2
- Garage spaces:
- 1
Construction details
- Builder Name:
- Mungo Homes
- Completion Date:
- April, 2026
Home features & finishes
- Garage/Parking:
- Garage
- Rooms:
- Primary Bedroom On MainPrimary Bedroom Downstairs

Community details
Evergreen
by Mungo Homes, Spartanburg, SC
- 12 homes
- 2 plans
- 913 - 1,017 sqft
View Evergreen details
More homes in Evergreen
- Home at address 127 Cloverfield Ln, Spartanburg, SC 29303
Savings$203,000
Move-in ready- 2 bd
- 2 ba
- 913 sqft
127 Cloverfield Ln, Spartanburg, SC 29303
- Home at address 138 Cloverfield Ln, Spartanburg, SC 29303
Savings$203,500
Move-in ready- 2 bd
- 2 ba
- 913 sqft
138 Cloverfield Ln, Spartanburg, SC 29303
- Home at address 162 Cloverfield Ln, Spartanburg, SC 29303
Savings$204,000
Under construction- 2 bd
- 2 ba
- 913 sqft
162 Cloverfield Ln, Spartanburg, SC 29303
- Home at address 167 Cloverfield Ln, Spartanburg, SC 29303
Savings$204,500
Under construction- 2 bd
- 2 ba
- 913 sqft
167 Cloverfield Ln, Spartanburg, SC 29303
- Home at address 135 Cloverfield Ln, Spartanburg, SC 29303
Savings$204,500
Move-in ready- 2 bd
- 2 ba
- 913 sqft
135 Cloverfield Ln, Spartanburg, SC 29303
- Home at address 131 Cloverfield Ln, Spartanburg, SC 29303
Savings$204,500
Move-in ready- 2 bd
- 2 ba
- 913 sqft
131 Cloverfield Ln, Spartanburg, SC 29303
Floor plans in Evergreen
- View details for Allendale - Genesis Value Collection

Allendale - Genesis Value Collection
$201,000+- 2 bd
- 2 ba
- 913 sqft
- View details for Atkinson - Genesis Value Collection

Atkinson - Genesis Value Collection
$213,000+- 2 bd
- 2.5 ba
- 1,017 sqft
About the builder - Mungo Homes
Neighborhood
Home address
- City:
- Spartanburg
- County:
- Spartanburg
- Zip Code:
- 29303
Schools in Spartanburg School District 2
- Grades PK-04Privatekids first child development center2.2 mi153 fosters grove rdna
GreatSchools’ Summary Rating calculation is based on 4 of the school’s themed ratings, including test scores, student/academic progress, college readiness, and equity. This information should only be used as a reference. Jome is not affiliated with GreatSchools and does not endorse or guarantee this information. Please reach out to schools directly to verify all information and enrollment eligibility. Data provided by GreatSchools.org © 2025
Places of interest
Getting around
Air quality
Financials
Nearby communities in Spartanburg
Homes in Spartanburg by Mungo Homes
Recently added communities in this area
Other Builders in Spartanburg, SC
Nearby sold homes
New homes in nearby cities
More New Homes in Spartanburg, SC
- Jome
- New homes search
- South Carolina
- Spartanburg County
- Spartanburg
- Evergreen
- 130 Cloverfield Ln, Spartanburg, SC 29303
























































