



Book your tour. Save an average of $18,473. We'll handle the rest.
We collect exclusive builder offers, book your tours, and support you from start to housewarming.
- Confirmed tours
- Get matched & compare top deals
- Expert help, no pressure
- No added fees
Estimated value based on Jome data, T&C apply
Why tour with Jome?
- No pressure toursTour at your own pace with no sales pressure
- Expert guidanceGet insights from our home buying experts
- Exclusive accessSee homes and deals not available elsewhere
Jome is featured in
- Single-Family
- Ready by June 2026
- $225.63/sqft
- 6 days on Jome
Home description
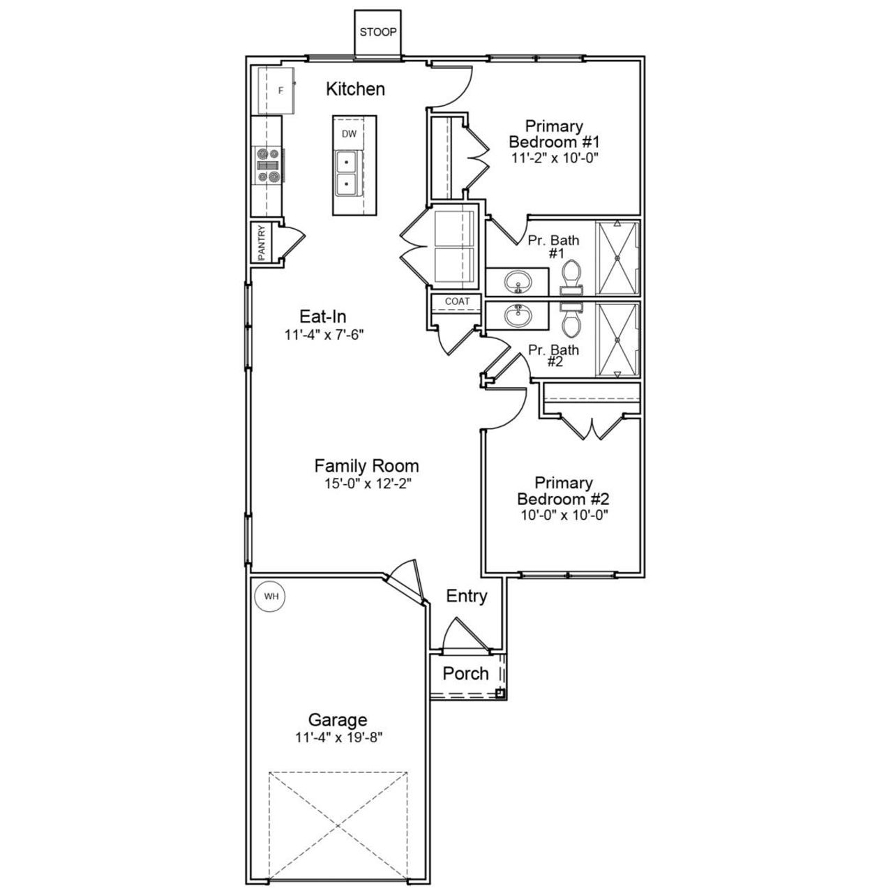
The Allendale is a one-story plan featuring two primary suites and two bathrooms. Immediately upon entry, you are greeted by the great room, that flows seamlessly into the eat-in and kitchen. The first primary bedroom is located off the kitchen and has a private bathroom and closet space. The second primary bedroom is located near the great room and has a closet space and private entry into the second bathroom. This bathroom also has access from the common areas when needed. A one-car garage and patio out back completes this floor plan.
May also be listed on the Mungo Homes website
Information last verified by Jome: Today at 6:03 AM (April 20, 2026)
Book your tour. Save an average of $18,473. We'll handle the rest.
We collect exclusive builder offers, book your tours, and support you from start to housewarming.
- Confirmed tours
- Get matched & compare top deals
- Expert help, no pressure
- No added fees
Estimated value based on Jome data, T&C apply
Home details
- Property status:
- Under construction
- Size:
- 913 sqft
- Stories:
- 1
- Beds:
- 2
- Baths:
- 2
- Garage spaces:
- 1
Construction details
- Builder Name:
- Mungo Homes
- Completion Date:
- June, 2026
Home features & finishes
- Garage/Parking:
- Garage
- Rooms:
- Primary Bedroom On MainPrimary Bedroom Downstairs

Get a consultation with our New Homes Expert
- See how your home builds wealth
- Plan your home-buying roadmap
- Discover hidden gems

Community details
Evergreen
by Mungo Homes, Spartanburg, SC
- 13 homes
- 1 plan
- 913 - 913 sqft
View Evergreen details
More homes in Evergreen
- Home at address 123 Cloverfield Ln, Spartanburg, SC 29303

Allendale
$199,999
- 2 bd
- 2 ba
- 913 sqft
123 Cloverfield Ln, Spartanburg, SC 29303
- Home at address 127 Cloverfield Ln, Spartanburg, SC 29303

Allendale
$203,000
- 2 bd
- 2 ba
- 913 sqft
127 Cloverfield Ln, Spartanburg, SC 29303
- Home at address 138 Cloverfield Ln, Spartanburg, SC 29303

Allendale
$203,500
- 2 bd
- 2 ba
- 913 sqft
138 Cloverfield Ln, Spartanburg, SC 29303
- Home at address 162 Cloverfield Ln, Spartanburg, SC 29303

Allendale
$204,000
- 2 bd
- 2 ba
- 913 sqft
162 Cloverfield Ln, Spartanburg, SC 29303
- Home at address 131 Cloverfield Ln, Spartanburg, SC 29303

Allendale
$204,500
- 2 bd
- 2 ba
- 913 sqft
131 Cloverfield Ln, Spartanburg, SC 29303
- Home at address 135 Cloverfield Ln, Spartanburg, SC 29303

Allendale
$204,500
- 2 bd
- 2 ba
- 913 sqft
135 Cloverfield Ln, Spartanburg, SC 29303
Floor plans in Evergreen
- View details for Allendale - Genesis Value Collection

Allendale - Genesis Value Collection
$201,000+- 2 bd
- 2 ba
- 913 sqft
About the builder - Mungo Homes
Neighborhood
Home address
- City:
- Spartanburg
- County:
- Spartanburg
- Zip Code:
- 29303
Schools in Spartanburg School District 2
- Grades PK-04Privatekids first child development center2.2 mi153 fosters grove rdna
GreatSchools’ Summary Rating calculation is based on 4 of the school’s themed ratings, including test scores, student/academic progress, college readiness, and equity. This information should only be used as a reference. Jome is not affiliated with GreatSchools and does not endorse or guarantee this information. Please reach out to schools directly to verify all information and enrollment eligibility. Data provided by GreatSchools.org © 2025
Places of interest
Getting around
Air quality

Considering this home?
Our expert will guide your tour, in-person or virtual
Need more information?
Text or call (888) 545-5198
Financials
Estimated monthly payment
Let us help you find your dream home
How many bedrooms are you looking for?
Recently added communities in this area
Nearby communities in Spartanburg
New homes in nearby cities
More New Homes in Spartanburg, SC
- Jome
- New homes search
- South Carolina
- Spartanburg County
- Spartanburg
- Evergreen
- 159 Cloverfield Ln, Spartanburg, SC 29303


















