








Book your tour. Save an average of $18,473. We'll handle the rest.
We collect exclusive builder offers, book your tours, and support you from start to housewarming.
- Confirmed tours
- Get matched & compare top deals
- Expert help, no pressure
- No added fees
Estimated value based on Jome data, T&C apply
























- 3 bd
- 2.5 ba
- 1,547 sqft
114 Lilac Lp (50), Greenwood, SC 29646
Why tour with Jome?
- No pressure toursTour at your own pace with no sales pressure
- Expert guidanceGet insights from our home buying experts
- Exclusive accessSee homes and deals not available elsewhere
Jome is featured in
- Single-Family
- Quick move-in
- $133.15/sqft
- 99 days on Jome
Home description
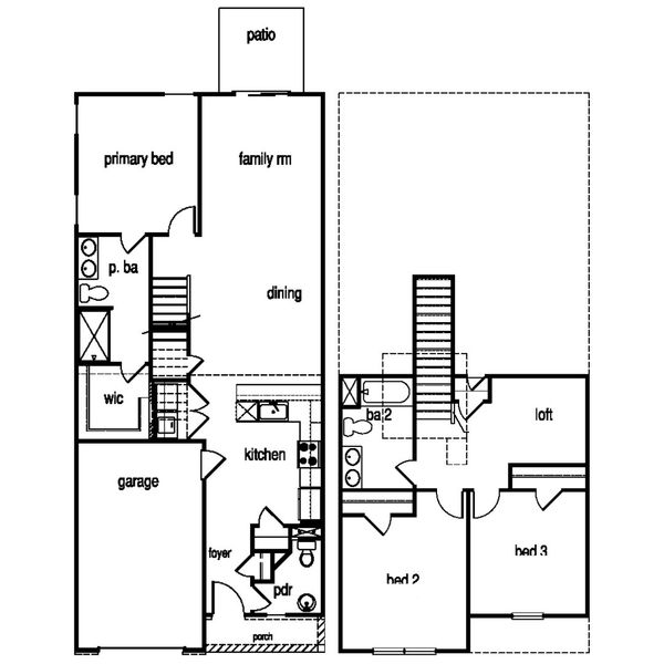
Exterior Unit! Move-In Ready! The Ash 24 builds on the charm of our original Ash plan, offering even more space and thoughtful design across 1,547 square feet.
Step inside through the welcoming front porch and into a bright foyer that leads past a convenient powder room and into the main living area. The kitchen sits at the heart of the home, open to both the dining area and family room so you can stay connected while cooking, entertaining, or relaxing. Natural light fills the space, and the easy flow to the back patio makes indoor-outdoor living effortless.
Just off the family room, the main-level primary suite provides a quiet retreat with a spacious walk-in closet and a private bathroom featuring a large shower and dual sinks. Upstairs, you’ll find two comfortable bedrooms, a full bathroom, and a central loft—ideal for a home office, playroom, or cozy movie spot.
Every detail in The Ash 24 is designed for everyday ease—from the attached garage and main-level laundry to the open, connected living spaces that bring everyone together.
May also be listed on the McGuinn Homes website
Information last verified by Jome: Yesterday at 6:08 AM (March 18, 2026)
Book your tour. Save an average of $18,473. We'll handle the rest.
We collect exclusive builder offers, book your tours, and support you from start to housewarming.
- Confirmed tours
- Get matched & compare top deals
- Expert help, no pressure
- No added fees
Estimated value based on Jome data, T&C apply
Home details
- Property status:
- Move-in ready
- Size:
- 1,547 sqft
- Stories:
- 2
- Beds:
- 3
- Baths:
- 2
- Half baths:
- 1
- Garage spaces:
- 1
Construction details
- Builder Name:
- McGuinn Homes
Home features & finishes
- Garage/Parking:
- Garage

Get a consultation with our New Homes Expert
- See how your home builds wealth
- Plan your home-buying roadmap
- Discover hidden gems

Community details
Towns at Lake Greenwood
by McGuinn Homes, Greenwood, SC
- 4 homes
- 4 plans
- 1,305 - 1,547 sqft
View Towns at Lake Greenwood details
More homes in Towns at Lake Greenwood
- Home at address 104 Lilac Loop (45), Greenwood, SC 29646

Aspen
$195,990
- 3 bd
- 2.5 ba
- 1,305 sqft
104 Lilac Loop (45), Greenwood, SC 29646
- Home at address 112 Lilac Loop (49), Greenwood, SC 29646

Walnut
$199,990
- 3 bd
- 2.5 ba
- 1,454 sqft
112 Lilac Loop (49), Greenwood, SC 29646
- Home at address 102 Lilac Loop (44), Greenwood, SC 29646

Sequoia
$210,990
- 3 bd
- 2.5 ba
- 1,498 sqft
102 Lilac Loop (44), Greenwood, SC 29646
Floor plans in Towns at Lake Greenwood
About the builder - McGuinn Homes
Neighborhood
Home address
Schools in Greenwood School District 52
GreatSchools’ Summary Rating calculation is based on 4 of the school’s themed ratings, including test scores, student/academic progress, college readiness, and equity. This information should only be used as a reference. Jome is not affiliated with GreatSchools and does not endorse or guarantee this information. Please reach out to schools directly to verify all information and enrollment eligibility. Data provided by GreatSchools.org © 2025
Getting around
Air quality

Considering this home?
Our expert will guide your tour, in-person or virtual
Need more information?
Text or call (888) 545-5198
Financials
Estimated monthly payment
Let us help you find your dream home
How many bedrooms are you looking for?
Similar homes nearby
Recently added communities in this area
Nearby communities in Greenwood
New homes in nearby cities
More New Homes in Greenwood, SC
- Jome
- New homes search
- South Carolina
- Greenwood County
- Greenwood
- Towns at Lake Greenwood
- 114 Lilac Lp (50), Greenwood, SC 29646





























