














Book your tour. Save an average of $18,473. We'll handle the rest.
- Confirmed tours
- Get matched & compare top deals
- Expert help, no pressure
- No added fees
Estimated value based on Jome data, T&C apply


















- 3 bd
- 2.5 ba
- 1,305 sqft
104 Lilac Loop (45), Greenwood, SC 29646
Why tour with Jome?
- No pressure toursTour at your own pace with no sales pressure
- Expert guidanceGet insights from our home buying experts
- Exclusive accessSee homes and deals not available elsewhere
Jome is featured in
- Single-Family
- Quick move-in
- $150.18/sqft
- 48 days on Jome
Home description
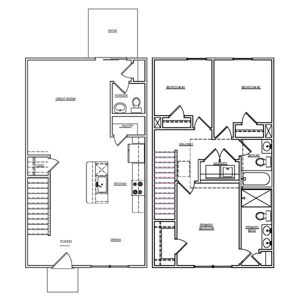
The Aspen is a beautifully designed living space, offering 1,305 sq. ft. of modern, open-concept living with three bedrooms and 2.5 bathrooms. Step inside to a welcoming foyer that flows effortlessly into the bright dining area and stunning plantation island kitchen, complete with a walk-in pantry for added convenience. The great room spans the entire back of the home, bathed in natural light and perfect for relaxing or entertaining. A powder bath is tucked off to the side, while the back door leads to a private patio, creating the perfect outdoor retreat.
Upstairs, the primary suite is a true sanctuary, featuring a spacious walk-in closet and a luxurious ensuite bath with a double vanity. The two additional bedrooms are nestled at the rear of the home, each with generous closet space and easy access to a stylish full bathroom. A convenient upstairs laundry room adds to the effortless flow of the design. With outside storage, thoughtful details, and a bright, airy feel, the Aspen is the perfect blend of comfort, style, and functionality—tailored for modern living.
May also be listed on the McGuinn Homes website
Information last verified by Jome: Today at 6:13 AM (January 25, 2026)
Book your tour. Save an average of $18,473. We'll handle the rest.
We collect exclusive builder offers, book your tours, and support you from start to housewarming.
- Confirmed tours
- Get matched & compare top deals
- Expert help, no pressure
- No added fees
Estimated value based on Jome data, T&C apply
Home details
- Property status:
- Move-in ready
- Size:
- 1,305 sqft
- Stories:
- 2
- Beds:
- 3
- Baths:
- 2
- Half baths:
- 1
Construction details
- Builder Name:
- McGuinn Homes

Get a consultation with our New Homes Expert
- See how your home builds wealth
- Plan your home-buying roadmap
- Discover hidden gems

Community details
Towns at Lake Greenwood
by McGuinn Homes, Greenwood, SC
- 4 homes
- 4 plans
- 1,305 - 1,594 sqft
View Towns at Lake Greenwood details
More homes in Towns at Lake Greenwood
- Home at address 112 Lilac Loop (49), Greenwood, SC 29646

Walnut
$199,990
- 3 bd
- 2.5 ba
- 1,454 sqft
112 Lilac Loop (49), Greenwood, SC 29646
- Home at address 114 Lilac Lp (50), Greenwood, SC 29646

Ash 24
$205,990
- 3 bd
- 2.5 ba
- 1,594 sqft
114 Lilac Lp (50), Greenwood, SC 29646
- Home at address 102 Lilac Loop (44), Greenwood, SC 29646

Sequoia
$210,990
- 3 bd
- 2.5 ba
- 1,498 sqft
102 Lilac Loop (44), Greenwood, SC 29646
Floor plans in Towns at Lake Greenwood
About the builder - McGuinn Homes
Neighborhood
Home address
Schools in Greenwood School District 52
GreatSchools’ Summary Rating calculation is based on 4 of the school’s themed ratings, including test scores, student/academic progress, college readiness, and equity. This information should only be used as a reference. Jome is not affiliated with GreatSchools and does not endorse or guarantee this information. Please reach out to schools directly to verify all information and enrollment eligibility. Data provided by GreatSchools.org © 2025
Getting around
Air quality

Considering this home?
Our expert will guide your tour, in-person or virtual
Need more information?
Text or call (888) 486-2818
Financials
Estimated monthly payment
Let us help you find your dream home
How many bedrooms are you looking for?
Similar homes nearby
Recently added communities in this area
Nearby communities in Greenwood
New homes in nearby cities
More New Homes in Greenwood, SC
- Jome
- New homes search
- South Carolina
- Greenwood County
- Greenwood
- Towns at Lake Greenwood
- 104 Lilac Loop (45), Greenwood, SC 29646





























