














Book your tour. Save an average of $18,473. We'll handle the rest.
- Confirmed tours
- Get matched & compare top deals
- Expert help, no pressure
- No added fees
Estimated value based on Jome data, T&C apply




















- 3 bd
- 2.5 ba
- 1,454 sqft
112 Lilac Loop (49), Greenwood, SC 29646
Why tour with Jome?
- No pressure toursTour at your own pace with no sales pressure
- Expert guidanceGet insights from our home buying experts
- Exclusive accessSee homes and deals not available elsewhere
Jome is featured in
- Single-Family
- Quick move-in
- $137.54/sqft
- 53 days on Jome
Home description
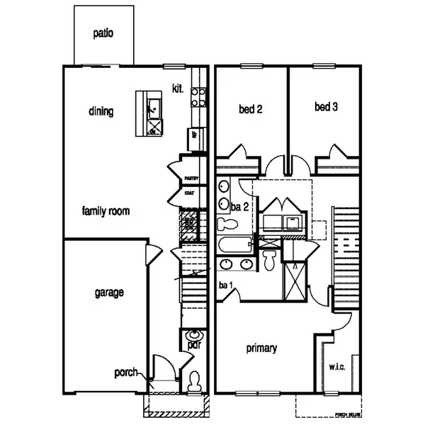
The Walnut makes townhome living feel comfortable, connected, and easy to enjoy. Step inside from the covered porch and you’re greeted by a bright, open space that flows naturally from one area to the next. The great room offers plenty of room to gather, while the casual dining area sits just off the kitchen—perfect for everyday meals or catching up after a long day.
In the kitchen, a center island anchors the space and gives you extra prep room or a spot to chat while cooking. The layout keeps everything within reach, from the pantry to the patio just beyond the dining area, making it simple to transition from dinner indoors to relaxing outside. A half bath near the entry adds everyday convenience, and the garage entry keeps things tidy when you’re coming and going.
Upstairs, three bedrooms provide just the right balance of privacy and togetherness. The primary suite includes a walk-in closet and spacious bath, while the two secondary bedrooms share a full bath and a flexible layout ideal for guests, kids, or a home office.
Modern, low-maintenance, and thoughtfully designed—the Walnut fits the way people really live.
May also be listed on the McGuinn Homes website
Information last verified by Jome: Today at 6:13 AM (February 1, 2026)
Book your tour. Save an average of $18,473. We'll handle the rest.
We collect exclusive builder offers, book your tours, and support you from start to housewarming.
- Confirmed tours
- Get matched & compare top deals
- Expert help, no pressure
- No added fees
Estimated value based on Jome data, T&C apply
Home details
- Property status:
- Move-in ready
- Size:
- 1,454 sqft
- Stories:
- 2
- Beds:
- 3
- Baths:
- 2
- Half baths:
- 1
- Garage spaces:
- 1
Construction details
- Builder Name:
- McGuinn Homes
Home features & finishes
- Garage/Parking:
- Garage

Get a consultation with our New Homes Expert
- See how your home builds wealth
- Plan your home-buying roadmap
- Discover hidden gems

Community details
Towns at Lake Greenwood
by McGuinn Homes, Greenwood, SC
- 4 homes
- 4 plans
- 1,305 - 1,594 sqft
View Towns at Lake Greenwood details
More homes in Towns at Lake Greenwood
- Home at address 104 Lilac Loop (45), Greenwood, SC 29646

Aspen
$195,990
- 3 bd
- 2.5 ba
- 1,305 sqft
104 Lilac Loop (45), Greenwood, SC 29646
- Home at address 114 Lilac Lp (50), Greenwood, SC 29646

Ash 24
$205,990
- 3 bd
- 2.5 ba
- 1,594 sqft
114 Lilac Lp (50), Greenwood, SC 29646
- Home at address 102 Lilac Loop (44), Greenwood, SC 29646

Sequoia
$210,990
- 3 bd
- 2.5 ba
- 1,498 sqft
102 Lilac Loop (44), Greenwood, SC 29646
Floor plans in Towns at Lake Greenwood
About the builder - McGuinn Homes
Neighborhood
Home address
Schools in Greenwood School District 52
GreatSchools’ Summary Rating calculation is based on 4 of the school’s themed ratings, including test scores, student/academic progress, college readiness, and equity. This information should only be used as a reference. Jome is not affiliated with GreatSchools and does not endorse or guarantee this information. Please reach out to schools directly to verify all information and enrollment eligibility. Data provided by GreatSchools.org © 2025
Getting around
Air quality

Considering this home?
Our expert will guide your tour, in-person or virtual
Need more information?
Text or call (888) 486-2818
Financials
Estimated monthly payment
Let us help you find your dream home
How many bedrooms are you looking for?
Similar homes nearby
Recently added communities in this area
Nearby communities in Greenwood
New homes in nearby cities
More New Homes in Greenwood, SC
- Jome
- New homes search
- South Carolina
- Greenwood County
- Greenwood
- Towns at Lake Greenwood
- 112 Lilac Loop (49), Greenwood, SC 29646




























