









Book your tour. Save an average of $18,473. We'll handle the rest.
We collect exclusive builder offers, book your tours, and support you from start to housewarming.
- Confirmed tours
- Get matched & compare top deals
- Expert help, no pressure
- No added fees
Estimated value based on Jome data, T&C apply





















- 4 bd
- 3.5 ba
- 3,314 sqft
106 Polo Ct, Ninety Six, SC 29666
Why tour with Jome?
- No pressure toursTour at your own pace with no sales pressure
- Expert guidanceGet insights from our home buying experts
- Exclusive accessSee homes and deals not available elsewhere
Jome is featured in
- Single-Family
- Quick move-in
- $236.87/sqft
- 92 days on Jome
Home description
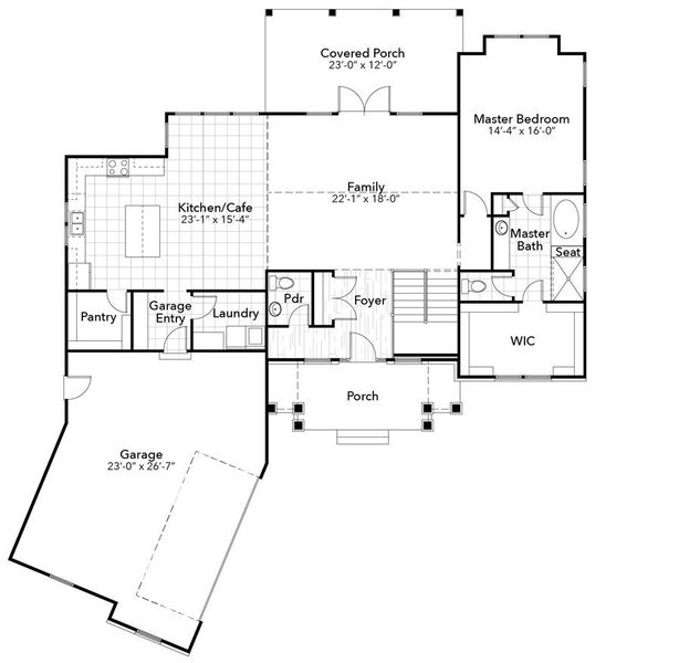
Live the lake life in this NEW Craftsman home in The Plantation at Grand Harbor! Featuring 4 bedrooms, 3.5 baths, a luxurious main-level primary suite, open-concept living, and a screened-in back porch. Enjoy a walk-out basement with a spacious flex living area and wet bar, plus a covered patio. The home also includes a drop zone, office/gym flex room, quartz countertops, gas log fireplace, and high-quality construction features like Techshield roof OSB, ZIP Panel System, and AdvanTech subflooring. Smart-home upgrades include zoned thermostat, CAT 6 wiring, Qolsys security system, SkyBell camera, and Z-Wave keyless entry.
Located in a gated lake community with clubhouse, dining, fitness center, tennis, lakeside pool, and private marina. Optional golf and equestrian amenities available. Builder/Seller will pay for a boat slip for the first two years!
May also be listed on the Hunter Quinn Homes website
Information last verified by Jome: Today at 6:09 AM (April 17, 2026)
Book your tour. Save an average of $18,473. We'll handle the rest.
We collect exclusive builder offers, book your tours, and support you from start to housewarming.
- Confirmed tours
- Get matched & compare top deals
- Expert help, no pressure
- No added fees
Estimated value based on Jome data, T&C apply
Home details
- Property status:
- Move-in ready
- Size:
- 3,314 sqft
- Stories:
- 2
- Beds:
- 4
- Baths:
- 3
- Half baths:
- 1
- Garage spaces:
- 2
Construction details
- Builder Name:
- Hunter Quinn Homes
Home features & finishes
- Garage/Parking:
- Garage

Get a consultation with our New Homes Expert
- See how your home builds wealth
- Plan your home-buying roadmap
- Discover hidden gems

Community details
Greenwood County Homes
by Hunter Quinn Homes, Ninety Six, SC
- 2 homes
- 13 plans
- 1,870 - 3,444 sqft
View Greenwood County Homes details
More homes in Greenwood County Homes
- Home at address 106 Armory Ct, Ninety Six, SC 29666

Bennett
$617,100
- 4 bd
- 2.5 ba
- 2,723 sqft
106 Armory Ct, Ninety Six, SC 29666
Floor plans in Greenwood County Homes
About the builder - Hunter Quinn Homes
Neighborhood
Home address
- City:
- Ninety Six
- County:
- Greenwood
- Zip Code:
- 29666
Schools in Greenwood School District 52
GreatSchools’ Summary Rating calculation is based on 4 of the school’s themed ratings, including test scores, student/academic progress, college readiness, and equity. This information should only be used as a reference. Jome is not affiliated with GreatSchools and does not endorse or guarantee this information. Please reach out to schools directly to verify all information and enrollment eligibility. Data provided by GreatSchools.org © 2025
Getting around
Air quality

Considering this home?
Our expert will guide your tour, in-person or virtual
Need more information?
Text or call (888) 545-5198
Financials
Estimated monthly payment
Let us help you find your dream home
How many bedrooms are you looking for?
Similar homes nearby
Recently added communities in this area
Nearby communities in Ninety Six
New homes in nearby cities
More New Homes in Ninety Six, SC
- Jome
- New homes search
- South Carolina
- Greenwood County
- Ninety Six
- Greenwood County Homes
- 106 Polo Ct, Ninety Six, SC 29666



















