




















- 3 bd
- 2 ba
- 1,808 sqft
3192 Visionary Dr, Myrtle Beach, SC 29588
- Single-Family
- $221.18/sqft
- 83 days on Jome
New Homes for Sale Near 3192 Visionary Dr, Myrtle Beach, SC 29588
About this Home
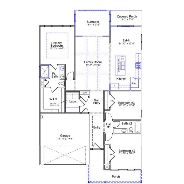
This thoughtfully designed Bates II plan offers easy main-level living with three bedrooms and two bathrooms. Step inside to discover a bright, open layout featuring a great room with coffered ceilings, a sunroom, an eat-in dining area, and a beautifully upgraded kitchen with an extended island that's perfect for additional seating. The gourmet kitchen flows seamlessly into the living space—ideal for entertaining or everyday life. Enjoy outdoor living on the covered porch just off the sunroom, both of which overlook this wooded backyard. The private primary suite is tucked at the rear of the home and includes a spacious walk-in closet and a luxury en-suite with a large tiled shower. Two secondary bedrooms are located at the front of the home with a shared full bath. Additional features include a laundry room with a folding table and laundry basket pass-through. Upgraded black finishes are featured throughout the home, and luxury vinyl plank flooring elevates the primary suite.
May also be listed on the Mungo Homes website
Information last verified by Jome: Sunday at 5:57 AM (January 25, 2026)
Home details
- Property status:
- Sold
- Size:
- 1,808 sqft
- Stories:
- 1
- Beds:
- 3
- Baths:
- 2
- Garage spaces:
- 2
Construction details
- Builder Name:
- Mungo Homes
- Completion Date:
- February, 2026
Home features & finishes
- Garage/Parking:
- Garage
- Rooms:
- Primary Bedroom On MainPrimary Bedroom Downstairs

Community details
Arcadia
by Mungo Homes, Myrtle Beach, SC
- 7 homes
- 12 plans
- 1,671 - 4,009 sqft
View Arcadia details
More homes in Arcadia
- Home at address 3145 Visionary Dr, Myrtle Beach, SC 29588

$404,900
Move-in ready- 3 bd
- 2 ba
- 1,910 sqft
3145 Visionary Dr, Myrtle Beach, SC 29588
- Home at address 3200 Visionary Dr, Myrtle Beach, SC 29588

$444,900
Under construction- 3 bd
- 2 ba
- 1,910 sqft
3200 Visionary Dr, Myrtle Beach, SC 29588
- Home at address 3149 Visionary Dr, Myrtle Beach, SC 29588

$449,900
Move-in ready- 3 bd
- 3.5 ba
- 2,641 sqft
3149 Visionary Dr, Myrtle Beach, SC 29588
- Home at address 3141 Visionary Dr, Myrtle Beach, SC 29588

$482,900
Under construction- 4 bd
- 3 ba
- 2,624 sqft
3141 Visionary Dr, Myrtle Beach, SC 29588
- Home at address 3117 Visionary Dr, Myrtle Beach, SC 29588

$489,900
Under construction- 4 bd
- 3 ba
- 2,388 sqft
3117 Visionary Dr, Myrtle Beach, SC 29588
- Home at address 3154 Visionary Dr, Myrtle Beach, SC 29588

$494,944
Move-in ready- 3 bd
- 3 ba
- 2,168 sqft
3154 Visionary Dr, Myrtle Beach, SC 29588
Floor plans in Arcadia
- View details for Bates II - Vanguard Collection

Bates II - Vanguard Collection
$339,900+- 3 bd
- 2 ba
- 1,671 sqft
- View details for Elliott - Vanguard Collection

Elliott - Vanguard Collection
$345,900+- 3 bd
- 2 ba
- 1,761 sqft
About the builder - Mungo Homes
Neighborhood
Home address
- City:
- Myrtle Beach
- County:
- Horry
- Zip Code:
- 29588
Schools in Horry County School District
GreatSchools’ Summary Rating calculation is based on 4 of the school’s themed ratings, including test scores, student/academic progress, college readiness, and equity. This information should only be used as a reference. Jome is not affiliated with GreatSchools and does not endorse or guarantee this information. Please reach out to schools directly to verify all information and enrollment eligibility. Data provided by GreatSchools.org © 2025
Places of interest
Getting around
Air quality
Noise level
A Soundscore™ rating is a number between 50 (very loud) and 100 (very quiet) that tells you how loud a location is due to environmental noise.
Financials
Nearby communities in Myrtle Beach
Homes in Myrtle Beach by Mungo Homes
Recently added communities in this area
Other Builders in Myrtle Beach, SC
Nearby sold homes
New homes in nearby cities
More New Homes in Myrtle Beach, SC
- Jome
- New homes search
- South Carolina
- Horry County
- Myrtle Beach
- Arcadia
- 3192 Visionary Dr, Myrtle Beach, SC 29588


































































