














Book your tour. Save an average of $18,473. We'll handle the rest.
We collect exclusive builder offers, book your tours, and support you from start to housewarming.
- Confirmed tours
- Get matched & compare top deals
- Expert help, no pressure
- No added fees
Estimated value based on Jome data, T&C apply




Why tour with Jome?
- No pressure toursTour at your own pace with no sales pressure
- Expert guidanceGet insights from our home buying experts
- Exclusive accessSee homes and deals not available elsewhere
Jome is featured in
- Single-Family
- Ready by July 2026
- $185.73/sqft
- 1 days on Jome
Home description
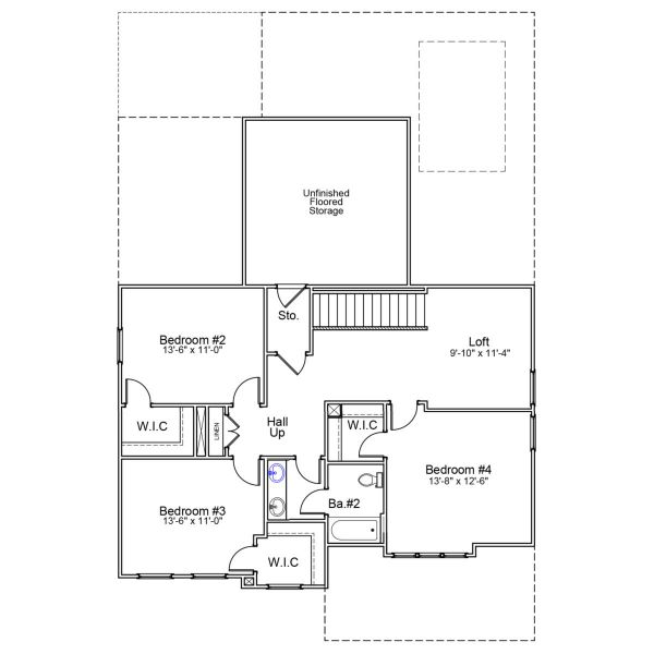
Introducing the Peachtree at Arcadia! A large, open foyer welcomes you into this stunning, open-concept home. This four-bedroom, two-and-one-half-bath design also includes a home office at the front of the home, enhanced with decorative wall panels and French doors. The kitchen opens to the dining room, eat-in area, and great room with a fireplace and features a gourmet GE appliance package with an in-wall microwave and oven, plus a gas cooktop with a decorative hood. Upgraded white cabinetry, quartz countertops, and a decorative tile backsplash keep the space light and bright. The primary bedroom is conveniently located on the main level and includes a ceiling fan, an en-suite bath with double vanities, a large tiled shower, and a spacious walk-in closet. Upstairs are three generous guest bedrooms, a loft, and a full bathroom. Outside, a covered porch provides the perfect place to relax and enjoy views of your beautiful lakefront homesite.
May also be listed on the Mungo Homes website
Information last verified by Jome: Today at 6:23 AM (March 6, 2026)
Book your tour. Save an average of $18,473. We'll handle the rest.
We collect exclusive builder offers, book your tours, and support you from start to housewarming.
- Confirmed tours
- Get matched & compare top deals
- Expert help, no pressure
- No added fees
Estimated value based on Jome data, T&C apply
Home details
- Property status:
- Under construction
- Size:
- 2,740 sqft
- Stories:
- 2
- Beds:
- 4
- Baths:
- 2
- Half baths:
- 1
- Garage spaces:
- 2
Construction details
- Builder Name:
- Mungo Homes
- Completion Date:
- July, 2026
Home features & finishes
- Garage/Parking:
- Garage
- Rooms:
- Primary Bedroom Downstairs

Get a consultation with our New Homes Expert
- See how your home builds wealth
- Plan your home-buying roadmap
- Discover hidden gems

Community details
Arcadia
by Mungo Homes, Myrtle Beach, SC
- 8 homes
- 12 plans
- 1,671 - 4,157 sqft
View Arcadia details
More homes in Arcadia
- Home at address 6116 Zoe Wy, Myrtle Beach, SC 29588

Goodwin
$461,900
- 4 bd
- 2 ba
- 1,899 sqft
6116 Zoe Wy, Myrtle Beach, SC 29588
- Home at address 3141 Visionary Dr, Myrtle Beach, SC 29588

Mulberry
$474,900
- 4 bd
- 3 ba
- 2,624 sqft
3141 Visionary Dr, Myrtle Beach, SC 29588
- Home at address 6112 Zoe Wy, Myrtle Beach, SC 29588

Elliott
$479,900
- 4 bd
- 3 ba
- 2,155 sqft
6112 Zoe Wy, Myrtle Beach, SC 29588
- Home at address 3117 Visionary Dr, Myrtle Beach, SC 29588

Cumberland
$489,900
- 4 bd
- 3 ba
- 2,388 sqft
3117 Visionary Dr, Myrtle Beach, SC 29588
- Home at address 3204 Visionary Dr, Myrtle Beach, SC 29588

Warwick II
$579,900
- 5 bd
- 4 ba
- 3,410 sqft
3204 Visionary Dr, Myrtle Beach, SC 29588
- Home at address 6104 Zoe Wy, Myrtle Beach, SC 29588

Yates II
$625,900
- 5 bd
- 4.5 ba
- 4,157 sqft
6104 Zoe Wy, Myrtle Beach, SC 29588
Floor plans in Arcadia
- View details for Nantahala II - Vanguard Collection

Nantahala II - Vanguard Collection
$379,900+- 4 bd
- 2.5 ba
- 2,450 sqft
- View details for Peachtree - Vanguard Collection

Peachtree - Vanguard Collection
$399,900+- 4 bd
- 2.5 ba
- 2,703 sqft
About the builder - Mungo Homes
Neighborhood
Home address
- City:
- Myrtle Beach
- County:
- Horry
- Zip Code:
- 29588
Schools in Horry County School District
GreatSchools’ Summary Rating calculation is based on 4 of the school’s themed ratings, including test scores, student/academic progress, college readiness, and equity. This information should only be used as a reference. Jome is not affiliated with GreatSchools and does not endorse or guarantee this information. Please reach out to schools directly to verify all information and enrollment eligibility. Data provided by GreatSchools.org © 2025
Places of interest
Getting around
Air quality
Noise level
A Soundscore™ rating is a number between 50 (very loud) and 100 (very quiet) that tells you how loud a location is due to environmental noise.

Considering this home?
Our expert will guide your tour, in-person or virtual
Need more information?
Text or call (888) 488-9243
Financials
Estimated monthly payment
Let us help you find your dream home
How many bedrooms are you looking for?
Similar homes nearby
Recently added communities in this area
Nearby communities in Myrtle Beach
New homes in nearby cities
More New Homes in Myrtle Beach, SC
- Jome
- New homes search
- South Carolina
- Horry County
- Myrtle Beach
- Arcadia
- 6120 Zoe Wy, Myrtle Beach, SC 29588































