

















- 4 bd
- 3 ba
- 2,624 sqft
3141 Visionary Dr, Myrtle Beach, SC 29588
- Single-Family
- $180.98/sqft
- 98 days on Jome
New Homes for Sale Near 3141 Visionary Dr, Myrtle Beach, SC 29588
About this Home
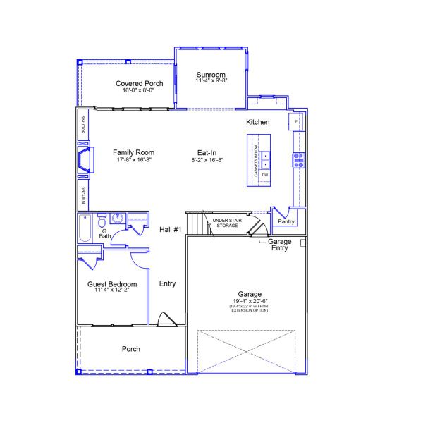
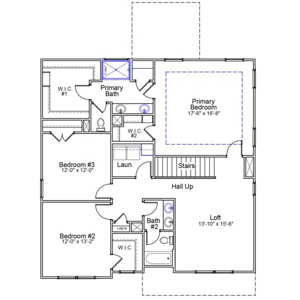
Welcome to the Mulberry! This home features four bedrooms, three bathrooms, and ample upgrades. Your spacious front porch creates stunning curb appeal and is perfect for enjoying your morning coffee. Upon entry, a guest suite is situated at the front of the home, along with a full bath that has convenient dual access from both the bedroom and hallway. The kitchen, eat-in, and great room flow seamlessly together, creating the perfect entertaining space, along with an additional sunroom off the eat in, allowing in lots of natural light. The kitchen features a gourmet kitchen package with an in-wall microwave and oven, a GE gas cooktop, quartz countertops, and white soft-close cabinets. Upstairs, you'll find the primary suite, along with two additional bedrooms and a loft space. The primary includes a tray ceiling, two walk-in closets and an en-suite bath with a tiled shower and double vanity sink. The two additional bedrooms share an additional full bath. Additional options include a covered porch off the sunroom overlooking a wooded area and a fireplace in the living room. The estimated completion date is set for early April 2026.
May also be listed on the Mungo Homes website
Information last verified by Jome: Monday at 6:12 AM (March 16, 2026)
Home details
- Property status:
- Sold
- Size:
- 2,624 sqft
- Stories:
- 2
- Beds:
- 4
- Baths:
- 3
- Garage spaces:
- 2
Construction details
- Builder Name:
- Mungo Homes
- Completion Date:
- April, 2026
Home features & finishes
- Garage/Parking:
- Garage
- Rooms:
- Primary Bedroom Upstairs

Community details
Arcadia
by Mungo Homes, Myrtle Beach, SC
- 14 homes
- 12 plans
- 1,671 - 4,303 sqft
View Arcadia details
More homes in Arcadia
- Home at address 6116 Zoe Wy, Myrtle Beach, SC 29588

$461,900
Under construction- 4 bd
- 2 ba
- 1,899 sqft
6116 Zoe Wy, Myrtle Beach, SC 29588
- Home at address 6112 Zoe Wy, Myrtle Beach, SC 29588

$479,900
Under construction- 4 bd
- 3 ba
- 2,155 sqft
6112 Zoe Wy, Myrtle Beach, SC 29588
- Home at address 6120 Zoe Wy, Myrtle Beach, SC 29588

$508,900
Under construction- 4 bd
- 2.5 ba
- 2,740 sqft
6120 Zoe Wy, Myrtle Beach, SC 29588
- Home at address 6144 Zoe Wy, Myrtle Beach, SC 29588

$519,900
Under construction- 4 bd
- 3.5 ba
- 2,633 sqft
6144 Zoe Wy, Myrtle Beach, SC 29588
- Home at address 6124 Zoe Wy, Myrtle Beach, SC 29588

$522,900
Under construction- 4 bd
- 3.5 ba
- 2,595 sqft
6124 Zoe Wy, Myrtle Beach, SC 29588
- Home at address 6277 Zoe Wy, Myrtle Beach, SC 29588

$523,900
Under construction- 5 bd
- 4.5 ba
- 3,128 sqft
6277 Zoe Wy, Myrtle Beach, SC 29588
Floor plans in Arcadia
- View details for Nantahala II - Vanguard Collection

Nantahala II - Vanguard Collection
$379,900+- 4 bd
- 2.5 ba
- 2,450 sqft
- View details for Peachtree - Vanguard Collection

Peachtree - Vanguard Collection
$399,900+- 4 bd
- 2.5 ba
- 2,703 sqft
About the builder - Mungo Homes
Neighborhood
Home address
- City:
- Myrtle Beach
- County:
- Horry
- Zip Code:
- 29588
Schools in Horry County School District
GreatSchools’ Summary Rating calculation is based on 4 of the school’s themed ratings, including test scores, student/academic progress, college readiness, and equity. This information should only be used as a reference. Jome is not affiliated with GreatSchools and does not endorse or guarantee this information. Please reach out to schools directly to verify all information and enrollment eligibility. Data provided by GreatSchools.org © 2025
Places of interest
Getting around
Air quality
Noise level
A Soundscore™ rating is a number between 50 (very loud) and 100 (very quiet) that tells you how loud a location is due to environmental noise.
Financials
Nearby communities in Myrtle Beach
Homes in Myrtle Beach by Mungo Homes
Recently added communities in this area
Other Builders in Myrtle Beach, SC
Nearby sold homes
New homes in nearby cities
More New Homes in Myrtle Beach, SC
- Jome
- New homes search
- South Carolina
- Horry County
- Myrtle Beach
- Arcadia
- 3141 Visionary Dr, Myrtle Beach, SC 29588

































































