























- 4 bd
- 2.5 ba
- 2,771 sqft
5014 Radley Rd, Chesnee, SC 29323
- Single-Family
- $119.45/sqft
- 170 days on Jome
New Homes for Sale Near 5014 Radley Rd, Chesnee, SC 29323
About this Home
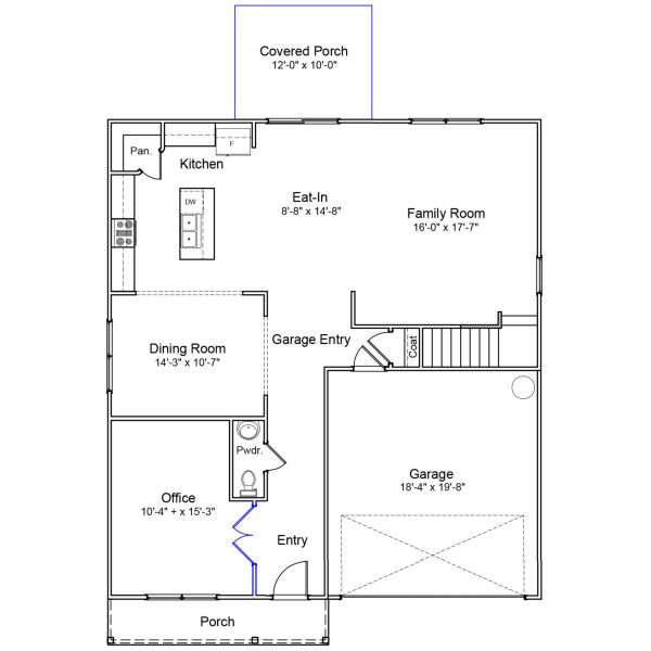
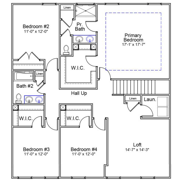
This is a two-story, four bedroom, two-and-one-half bathroom home. An office near the entryway with French doors welcomes you warmly. The kitchen is attached to both a dining room and an informal eat-in area, leading into the great room, which overlooks a covered porch. Upstairs, the primary bedroom has a roomy walk-in closet and a primary bathroom featuring double sinks, a private water closet, linen closet, and a wide walk-in shower. Another full bathroom is available for the other bedrooms. A spacious loft ties the second story together and would be perfect for gatherings with loved ones.
May also be listed on the Mungo Homes website
Information last verified by Jome: Saturday at 6:09 AM (March 14, 2026)
Home details
- Property status:
- Sold
- Size:
- 2,771 sqft
- Stories:
- 2
- Beds:
- 4
- Baths:
- 2
- Half baths:
- 1
- Garage spaces:
- 2
Construction details
- Builder Name:
- Mungo Homes
- Completion Date:
- February, 2026
Home features & finishes
- Garage/Parking:
- Garage
- Rooms:
- Primary Bedroom Upstairs

Community details
Radley Place
by Mungo Homes, Chesnee, SC
- 7 homes
- 9 plans
- 1,761 - 3,488 sqft
View Radley Place details
More homes in Radley Place
- Home at address 510 Sims View Ct, Chesnee, SC 29323
Savings$357,000
Under construction- 4 bd
- 2.5 ba
- 2,771 sqft
510 Sims View Ct, Chesnee, SC 29323
- Home at address 5002 Radley Rd, Chesnee, SC 29323
Savings$358,000
Under construction- 4 bd
- 2.5 ba
- 2,236 sqft
5002 Radley Rd, Chesnee, SC 29323
Floor plans in Radley Place
- View details for McDowell - Genesis Value Collection

McDowell - Genesis Value Collection
$307,000+- 4 bd
- 2.5 ba
- 2,218 sqft
- View details for Pickens - Genesis Value Collection

Pickens - Genesis Value Collection
$319,000+- 4 bd
- 2.5 ba
- 2,431 sqft
About the builder - Mungo Homes
Neighborhood
Home address
- City:
- Chesnee
- County:
- Spartanburg
- Zip Code:
- 29323
Schools in Spartanburg School District 2
- Grades PK-04Privatekids first child development center1.6 mi153 fosters grove rdna
GreatSchools’ Summary Rating calculation is based on 4 of the school’s themed ratings, including test scores, student/academic progress, college readiness, and equity. This information should only be used as a reference. Jome is not affiliated with GreatSchools and does not endorse or guarantee this information. Please reach out to schools directly to verify all information and enrollment eligibility. Data provided by GreatSchools.org © 2025
Places of interest
Getting around
Air quality
Noise level
A Soundscore™ rating is a number between 50 (very loud) and 100 (very quiet) that tells you how loud a location is due to environmental noise.
Financials
Nearby communities in Chesnee
Homes in Chesnee by Mungo Homes
Recently added communities in this area
Other Builders in Chesnee, SC
Nearby sold homes
New homes in nearby cities
More New Homes in Chesnee, SC
- Jome
- New homes search
- South Carolina
- Spartanburg County
- Chesnee
- Radley Place
- 5014 Radley Rd, Chesnee, SC 29323























































