



- 3 bd
- 2 ba
- 1,148 sqft
2321 Mill Lp, Spartanburg, SC 29301
- Single-Family
- $203.83/sqft
- 172 days on Jome
New Homes for Sale Near 2321 Mill Lp, Spartanburg, SC 29301
About this Home
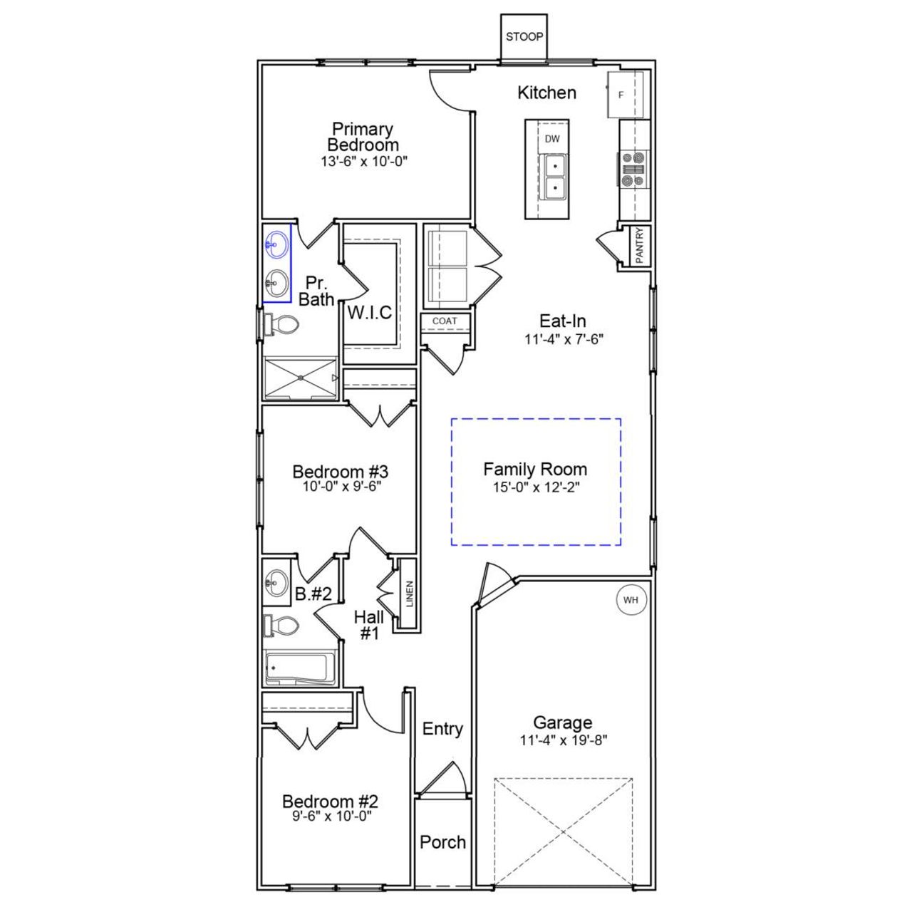
Welcome to the Baker–a charming one-story home designed for comfortable living.
Step into effortless style and functionality with the Baker, a beautifully crafted one-story home featuring three bedrooms, two full bathrooms, and a convenient one-car garage. As you enter, you'll be greeted by elegant luxury vinyl plank flooring that flows seamlessly through all common areas, bathrooms, and the laundry room—combining durability with modern appeal. The heart of the home is the open-concept kitchen, where white shaker-style cabinets with crown molding, sleek granite countertops, and a large center island create the perfect space for both cooking and entertaining. An electric range and thoughtful layout make meal prep a breeze. Retreat to the primary suite, a private oasis complete with a dual-sink vanity, a five-foot walk-in shower, and a generous walk-in closet offering ample storage. Step outside to enjoy the South Carolina sunshine on your 12' x 10' concrete patio—ideal for morning coffee, weekend grilling, or simply relaxing outdoors. Whether you're starting out, downsizing, or looking for easy one-level living, the Baker is ready to welcome you home.
May also be listed on the Mungo Homes website
Information last verified by Jome: Thursday at 5:41 AM (January 22, 2026)
Home details
- Property status:
- Sold
- Size:
- 1,148 sqft
- Stories:
- 1
- Beds:
- 3
- Baths:
- 2
- Garage spaces:
- 1
Construction details
- Builder Name:
- Mungo Homes
- Completion Date:
- February, 2026
Home features & finishes
- Garage/Parking:
- Garage
- Rooms:
- Primary Bedroom On MainPrimary Bedroom Downstairs

Community details
Mayfair Village
by Mungo Homes, Spartanburg, SC
- 9 homes
- 9 plans
- 1,148 - 2,405 sqft
View Mayfair Village details
More homes in Mayfair Village
- Home at address 2320 Mill Lp, Spartanburg, SC 29301
Savings$245,000
Under construction- 3 bd
- 2.5 ba
- 1,369 sqft
2320 Mill Lp, Spartanburg, SC 29301
- Home at address 2329 Mill Lp, Spartanburg, SC 29301
Savings$252,000
Under construction- 3 bd
- 2.5 ba
- 1,476 sqft
2329 Mill Lp, Spartanburg, SC 29301
- Home at address 2341 Mill Lp, Spartanburg, SC 29301
Savings$271,000
Under construction- 3 bd
- 2.5 ba
- 1,709 sqft
2341 Mill Lp, Spartanburg, SC 29301
- Home at address 2332 Mill Lp, Spartanburg, SC 29301
Savings$275,000
Under construction- 4 bd
- 2.5 ba
- 1,709 sqft
2332 Mill Lp, Spartanburg, SC 29301
- Home at address 2316 Mill Lp, Spartanburg, SC 29301
Savings$298,000
Under construction- 4 bd
- 2.5 ba
- 2,177 sqft
2316 Mill Lp, Spartanburg, SC 29301
- Home at address 2300 Mill Lp, Spartanburg, SC 29301
Savings$299,000
Under construction- 3 bd
- 2.5 ba
- 2,260 sqft
2300 Mill Lp, Spartanburg, SC 29301
Floor plans in Mayfair Village
- View details for Baker - Genesis Value Collection

Baker - Genesis Value Collection
$219,000+- 3 bd
- 2 ba
- 1,148 sqft
- View details for Barnwell - Genesis Value Collection

Barnwell - Genesis Value Collection
$232,000+- 3 bd
- 2.5 ba
- 1,369 sqft
About the builder - Mungo Homes
Neighborhood
Home address
- City:
- Spartanburg
- County:
- Spartanburg
- Zip Code:
- 29301
Schools in Spartanburg School District 6
- Grades PK-PKPublicspartanburg six child development center1.1 mi3050 n. blackstock roadna
GreatSchools’ Summary Rating calculation is based on 4 of the school’s themed ratings, including test scores, student/academic progress, college readiness, and equity. This information should only be used as a reference. Jome is not affiliated with GreatSchools and does not endorse or guarantee this information. Please reach out to schools directly to verify all information and enrollment eligibility. Data provided by GreatSchools.org © 2025
Places of interest
Getting around
Air quality
Noise level
A Soundscore™ rating is a number between 50 (very loud) and 100 (very quiet) that tells you how loud a location is due to environmental noise.
Financials
Nearby communities in Spartanburg
Homes in Spartanburg Neighborhoods
Homes in Spartanburg by Mungo Homes
Recently added communities in this area
Other Builders in Spartanburg, SC
Nearby sold homes
New homes in nearby cities
More New Homes in Spartanburg, SC
- Jome
- New homes search
- South Carolina
- Spartanburg County
- Spartanburg
- Mayfair Village
- 2321 Mill Lp, Spartanburg, SC 29301






























































