


































- 4 bd
- 2.5 ba
- 1,951 sqft
2397 Mill Lp, Spartanburg, SC 29301
- Single-Family
- $143/sqft
- 208 days on Jome
New Homes for Sale Near 2397 Mill Lp, Spartanburg, SC 29301
About this Home
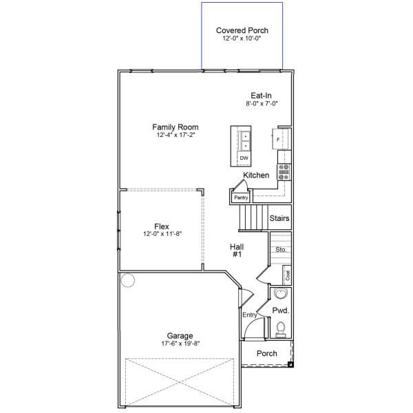
The Kershaw in Mayfair Village is a four-bedroom, two-and-one-half-bathroom home featuring an open living area. The kitchen includes stainless steel gas appliances, granite countertops, white cabinets, and an island that overlooks the great room. Off the great room is a spacious flex room that can be used as an office or dining space. Luxury vinyl plank flooring runs throughout the main level, adding to the elegant space. Upstairs, you will find the primary suite, which has a large walk-in closet and dual vanity. Three secondary bedrooms, a hall bathroom, and a laundry room complete the second floor. Amenities include a pickleball court, pool, and cabana. Mayfair Village is only a four-minute drive from Westgate Mall, where you can shop at all the national stores, and nine minutes from Wofford College and Spartanburg Medical Center. This new community is accessible to both I-26 and I-85 and is zoned for Dorman High School, only 10 minutes down I-26.
May also be listed on the Mungo Homes website
Information last verified by Jome: Thursday at 6:19 AM (December 18, 2025)
Home details
- Property status:
- Sold
- Size:
- 1,951 sqft
- Stories:
- 2
- Beds:
- 4
- Baths:
- 2
- Half baths:
- 1
- Garage spaces:
- 2
Construction details
- Builder Name:
- Mungo Homes
- Completion Date:
- August, 2025
Home features & finishes
- Garage/Parking:
- Garage
- Rooms:
- Primary Bedroom Upstairs

Community details
Mayfair Village
by Mungo Homes, Spartanburg, SC
- 8 homes
- 9 plans
- 1,148 - 2,621 sqft
View Mayfair Village details
More homes in Mayfair Village
- Home at address 2389 Mill Lp, Spartanburg, SC 29301

$262,000
Move-in ready- 4 bd
- 2.5 ba
- 1,806 sqft
2389 Mill Lp, Spartanburg, SC 29301
- Home at address 2352 Mill Lp, Spartanburg, SC 29301

$274,000
Move-in ready- 4 bd
- 2.5 ba
- 1,806 sqft
2352 Mill Lp, Spartanburg, SC 29301
- Home at address 2345 Mill Lp, Spartanburg, SC 29301

$304,823
Under construction- 4 bd
- 2.5 ba
- 2,177 sqft
2345 Mill Lp, Spartanburg, SC 29301
- Home at address 2357 Mill Lp, Spartanburg, SC 29301

$306,000
Move-in ready- 5 bd
- 3.5 ba
- 2,621 sqft
2357 Mill Lp, Spartanburg, SC 29301
Floor plans in Mayfair Village

Lancaster - Genesis Value Collection
- 4 bd
- 2.5 ba
- 2,152 sqft

Monroe - Genesis Value Collection
- 4 bd
- 2.5 ba
- 2,392 sqft
About the builder - Mungo Homes
Neighborhood
Home address
- City:
- Spartanburg
- County:
- Spartanburg
- Zip Code:
- 29301
Schools in Spartanburg School District 6
- Grades PK-PKPublicspartanburg six child development center1.2 mi3050 n. blackstock roadna
GreatSchools’ Summary Rating calculation is based on 4 of the school’s themed ratings, including test scores, student/academic progress, college readiness, and equity. This information should only be used as a reference. Jome is not affiliated with GreatSchools and does not endorse or guarantee this information. Please reach out to schools directly to verify all information and enrollment eligibility. Data provided by GreatSchools.org © 2025
Places of interest
Getting around
Air quality
Noise level
A Soundscore™ rating is a number between 50 (very loud) and 100 (very quiet) that tells you how loud a location is due to environmental noise.
Financials
Nearby communities in Spartanburg
Homes in Spartanburg by Mungo Homes
Recently added communities in this area
Other Builders in Spartanburg, SC
Nearby sold homes
New homes in nearby cities
More New Homes in Spartanburg, SC
- Jome
- New homes search
- South Carolina
- Spartanburg County
- Spartanburg
- Mayfair Village
- 2397 Mill Lp, Spartanburg, SC 29301

























































